Statii de epurare
Instructiuni de utilizare
Domeniul de utilizare
Statiile de epurare ACO Aeropur Plus SB sunt proiectate pentru purificarea biologica completa a apelor reziduale menajere ce provin de la case individuale, zone rezidentiale, hoteluri, pensiuni, companii, etc.
Statiile de epurare ACO Aeropur Plus SB marimile 3 - 22 sunt proiectate pentru o capacitate hidraulica de 0,3 pana la 4,2 m3/zi de apa epurata.
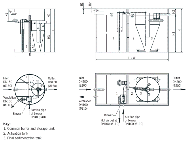
Statia de epurare ACO Aeropur Plus SB se compune dintr-un rezervor cu pereti din polipropilena inchis cu un capac mobil. Lateralele rezervorului principal includ o conducta de intrare, una de iesire, intrare si iesire de aer pentru compresor si iesire pentru sistemul de ventilatie.
Schema tehnologica:

Legenda:
1. Tratament primar-zona tampon 3. Rezervorul de activare
2. Zona de depozitare 4. Rezervorul de sedimentare finala
Statia de epurare
Partea mecanica a statiei ACO Aeropur ST este format dintr-un rezervor tampon comun si un rezervor de depozitare. Rezervorul se compune din zona tampon (1) si zona de depozitare (2).
Apa reziduala intra in statia
Varfurile hidraulice la intrarea statiei de epurare
Partea biologic a statiei
Rezervorul de activare este aerat intermitent de microbule de aer. Functionarea intermitenta asigura economii electrice de pana la 50%, imbunatatind in acelasi timp eficienta purificarii. Degradarea materiei organice si a amoniacului are loc in timpul aeratiei (nitrificare). Reducerea volumului total de nitrogen are loc pe perioada intre aeratii (denitrificare).
Apa curge din rezervorul de activare in rezervorul de sedimentare finala care permite separarea gravitationala a apei tratate de namolul activ. Apa tratata curge din statia de epurare prin conducta de evacuare. Namolul activ se depune la fundul rezervorului de sedimentare finala de unde este pompat inapoi ca namol de retur si partial in zona de depozitare (2) ca namol in surplus.
Rezervorul de sedimentare finala este echipat cu un greder pentru colectarea si indepartarea automata a namolului plutitor de la suprafata apei. Acest dispozitiv reduce semificativ timpul de intretinere.
Surpusul de namol este depozitat in zona de depozitare (2) care are o capacitate de stocare de circa 100 - 150 de zile.
Pomparea apei epurate, a namolului de retur si in surplus se face cu ajutorul conductelor de aer din statia ACO Aeropur Plus ST. Aceste conducte de aer nu au nevoie de intretinere si sunt rezistente la infundare. Incarcarea hidraulica a conductelor este reglata continuu chiar si la debite foarte mici. Acest lucru asigura uniformizarea procesului de purificare si astfel se ajunge la eficienta a purificarii constant.
Singurul dispozitiv electric al statiei ACO Aeropur Plus ST este compresorul ce asigura aer la elementele de aerare din rezervorul de activare si in conductele de aer. Functionarea compresorului este controlata de timer.
Sistemul de control asigura functionarea dispozitivelor electrice. Sistemul de control consta din 2 timere. Primul timer KT1 comanda functionarea compresorului. Al doilea timer KT2 comanda functionarea turbinei.
Presetarea timpului la timerul KT1 pentru comanda compresorului:
|
ACO Aeropur Plus SB |
Functioneaza compresor [min] |
Pauza compresor [min] |
Este posibila schimbarea ambelor intervale functie de conditiile de functionare. Schimbarile vor fi facute numai de catre personal calificat.
Daca compresorul este in functiune, in acelasi timp functioneaza si pompele de aer pentru apa reziduala, namolul de retur, si aerarea rezervorului de activare.
Presetarea timpului la timerul KT2 pentru comanda supapei:
|
ACO Aeropur Plus SB |
Supapa deschisa [min] |
Supapa inchisa [ore] |
Supapa functioneaza dupa pornirea intrerupatorului principal timp de 1 - 3 minute si in continuare ciclic de cateva ori pe zi.
Supapa solenoid asigura alimentarea cu aer a pompei de namol in exces si dispozitivului de descarcare a namolului de la nivelul apei in rezervorul de sedimentare finala.
|
ACO Aeropur Plus SB | ||||
|
Valori calculate ale incarcarii hidraulice si biologice |
||||
|
Incarcare hidraulica [m3/zi] | ||||
|
Incarcare biologica BSK5 [kg/zi] | ||||
|
Utilizare |
||||
|
| ||||
|
Incarcarea hidraulica [m3/zi] | ||||
|
Incarcarea biologica BOD5 [kg/zi] | ||||
|
ACO Aeropur Plus ST | ||||
|
Diametru D [m] | ||||
|
Lungime L [m] | ||||
|
Latime W [m] | ||||
|
Inaltime H [m] | ||||
|
Cota conductei de intrare H1 [m] | ||||
|
Cota conductei de iesire H 2 [m] | ||||
|
Adancimea apei H 3 [m] |
| |||
|
Cota conductei de ventilatie H 4 [m] | ||||
|
Greutate [kg] | ||||
|
Alimentare [V/Hz] | ||||
|
Putere maxima [W] | ||||
|
Cod | ||||
ACO Aeropur Plus ST 3 - 12 ACO Aeropur Plus ST 22

Urmatoarele valori medii ale eficientei au fost obtinute in teste in laboratoare acreditate conform EN 12566-3:
BOD5 9.5 mg/l Consum biologic de oxigen la 5 zile
COD 59.0 mg/l Consum chimic de oxigen
TSS 16.4 mg/l Materii totale in suspensie
N-NH4 2.1 mg/l Azot amoniacal
Echipamentul se va manevra numai de catre personal competent si calificat.
Operatorul va avea cunostinte despre statie cat si despre intregul echipament.
Pentru fiecare statie de epurare se va pastra un jurnal de operatiuni. In acesta se vor inregistra defectele - data la care s-a intamplat, evenimentul, inlocuirea cu piese de schimb. In plus, se vor inregistra operatiile facute, ca de exemplu data suflarii in jos si cantitatea de namol dislocate, data si locul din care s-au luat mostre de apa, s.a.m.d.
Curatirea rezervorului se va face numai in prezenta a minim doua persoane. Persoana din rezervor va fi asigurata de catre cealalta persoana. Interventiie din rezervor (de ex. curatirea) se vor face de catre doua persoane: una lucreaza in interior asigurata de a doua persoana in exterior ce mentine continuu contact vizual cu prima.
Pe timpul lucrului, atunci cand personalul de functionare poate sa ajunga in contact cu apa reziduala, el va trebui sa poarte echipament de protectie (manusi si cizme de cauciuc, masca, s.a.m.d.)
La lucrul in interiorul rezervorului sau in alte cazuri cand nu se poate preveni contactul direct cu apa reziduala sau alte reziduuri este necesar a se face dezinfectia spatiului de lucru sau macar se va spala echipamentul cu apa sub presiune.
Apa reziduala poate fi sursa a diferitelor boli infectioase. La terminarea anumitor lucrari sau inainte de consumul de alimente este necesara spalarea pe maini cu apa calda si sapun.
Daca inaltimea zapezii pe capacul statiei de epurare
In astfel de cazuri cand statia de epurare nu este in functiune, este necesar a se reverifica starea intrerupatorului de circuit in instalatia de intrerupere. Inainte de a se scoate capacul intrerupatorului se va deconecta intrerupatorul principal (sa nu apara curent rezidual) al cablului principal de alimentare al statiei de epurare. Este necesara prevenirea intrarii de apa la intrerupator sau in zona capacului.
|
Pericol |
Interventiile la cabluri (de ex. inlocuirea echipamentelor) se vor face numai de personal autorizat a lucre cu instalatii electrice cu calificare profesionala (conform standardelor nationale) Pericol de electrocutare! Deconectati intrerupatorul principal de alimentare inainte de a lucra la instalatiile electrice. |
Verificare vizuala la fiecare 14 zile a echipamentelor (pompe de aer, compresor, conexiunile la ventilator si conducte).
Cand cosul de aluviuni s-a umplut cu materii solide se va inlocui.
La fiecare 14 zile se va verifica nivelul apei in rezervorul de sedimentare finala si curatirea dispozitivului de iesire
Se vor face la fiecare 14 zile teste de sediment al namolului activat in cilindri volumetrici. Volumul namolului dupa 30 min. va fi de aprox. 300 ml/l.
Daca rezervorul de depozitare este plin de namol subtiat de surplus (namolul in surplus depaseste nivelul rezervorului), este necesara imediat golirea intregului volum al rezervorului.
Luarea de mostre:
Mostrele apei purificate mecanic si biologic se vor lua din zona dispozitivului de evacuare din interiorul rezervorului de sedimentare finala.
Operatorul va face intretinerea echipamentului conform Capitol 3.
Procedura de pornire:
|
Important |
Dupa montajul in pamant toate componentele statiei de epurare se vor umple simultan cu apa curata. |
Daca timpul intre instalare si pornire este prea lung (miros neplacut al apei, culoare gri sau negru), se recomanda golirea tuturor compartimentelor si reumplerea lor cu apa curata.
Verificati daca intrerupatorul este pornit (intrerupatorul este amplasat in interiorul statiei). Porniti intrerupatorul principal (nu este parte component a statiei).
Dupa pornirea intrupatorului principal, statia este pornita in modul automat.
Operatiuni dupa pornirea intrerupatorului principal - vezi partea 1 - Capitolul 1.2.1.
Atasati conducta de intrare apa reziduala la statia de epurare.
Verificare vizuala a:
Ø Elementelor de aerare in rezervorul de activare.
Ø Functionarii unitatii la descarcare a namolului de la nivelul apei in rezervorul de sedimentare finala si pomparea cu aer a namolului in surplus - vezi partea 1, capitol 1.2.1.
Ø Functionarii pompei de aer pentru namolul de retur, epurare bruta si aerarea cosului de aluviuni.
|
Important |
La 24 de ore dupa inceperea functionarii verificati fixarea duzei conexiunii la conducta de iesire a compresorului si la camera de distributie. |
Ar trebui sa se creeze o anumita concentratie de namol activ in rezervorul de activare in termen de doua luni.
|
Intrarea apei reziduale nu ar trebui sa se faca cu variatii excesive hidraulice si de material, in special cand statia de epurare porneste. In timp ce statia de epurare porneste (in termen de o luna) este necesar ca o supapa pentru alimentare aer in conducta pentru namol suplimentar sa fie tinuta inchisa. Dupa trecerea timpului de pornire este nevoie ca supapa sa fie tinuta deschisa continuu. Supapa este amplasata pe distributorul de aer in spatele turbinei. |
|
Nu este posibila descarcarea unei mari cantitati de dezinfectant sau alt material greu biodegradabil si grasime la statia de epurare. Procesul biologic poate fi realizat in limita a pH = 6 - 8. Mai departe este necesara prevenirea intrarii de material toxice, material uleios, solventi, s.a.m.d. in conditiile in care acestea ar putea cauza defectarea liniei biologice a statiei de epurare. |
|
Procesul de tratare ar trebui suportat de namolul de activare aditional. Eficienta tratarii complete va fi atinsa mai repede. Namolul ar trebui sa fie de culoare maro; pentru statia de epurare Aeropur Plus unit namolul de culoare gri sau gri-negru este interzis, reprezentand un indicator de slaba performanta a statiei (incarcare excesiva a unitatii cu material degradat, micsorarea alimentarii cu oxigen, incarcare cu material greu biodegradabil, etc.). Pe timpul activarii pornirii poate aparea spuma alba la nivelul rezervorului de activare. Cand concentrarea de namol de activare ajunge la nivelul cerut, spuma alba dispare. |
Descrierea operatiilor:
Opriti intrarea apei reziduale in statia de epurare.
Deconectati intrerupatorul principal.
Goliti continuu prin pompare toate compartimentele.
Curatati toate rezervoarele statiei de epurare cu jet de apa si indepartati toata apa.
|
Important |
Cand se scoate apa din rezervorul de activare este necesar a se preveni deteriorarea elementelor de aerare ale conductei de distributie aer. |
|
Important |
Daca statia de epurare va fi scoasa din functiune pentru 10 zile sau mai mult, este nevoie a se umple statia cu apa curata (vezi cap. 2.2) |
Tehnologia intregii statii de epurare a fost proiectata in scopul minimalizarii lucrarilor de service si intretinere.
|
Scopul intretinerii |
Interval |
|
Rezervor tampon |
Curatirea unitatii de distributie a pompei aerului la epurarea bruta |
Oricand este necesar - minim la 2 luni |
|
Verificarea functionarii pompei de epurare bruta |
Oricand este necesar - minim saptamanal |
|
Rezervor de activare |
Inlocuirea elementelor de aerare |
Durata de viata a elementelor de aerare este de minim 7 ani. |
|
Eliminarea condensului din elementele de aerare (numai AAP 22) |
Oricand este necesar - minim la 2 luni |
|
Compresor |
Compresor cu diafragma "Secoh" - inlocuirea diafragmei |
Durata de viata a diafragmei este de 1 - 1,5 ani |
Rezervorul de sedimentare finala |
Verificati functionarea pompei de returnare namol |
Oricand este necesar - minim saptamanal |
Goliti rezervoarele, conform Cap 2, paragraf 2.3.
Umpleti cu apa curata pana la 20 cm deasupra capatului superior al elementelor de aerare si porniti compresorul.
Reverificati functionarea individuala a elementelor si integritatea conductei de distributie a aerului si reumpleti cu apa.
Inlocuiti elementele stricate, daca acestea au functionat o scurta perioada (probabil 1 an). Daca majoritatea elementelor sunt in stare proasta se recomanda inlocuirea tuturor elementelor.
Inlocuirea elementelor de aerare:
Ø Desurubati elementele de aerare prin rasucire spre stanga.
Ø Verificati starea de curatenie a conductei de distributie.
Ø Insurubati elementele de aerare prin rasucire spre dreapta.
Dupa ce elementele au fost insurubate este nevoie a se restrange; restrangerea se va face cu mana, fara unelte ajutatoare.
Umpleti cu apa curata pana la
Reverificati functionarea individuala a elementelor si integritatea conductei de distributie.
Puneti statia de epurare in functiune - vezi cap 2, paragraf 2.2.
Daca compresorul functioneaza deschideti robinetul de eliminare condens in rezervorul de sedimentare finala.
Lasati robinetul deschis atat timp cat curge apa prin ea.
Vezi manualul de intretinere pentru compresor cu turbina - vezi Cap 5 sau 6.
|
|
Tipul defectiunii |
Remediere |
|
Rezervor tampon |
Iesirea aerului la apa bruta este redusa sau nu pompeaza de loc - pompa de aer infundata |
Se desfunda conducta de descarcare sau se curata cu jet de apa |
|
Iesirea aerului la apa bruta este redusa sau nu pompeaza de loc - lipsa alimentare cu aer |
Verificati integritatea duzei de alimentare cu aer |
|
|
Rezervorul de activare |
Pe durata aeratiei, intensitatea amestecului pare sa fie redusa in anumite zone ale rezervorului - reducerea iesirii sistemului de aerare |
Curatati conductele de distributie, inlocuiti elementele de aerare daca este necesar (vezi paragraf 3.2.1.) |
|
Pe timpul aerarii apar bule mari de aer la suprafata apei - neetanseizari ale sistemului de aerare |
Reverificati starea elementelor de aerare, integritatea conductei de distributie si a duzelor de alimentare (vezi paragraf 3.2.1.) |
|
|
Rezervorul de sedimentare finala |
Iesirea de aer pentru namolul de retur si de surplus si aerul pentru indepartarea namolului plutitor de la suprafata apei sunt reduse sau nu pompeaza de loc - infundare pompa de aer |
Se desfunda conducta de descarcare sau se curata cu jet de apa |
|
Iesirea aerului pentru namol de retur sau surplus si aerul pentru indepartarea namolului de la suprafata apei este redus sau nu pompeaza de loc - lipsa alimentare cu aer |
Reverificati integritatea duzelor de alimentare cu aer |
|
|
Compresor |
Compresorul asigura cantitate insuficienta cu aer |
Vezi instructiuni de utilizare - Cap 5 sau 6. |
Statiile de epurare sunt livrate in mod curent impreuna cu un compresor ce asigura alimentarea cu aer in rezervorul de activare si cu pompe de aer, ventilator de racire compresor, supapa solenoid si sistem de intrerupere. Cablarea componentelor electrice individuale poate fi gasita in schema electrica anexata la intrerupator.
Nu fac parte integranta din sistemul de cablare al ACO Aeropur Plus SB/ST intrerupatorul principal la cablurile de alimentare si cablurile propriu-zise (optional circuitul de semnalizare avarie inclusiv echipamentul de semnalizare).
Sistemul de distributie 1/N/PE AC 230V 50 Hz / TN-S
|
Nota |
Pentru imbunatatirea verificarii statiei de epurare se recomanda echiparea cu un circuit suplimentar cu semnalizare luminoasa sau acustica amplasat intr-un loc cu circulatie frecventa |
|
|
Compresor |
||
|
Tip |
Putere motor [W] |
||
|
Monofazat |
SLL - 40 | ||
|
Monofazat |
EL - S - 60 | ||
|
Monofazat |
EL - S - 120 | ||
|
Monofazat |
EL - S - 200 | ||
Compresorul este amplasat intr-o carcasa speciala, alimentarea cu aer este asigurata dinspre exterior.
Protectia motorului compresorului este IP 55.
Tip turbina: EVPE 2015.02
Alimentare: monofazat 230V - 50Hz
Protectie: IP 54
Intrerupatorul este echipat cu un intrerupator de circuit (control), doua relee de timp si un releu auxiliar. Unul dintre releele de timp controleaza functionarea intermitenta a compresorului, celalalt releu de timp controleaza functionarea intermitenta a turbinei.
Ambele timere au fost setate in fabrica. Pe timpul fuctionarii statiei se pot reseta timerele conform nevoilor.
|
Nota |
Este necesara atentie sporita pentru prevenirea inundarii sau patrunderii apei in intrerupator cand se scoate capacul. |
Intrerupator de circuit in statia de epuare la intrerupatorul R-AAP3-22
Intrerupator de circuit 4A/1 char.C
Sistem de distributie: 1/N/PE AC 230V 50 Hz / TN-S
Protectie intrerupator: IP 66/20
Este interzis sa:
Lasati mecanismele in miscare, cat si echipamentul electric in timpul functionarii, neacoperite cu capacele aferente lor.
Lasati deschis accesul in interiorul statiei.
Executati activitati care nu sunt in concordanta cu instructiunile de functionare sau cu regulile de siguranta muncii.
Intrati/manevrati cu flacara deschisa - pericol de a aprinde materialul plastic (polipropilena)
Tip SLL 40 (ACO Aeropur Plus ST 3)
Instructiuni
Cititi informatiile cu atentie pentru a va asigura ca acest produs functioneaza corect.
Urmati instructiunile de siguranta.
Orice interventie alta decat din cele recomandate in acest manual se va face numai de catre personal autorizat.
In continuare se vor explicita trei tipuri diferite de pericol.
|
|
Pot aparea raniri grave sau chiar moartea daca este ignorat pericolul. |
|
|
|
Pot aparea raniri grave sau chiar moartea daca este ignorat pericolul. |
|
|
|
Pot aparea raniri usoare sau deteriorari ale produsului daca este ignorat pericolul. |
|
|
Temperature ambientala nu trebuie sa depaseasca 40°C. Pentru functionari la temperaturi mai mari contactati producatorul. |
||
|
|
||
|
Intotdeauna deconectati alimentarea cu curent inainte de interventiile de service. In caz contrar exista pericol de electrocutare, raniri sau moarte. |
||
|
Nu atingeti piesele neizolate. Atingerea acestora cauzeaza electrocutare. |
||
![]()
|
|
||
|
|
|
|
|
|
|
|
|
|
||
|
|
|
|
|
|
|
||
|
|
|
|
||
|
|
|
|
||
|
|
|
|
||
|
|
|
|
||
|
|
|
|
||
|
|
|
|
||
|
|
|
|
||
|
|
||||
|
|
|
|
||
|
|
|
|
||
|
Urmariti procedura de la cutia turbinei si inlocuirea diafragmei (1 - 11). |
||||
|
|
||||
|
Asigurati-va ca magnetul este in centrul solenoidului. In caz contrar pot aparea stricaciuni ale pieselor sau scurcircuit. |
||||
|
|
|
|
||
|
|
|
|||
|
|
|
|||
|
|
|
|||
|
Urmati procedura de la cutia supapei si inlocuirea diafragmei (12 - 16 )
|
||||
|
Asigurati-va ca magnetul este in centrul solenoidului. In caz contrar pot aparea stricaciuni ale pieselor, scurtcircuite. |
||||
Tip EL-S-60 (
Instructiuni
Cititi informatiile cu atentie pentru a va asigura ca acest produs functioneaza corect.
Urmati instructiunile de siguranta.
Orice interventie alta decat din cele recomandate in acest manual se va face numai de catre personal autorizat.
|
|
Pot aparea raniri grave sau chiar moartea daca este ignorat pericolul. |
|
|
|
Pot aparea raniri grave sau chiar moartea daca este ignorat pericolul. |
|
|
|
Pot aparea raniri usoare sau deteriorari ale produsului daca este ignorat pericolul. |
|
|
Temperatura ambientala nu trebuie sa depaseasca 40°C. Pentru functionari la temperaturi mai mari contactati producatorul. |
||
|
|
||
|
Intotdeauna deconectati alimentarea cu curent inainte de interventiile de service. In caz contrar exista pericol de electrocutare, raniri sau moarte. |
||
|
Nu atingeti piesele neizolate. Atingerea acestora cauzeaza electrocutare. |
||
|
|
||
|
|
|
|
|
|
|
|
|
|
||
|
|
|
|
|
|
||||||||
|
|
|
|
||||||||
|
|
|
|
||||||||
|
|
|
|
||||||||
|
|
|
|
||||||||
|
|
|
|||||||||
|
|
|
|
||||||||
|
|
|
|
||||||||
|
|
|
|
||||||||
|
|
|
|
||||||||
|
|
|
|
||||||||
|
|
|
|
||||||||
|
|
||||||||||
|
Asigurati-va ca magnetul este in centrul solenoidului. In caz contrar pot aparea stricaciuni ale pieselor, scurtcircuit. Montarea necorespunzatoare a periilor poate duce la electrocutare, pierderi de aer. |
||||||||||
|
|
|
|
||||||||
|
|
|
|
||||||||
|
| ||||||||||
|
| ||||||||||
|
Deconectati alimentarea inainte de interventie. Nu atingeti terminalul intrerupatorului. Daca se neglijeaza pericolul, este posibil electrocutarea. Daca nu deconectati, magnetul porneste miscarea in timpul resetarii auto-opririi. |
|
|
|
|
|
|
|
Urmati procedura de la inlocuire cutia turbinei si a diafragmei (1 - 7, 9 -12).
|
|
|
|
|
|
|
|
|
|
|
|
|
|
|
|
|
|
|
|
|
Asigurati-va ca magnetul este in centrul solenoidului. In caz contrar pot aparea stricaciuni ale pieselor, scurtcircuite. |
||
Přibyslav Milan Jun, Petr Trefný, Martin Gazda
|
Politica de confidentialitate |
| Copyright ©
2026 - Toate drepturile rezervate. Toate documentele au caracter informativ cu scop educational. |
Personaje din literatura |
| Baltagul – caracterizarea personajelor |
| Caracterizare Alexandru Lapusneanul |
| Caracterizarea lui Gavilescu |
| Caracterizarea personajelor negative din basmul |
Tehnica si mecanica |
| Cuplaje - definitii. notatii. exemple. repere istorice. |
| Actionare macara |
| Reprezentarea si cotarea filetelor |
Geografie |
| Turismul pe terra |
| Vulcanii Și mediul |
| Padurile pe terra si industrializarea lemnului |
| Termeni si conditii |
| Contact |
| Creeaza si tu |