S.C.
TERA R SRL
Jud. Mures
Tel : Fax
POLITICA DE PREVENIRE A ACCIDENTELOR MAJORE
|
ELABORAT: |
||||
|
NUMELE SI PRENUMELE |
FUNCTIA |
DATA |
SEMNATURA |
|
|
VERIFICAT: |
||||
|
NUMELE SI PRENUMELE |
FUNCTIA |
DATA |
SEMNATURA |
|
Lista de diFUZARE
a Politicii de Prevenire
|
Nr. Crt. |
Institutie /departament |
Numele si prenumele |
Data |
Semnatura de primire |
|
Agentia pentru Protectia Mediului Tarnaveni | ||||
|
Inspectoratul pentru Situatii de Urgenta "HOREA" al jud. Mures | ||||
|
Comisariatul Judetean Garda de Mediu | ||||
|
Administrator Terra Recycling |
Ing. Mircea IGNAT | |||
|
Director Productie Terra Recycling |
Sing. Florian HALMACIU |
|
Nr. crt. |
Editia / Rev. |
Data actualizarii /revizuirii |
Capitolul, pagina actualizate / revizuite |
Persoana care a efectuat operatia |
Descrierea modificarii |
CUPRINS:
|
A Politica de prevenire a accidentelor majore | |
|
Obiectivele globale ale titularului activitatii | |
|
Principiile de actiune referitoare la controlul asupra pericolelor de accident major | |
|
Lucrari si masuri in vederea prevenirii pericolului de accident major | |
|
B. Sistemul de management la securitatii | |
|
Organizare si personal | |
|
- rol si responsabilitati | |
|
- identificarea nevoilor de pregatire | |
|
- subcontractanti | |
|
Identificarea si evaluarea pericolelor majore | |
|
Metoda Zurich - analiza inductiva a riscului | |
|
Modelare scenarii cu ajutorul softului specializat ALOHA | |
|
Reprezentari grafice zone de risc | |
|
Controlul operational | |
|
Managementul pentru modernizare | |
|
Planificarea pentru situatii de urgenta | |
|
Monitorizarea performantei | |
|
Audit si revizuire |
A. POLITICA DE PREVENIRE A ACCIDENTELOR MAJORE
Obiectivele globale ale titularului activitatii
S.C. TERA R S.R.L. se identifica ca fiind o companie permanent preocupata in a dezvoltarea, implementa si imbunatati sisteme de management certificabile privind calitatea, mediul, sanatatea si siguranta, responsabilitatea sociala, care sustin strategia proprie a companiei, corespunzand totodata legislatiei romanesti si Directivelor Europene, precum si standardelor internationale.
In acest sens, compania promoveaza cu responsabilitate toate actiunile necesare in scopul prevenirii sau minimalizarii riscurile pentru societate, mediu si cele de natura economica.
Siguranta in operare reprezinta pentru S.C. TERA R S.R.L.un obiectiv strategic, compania cautand sa asigure reducerea incidentelor legate de productie, instalatiile detinute, activitatile de pe amplasament si activitatile conexe ce se desfasoara inspre / dinspre propriul amplasament. Pentru a se conforma acestui obiectiv strategic, S.C. TERA R S.R.L. are in derulare actiunea de implementare si certificare a un sistem propriu de management al calitatii, pe care il va impune si partenerilor sai de afaceri.
Politica de prevenire a accidentelor majore este pentru S.C. TERA R S.R.L.un angajament pentru o dezvoltare durabila orientata catre protectia sanatatii oamenilor, a mediului natural si o economie prospera. Baza acestei politici o constituie aplicarea unor masuri tehnice consacrate pe plan mondial si fezabile economic pentru o protectie ridicata a mediului in intreaga activitate desfasurata.
In acest context conducerea organizatiei isi asuma urmatoarele angajamente:
- reducerea la minim a potentialelor riscuri pentru factorul de mediu si uman;
- asigurarea conformarii la normele si reglementarile legale;
imbunatatirea continua a conditiilor de mediu si de securitate in exploatare;
- pregatirea intregului personal in vederea cunoasterii riscurilor si problemelor de mediu pe care activitatea lor o implica.
Aplicarea acestei politici este responsabilitatea tuturor departamentelor S.C. TERA R S.R.L. sub coordonarea responsabilului in managementul securitatii, care raspunde pentru implementarea si comunicarea acesteia catre angajati. Comunicarea permanenta intre compartimentele functionale sta la baza implementarii eficiente, iar monitorizarea prin audituri de securitate periodice permite implementarea de eventuale corectii.
Performantele de mediu privind respectarea normelor si reglementarilor sunt raportate conducerii societatii conform unor reguli precise.
Principiile de actiune referitoare la controlul asupra pericolelor de accident major
Politica generala pentru prevenirea, pregatirea si responsabilitatea in cazul accidentelor industriale este bazata pe urmatoarele principii:
a. prevenirea care presupune constructia intreprinderii si operarea in asa fel incat sa se previna dezvoltarea necontrolata a operatiilor anormale, consecintele eventualelor accidente sa fie minime si in acord cu cele mai bune tehnici de securitate disponibile;
b. identificarea si evaluarea pericolelor majore prin studii sistematice de operabilitate si de evaluare a factorilor de risc specifici, precum si efectuarea de analize de securitate individuale si detaliate pentru fiecare situatie de pericol identificata ;
c. evaluarea necesitatilor de securitate ierarhizate functie de "tipul si anvergura pericolului asteptat" in baza cantitatilor de substante periculoase si a activitatilor industriale susceptibile si relevante pentru accidente.
d. prioritatea protectiei si salvarii vietii oamenilor.
In aplicarea acestor principii, S.C. TERA R S.R.L. desfasoara in mod curent urmatoarele activitati:
ofera resursele necesare pentru dezvoltarea sistemelor de management in scopul derularii operatiunilor sale sub semnul principiilor dezvoltarii durabile;
comunica in permanenta cu toate partile interesate pentru a aplica cele mai bune tehnologii disponibile pe plan mondial si fezabile economic pentru a asigura o protectie ridicata pentru mediu si populatie prin intreaga activitate desfasurata;
monitorizeaza, actualizeaza si comunica permanent listele specifice privind substantele chimice periculoase care sunt manipulate pe amplasament si privind contactele cu institutiile abilitate sa intervina in situatii de urgenta;
constientizeaza si disemina in comunitate problemele specifice potential generatoare de situatii de urgenta, asigurand pregatirea populatiei pentru o reactie imediata adecvata;
avertizeaza oportun populatia asupra riscurilor de poluare si afectare a zonelor limitrofe unitatii si va interveni cu forte si mijloace de care dispune pentru protectia populatiei si inlaturarea efectelor poluarii.
PROGRAMUL DE MASURI SI LUCRARI IN VEDEREA PREVENIRII ACCIDENTELOR CHIMICE
INSTALATIA PENTRU PRODUCEREA SI IMBUTELIEREA ACETILENEI DIN CARBID |
||||||
|
Nr. Crt. |
Masura sau lucrarea |
Scopul |
Atributii |
Termene |
Observatii |
|
|
Incepere |
p.i.f. |
|||||
|
Director Productie |
permanent | |||||
|
Sef Instalatie |
permanent |
Conform planului de intretinere si reparatii, reparatii accidentale |
||||
|
Marcarea corespunzatoare a traseelor de conducte, inclusiv cu sensul de curgere |
Evitare manevre gresite |
Sef Instalatie |
conform planului de mentenanta |
Conform planului de intretinere si reparatii, |
||
|
Mentinerea in stare de functionare a clapetelor de inchidere/deschidere (obturator exhaustor) |
Prevenire evacuare necontrolata in atmosfera |
Sef Instalatie |
permanent |
permanent |
Conform plan de reparatii si intretinere |
|
|
Mentinerea curateniei, a accesului la bazinele de depozitare slam si a canalelor colectoare. |
Interventie la bazinele de slam in cazul deversarilor sau scapari |
Sef Instalatie |
permanent |
permanent |
Conform procedurilor operationale. |
|
|
Mentinerea stocului de materiale de interventie in caz de poluari accidentale (materiale absorbante, furtune, pompe, scule) |
Interventie |
Director Productie |
permanent |
permanent |
Conform normativelor si procedurilor de aprovizionare |
|
|
Instruirea corespunzatoare a personalului din subordine privind interventia in cazul producerii unor situatii de urgenta |
Interventia in caz de accident chimic Constientizarea personalului |
Director Productie |
permanent |
permanent |
Conform planului de instruire si a tematicii |
|
|
8. |
Mentinerea in stare de functionare a aparaturii de detectare scurgeri de acetilena |
Detectare scurgeri de acetilena |
Sef instalatie |
permanent |
permanent |
Conform normelor metrologice |
B. SISTEMUL DE MANAGEMENT AL SECURITATII
S.C. TERA R S.R.L. constientizeaza ca, prin natura activitatilor specifice desfasurate, ce implica producerea, vehicularea si depozitarea de substante chimice periculoase, amplasamentul pe care il gestioneaza poate constitui sursa unui accident industrial cu efecte negative pentru angajati, populatie, mediul natural si antropic, asumandu-si astfel responsabilitatea adoptarii tuturor masurilor preventive pentru controlul acestui pericol. Astfel, admininstratorul societatii a numit un responsabilul in domeniul managementului securitatii, in vederea ducerii la indeplinire a prevederilor H.G. 804/2007 privind controlul asupra pericolelor de accident major in care sunt implicate substante periculoase, conform prevederilor art. 22 din actul normativ specificat anterior. In aceasta functie a fost numit sing. Florian, director de productie al S.C. TERA R S.R.L.
Insusirea si aplicarea corecta a Politicii de prevenire a accidentelor majore constituie responsabilitatea tuturor angajatilor, pe baza fiselor de post ce prevad atributiile specifice ce revin acestora in domeniul situatiilor de urgenta.
In conformitate cu Ordinul MAI nr. 712 din 23 iunie 2005, modificat si completat cu Ordinul OMAI 786/2005, se executa instruirea salariatilor in domeniul situatiilor de urgenta in scopul insusirii cunostintelor si formarii deprinderilor necesare in vederea prevenirii si reducerii efectelor negative ale situatiilor de urgenta sau ale dezastrelor pe amplasamentul societatii.
In relatiile cu partenerii de afaceri (furnizori de bunuri si / sau servicii, subcontractori, etc.), S.C. TERA R S.R.L. a stabilit si transmis catre acestia regulile si masurile de protectie specifice si de asemenea, prevede sarcini si responsabilitati specifice ce decurg din planul de alarmare si interventie si pe care aceste parti trebuie sa le asigure prin efort propriu.
a. Organizare si personal
Pentru limitarea si inlaturarea urmarilor situatiilor de urgenta in cadrul S.C. TERA R S.R.L. s-a organizat si dotat formatiunile proprii destinate interventiei in situatii de urgenta. S-a constituit o structura de management al situatiilor de urgenta, integrata in organigrama S.C. TERA R S.R.L. S.A., potrivit hotararii Consiliului de Administratie al S.C. S.C. TERA R S.R.L.
Pentru personalul implicat in managementul si interventia de urgenta, atributiile specifice care reies si din organigrama functionala redata mai jos, vor fi detaliate in paragrafele ce urmeaza.
STRUCTURA MANAGERIALA SI FLUXUL DE INFORMATII
IN SITUATII DE URGENTA CHIMICA
ADMINISTRATOR (Sef Celula de
Urgenta)

Rol
si responsabilitati
executa organizarea si pregatirea personalului pentru a asigura raspunsul la urgenta in interiorul amplasamentului
se incadreaza in Celula de Urgenta, monitorizeaza activitatile specifice situatiilor de urgenta, intocmeste notificari pe care le prezinta spre aprobare Sefului Celulei de Urgenta.
Seful de Instalatie este persoana responsabila de actiunile indeplinite la locul accidentului, controland echipela de raspuns la urgenta, adoptand decizii cu privire la resursele necesare, coordonand echipela de raspuns la urgenta si comunicand cu cei aflati in afara locului accidentului.
Seful de Instalatie este persoana responsabila de actiunile desfasurate la locul accidentului, coordonarea unitara actiunii tuturor fortelor stabilite pentru interventie, adoptand decizii cu privire la resursele necesare, si comunicand cu cei aflati in afara locului accidentului.
FISA RESPONSABILULUI IN DOMENIUL MANAGEMENTULUI SECURITATII
Atributii de baza ale postului
Asigura permanent coordonarea planificarii si a realizarii activitatilor si masurilor de protectie si pregatire pentru situatii de urgenta, participa la pregatirea personalului incadrat in formatiunea proprie pentru Situatii de Urgenta, a salariatilor si este membru al Celulei de Urgenta.
a) asigura identificarea, monitorizarea si evaluarea factorilor de risc specifici, generatori de evenimente periculoase;
b) stabileste si urmareste indeplinirea masurilor si a actiunilor de prevenire si de pregatire a interventiei;
c) urmareste organizarea si dotarea, pe baza criteriilor de performanta elaborate de Inspectoratul General pentru Situatii de Urgenta, a formatiunii proprii pentru Situatii de Urgenta
d) participa la exercitii si aplicatii in domeniul situatiilor de urgenta si conduce nemijlocit actiunile de alarmare, evacuare, interventie, limitare si inlaturare a urmarilor situatiilor de urgenta desfasurate de formatiunea proprie;
e) propune constituirea de stocuri pentru situatii de urgenta: echipamentele, substantele, mijloacele si antidoturile adecvate riscurilor specifice, necesare formatiunii de interventie;
f) organizeaza instruirea si pregatirea personalului incadrat in munca in domeniul situatiilor de urgenta;
g) asigura alarmarea populatiei din zona de risc creata ca urmare a activitatilor proprii desfasurate;
h) propune, anual, in bugetul propriu, fonduri pentru cheltuieli necesare desfasurarii activitatilor de protectie civila;
i) instiinteaza persoanele si organismele competente asupra factorilor de risc si le semnaleaza, de indata, cu privire la iminenta producerii sau producerea unei situatii de urgenta civila la nivelul institutiei;
j) stabileste si transmite catre subcontractori regulile si masurile de protectie specifice, corelate cu riscurile previzibile la utilizare, manipulare, transport si depozitare;
k) incheie contracte, conventii sau protocoale de cooperare cu alte servicii de urgenta profesioniste sau voluntare;
l) mentine in stare de functionare mijloacele de transmisiuni-alarmare si le verifica periodic;
m) indeplineste alte obligatii si masuri stabilite, potrivit legii, de catre organismele si organele abilitate.
Cerinte specifice pentru membrii Celulei de Urgenta
sa cunoasca in detaliu prevederile prezentului document precum si a tuturor planurilor standard si specifice de operare, pregatire si interventie in situatii de urgenta;
sa cunoasca echipamentele, fortele, mijloacele si orice alt tip de resurse care pot fi utilizate pentru interventie in situatii de urgenta, locul de dispunere si modul de utilizare a acestora
sa cunoasca toate substantele chimice, materialele, deseurile, fluxul acestora si locul lor de depozitare incidentele care pot sa apara pe timpul transportului, manipularii, depozitarii sau pe timpul fluxului de productie, precum si masurile imediate care trebuie luate in caz de accident
sa cunoasca toate operatiile ce se desfasoara in zona de productie, in zonele auxiliare.
sa cunoasca componenta echipei de interventie si a resurselor de care aceasta dispune
sa cunoasca personalul de intretinere si cel productiv care are atributii in procesele critice de functionare a activitatilor de pe amplasament, realizand pornirea-oprirea instalatiilor
sa cunoasca dispunerea personalului in zonele care pot fi afectate in caz de accidente
SEFUL DE INSTALATIE
Seful de Instalatie raspunde de interventia pentru situatii de urgenta la locul de munca, sarcina derivata si din Fisa Postului, (obligatie de serviciu).
Este obligat sa-si insuseasca operatiunile necesare desfasurarii interventiei pentru situatii de urgenta si de coordonare nemijlocita a fortelor pentru interventia in faza incipienta.
Raspunde de instruirea in domeniul situatiilor de urgenta a personalului din subordine (operatori chimisti si lacatusi).
Pregatirea sa se va completa cu o instruire specifica in functie de locul de desfasurare a activitatii si a tipului de incident care se poate produce in perimetrul respectiv
Asigura coordonarea unitara actiunii tuturor fortelor stabilite pentru interventie si este responsabil alaturi de seful echipei de interventie in situatii de urgenta pentru executarea oportuna si operativa a interventiei - oprirea si retentia scurgerilor, asigurarea serviciilor medicale, stingerea incendiilor si operatiunile de salvare.
Pe timpul executarii atributiilor, se subordoneaza nemijlocit inspectorului de protectie civila. Va tine in permanenta legatura cu acesta si va furniza datele despre situatia reala creata, actiunile de interventie desfasurate, pagubele produse, numarul victimelor, necesarul de forte si mijloace de interventie suplimentare. De asemenea pe timpul interventiei va coopera cu toate categoriile de forte venite in sprijin pentru limitarea si lichidarea urmarilor negative ale situatiei de urgenta, asigurand acestora toate informatiile si mijloacele necesare pentru interventie.
ATRIBUTII SPECIFICE FORMATIUNIi DE INTERVENTIE
pentru Situatii de Urgenta
Personalul incadrat in formatiunea de interventie va fi disponibil pe amplasament si va actiona conform instructiunilor date de catre Directorul de productie, in situatii care implica: incendii si/sau explozii, situatii de accidente cu substante chimice periculoase. deversari sau scurgeri de substante chimice, materiale periculoase sau deseuri.
Aceasta va fi instruita si in ceea ce priveste manipularea si caracteristicile substantelor periculoase si a compusilor acestora ce se pot forma in diferite reactii in interiorul amplasamentului,
Personalul incadrat in formatiunea de interventie va fi pregatit pentru a interveni pe amplasament in caz de incendii si/sau explozii, situatii de accidente cu substante chimice periculoase.
Personalul incadrat in formatiunea de interventie trebuie sa cunoasca modul de actiune si interventie pentru pericolele ce pot surveni in urma accidentelor pe amplasament, putand indeplini mai multe responsabilitati in timpul unei situatii de urgenta in situatii deosebit de complexe.
Interventia de specialitate, pana la sosirea efectivelor Inspectoratului pentru Situatii de Urgenta "HOREA" al judetului MURES este asigurata de catre personalul incadrat in formatiunea de interventie ale S.C. TERA R S.R.L.
Pregatire specifica
trebuie sa fie instruiti in acordarea primului ajutor persoanelor ranite sau contaminate.
sa urmeze cursuri de specialitate pentru interventia in situatii de urgenta si in incidente ce implica substante chimice periculoase
participarea in exercitii de stingere a incendiilor si de raspuns la urgente care implica materiale periculoase;
executa conform planificarii pregatirea continua, conform specificului de interventie al echipei;
executa antrenament pentru manuirea corecta a tehnicii de interventie, a accesoriilor si echipamentului de protectie;
cunoaste semnalele de alarmare, locul de adapostire, locul de unde se ridica materialele repartizate pentru interventie;
Relatii de subordonare: Formatiunea pentru Situatii de Urgenta se subordoneaza direct Sefului Celulei de Urgenta - Administratorul S.C. TERA R S.R.L.
Responsabilitatile principale ale Formatiunii pentru Situatii de Urgenta
Asigurarea disponibilitatii echipamentului de urgenta si a bunei functionari a acestuia pentru utilizarea in cadrul activitatilor de interventie;
Realizarea unor inspectii si teste periodice ale echipamentelor de stingere a incendiilor;
Interventia imediata la solicitare, pe amplasamentul urgentei;
actioneaza pentru lichidarea incidentului si evacuarea persoanelor din zona afectata si limitarea urmarilor negative
participa la executarea cercetarii zonei afectate, delimitarea, marcarea si izolarea acesteia, estimarea numarului de persoane afectate si stabilirea nevoilor de interventie
functie de situatie si de ordinele primite, pot indeplini si alte misiuni ca: participarea la actiunile de salvare, de prim ajutor si transport al ranitilor, sau alte activitati in zona afectata de distrugeri .
participarea la inlaturarea urmarilor dezastrelor si reabilitarea zonei;
participa la actiunile de limitare si lichidare a focarului creat,
echipa DE INTERVENTIE SI PRIM AJUTOR
Membrii echipei de interventie in caz de accident cu substante periculoase vor fi disponibili pe amplasament si vor actiona conform instructiunilor date de catre Directorul de productie, in situatii care implica: incendii, explozii, deversari sau scurgeri de substante chimice, materiale periculoase sau deseuri.
Acestia vor fi instruiti in ce priveste manipularea si caracteristicile substantelor periculoase si a compusilor acestora ce se pot forma in diferite reactii in interiorul amplasamentului.
Pregatire specifica pentru acest post
executa conform planificarii pregatirea continua, conform specificului de interventie al echipei;
participarea in exercitii de raspuns la urgente care implica materiale periculoase;
executa antrenament pentru manuirea corecta a tehnicii de interventie, a accesoriilor si echipamentului de protectie;
cunoaste semnalele de alarmare, locul de adapostire, locul de unde se ridica materialele repartizate pentru interventie;
Responsabilitatile principale ale membrilor Echipei de interventie
realizarea periodica a inspectiilor si testelor echipamentelor de raspuns la urgente care implica substante periculoase;
asigura mentinerea tehnicii de interventie in stare de functionare, dupa regulamentul stabilit ;
asigura raspunsul imediat la locul incidentului;
actioneaza pentru remedierea incidentului
functie de situatie si de ordinele primite, pot indeplini si alte misiuni ca: participarea la actiunile de salvare, de prim ajutor si transport al ranitilor, sau alte activitati in zona afectata de distrugeri .
participarea la inlaturarea urmarilor dezastrelor
participarea in exercitii de raspuns la urgente medicale;
executa conform planificarii pregatirea continua, conform specificului de interventie al echipei;
cunoaste semnalele de alarmare, locul de adunare a ranitilor, locul de unde se ridica materialele repartizate pentru interventie;
realizarea periodica a inspectiilor si testelor echipamentelor de raspuns la urgente medicale;
raspunsul imediat la locul incidentului;
acordarea primului ajutor medical si transportul ranitilor la punctele de adunare si evacuare;
instalarea punctelor de adunare triaj si evacuare a ranitilor si contaminatilor;
participarea la aplicarea unor masuri de profilaxie si antiepidemice;
participarea la asigurarea nevoilor de apa, hrana si medicamente;
participarea la inlaturarea urmarilor dezastrelor si reabilitarea zonei din punct de vedere medical;
asigura recoltarea probelor din sectorul infectat (apa, produse animale, produse vegetale) si le transmite la laboratorul sanitar cel mai apropiat;
|
Nr. crt. |
Denumire curs/ tematica |
Perioada de realizare |
Costuri, RON |
Observatii |
Cine raspunde |
|
Instruire ISCIR |
Iunie - 2008 |
Resurse umane |
|||
|
Instruire substante periculoase |
Resurse umane |
||||
|
Consilier de siguranta |
Realizat |
Resurse umane |
|||
|
Curs transportator ADR |
Realizat |
Resurse umane |
|||
|
Autorizari ISCIR stivuitorist |
Resurse umane |
||||
|
Auditor OHSAS |
Realizat |
Resurse umane |
|||
|
Autorizare instalatii EX |
2007 - 2008 |
Realizat |
Resurse umane |
||
|
Instruire securitatea muncii |
lunar |
Personal din unitate |
Securitatea muncii |
||
|
Instruire conformare cu legislatia de mediu |
lunar |
Personal din unitate |
Protectia Mediului |
||
|
Instruiri situatii de urgenta |
lunar |
Personal din unitate |
Inspector Protectie Civila |
||
|
Instruiri acordarea primului ajutor |
lunar |
Personal din unitate |
Securitatea muncii + medic de intreprindere |
||
|
Prelucrare instructiuni de lucru |
lunar |
Personal din unitate |
Seful locului de munca |
||
|
Testare cunostinte securitatea muncii, situatii de urgenta, protectia mediului |
anual |
Personal din unitate |
Seful locului de munca |
||
|
Simulari privind interventiile in situatii de urgenta |
trimestrial |
Personal din unitate |
Inspector Pr. C. + sef loc munca |
||
|
Curs cadru tehnic P.S.I. |
Conform planificarii |
Cadru tehnic PSI |
Cadru tehnic PSI |
||
|
Curs Inspector Pr. Civila |
2-4 ani |
Inspector Pr. C. |
Inspector Pr. C. |
Masuri pentru ASIGURAREA PREGATIRII
|
Nr. crt. |
Denumire masura |
Periodici-tate |
|
Efectuare exercitii tactice de alarmare falsa (fara oprirea instalației) la nivelul instalației. |
anual |
|
|
Efectuare exercitii tactice de alarmare pe amplasament. |
anual |
|
|
Examinarea intregului personal muncitor asupra cunostintelor pe linie de alarma chimica cu ocazia verificarii cunostintelor de situatii de urgenta, cu consemnare in fisa individuala de instructaj de situatii de urgenta si in procesul de verbal de instruire. |
anual |
|
|
Pastrarea completa a inventarului si mentinerea in stare de functionare a mijloacelor de protectie si interventie (masti, aparate de respirat) |
permanent |
|
|
Prelucrarea cu tot personalul a instructiunilor de utilizare a mijloacelor de protectie individuala, cu consemnare in fisa individuala de instructaj de situatii de urgenta si in procesul verbal de instruire. |
anual si la angajare |
|
|
Instruirea echipei de interventie cu consemnare in fisa individuala de instructaj de situatii de urgenta si in procesul verbal de instruire. |
anual |
|
|
Instruire pe linie de alarmare in caz de accident chimic a noilor angajati, a vizitatorilor, delegatilor, echipelor speciale pentru diverse lucrari. |
permanent. |
|
|
Dotarea cu toate materialele prevazute in barem a truselor portabile de prim ajutor pentru echipele de salvare |
permanent. |
|
|
Actualizarea evidentei si componentei a echipelor de interventie cu persoane prezente la serviciu si instruite. |
permanent. |
|
|
Afisarea vizibila a tabelelor nominale cu componenta echipelor de interventie |
permanent. |
|
|
Prelucrarea cu personalul din subordine a fiselor toxicologice ale substantelor nocive/periculoase, a modul de recunoastere organoleptic sau cu ajutorul aparatelor speciale si a masurilor ce se impun pentru prevenirea eventualelor intoxicatii precum si masurile de primul ajutor, cu consemnare in fisa individuala de instructaj de situatii de urgenta si in PV de instruire. |
anual. |
|
|
Reactualizarea instructiunilor de lucru si protectia muncii pentru manevrele tehnologice si interventiile mecanice pe linie de substante periculoase din planul de interventie si instruirea personalului in acest scop. |
La trei ani si ori de cate ori este nevoie. |
|
|
Aprovizionarea cu necesarul de piese de schimb pentru aparatele si echipamentele de interventie conform planului de interventie |
Conform program |
|
|
Reactualizarea permanenta a schemelor tehnologice. |
La nevoie. |
|
|
Asigurarea iluminarii corespunzatoare a locurilor de munca, estacadelor magistrale si a cailor de acces |
permanent. |
|
|
Verificarea dotarilor si completarea materialelor de stins din cadrul pichetelor PSI locale. |
semestrial |
|
|
Executarea instruirii in domeniul situatiilor de urgenta in conformitate cu O.M.A.I. nr. 712 din 23 iunie 2005, modificat si completat: instructajul introductiv general, instructajul specific locului de munca, instructajul periodic, instructajul pe schimb, acolo unde situatia o impune, instructajul special pentru lucrari periculoase, instructajul la recalificarea profesionala, instructajul pentru personalul din afara. |
Conform Ordin 712 |
OBLIGATII SPECIFICE ALE CONTRACTORILOR CE DESFASOARA ACTIVITATI PE AMPLASAMENTUL S.C. COMPANIA S.C. TERA R S.R.L. S.A.
Personalul care desfasoara activitati pe amplasament in calitate de contractor va cunoaste si actiona conform procedurilor interne S.C. TERA R S.R.L.
Orice subcontractor care isi desfasoara activitatea in interiorul sau in jurul amplasamentului si observa sau este avertizat privind manifestarea unei situatii de urgenta, va trebui sa actioneze imediat.
Prima actiune pe care trebuie sa o faca este de a anunta responsabilul cu securitatea amplasamentului al S.C. TERA R S.R.L. S.A., folosind orice mijloc de comunicatie disponibil. In continuare persoana respectiva isi va anunta seful direct.
Personalul aflat pe amplasament are obligatia sa:
Ramana la locurile lor de munca pana vor fi instruiti prin intermediul unui sistem de comunicatii sau alarma
Sa nu se apropie de zona afectata de urgenta decat daca au primit instructiuni clare in acest sens
Sa se pregateasca sa evacueze zona si sa urmeze procedurile de evacuare
Sa fie pregatiti pentru a sprijini eforturile celorlalti la solicitarea inspectorului de protectie civila, inginerului de productie sau altui personal de interventie.
Relatiile contractuale cu furnizorii de servicii sunt reglementate prin contracte concepute in scopul atingerii obiectivelor de siguranta in toate fazele de constructie si apoi in operare.
IDENTIFICAREA SI EVALUAREA PERICOLELOR MAJORE
In cadrul procesului de identificare si evaluare a pericolelor majore aferente amplasamentului S.C. TERA R S.R.L s-a urmarit adoptarea si implementarea procedurilor specifice identificarii sistematice a pericolelor majore care rezulta din operarea normala si anormala precum si evaluarea probabilitatii si severitatii acestora.
In acest sens, s-au folosit mai multe metode specifice precizate in Ordinul nr. 1299 din 23.12.2005 privind aprobarea Procedurii de inspectie pentru obiectivele care prezinta pericole de producere a accidentelor majore in care sunt implicate substante periculoase.
Ca metoda de identificare si evaluare aa fost folosita Metoda Zurich - metoda inductiva de analiza a riscului
Activitatile curente de generare, vehiculare, depozitare in activitatea desfasurata pe amplasament a unor cantitati mari de substante si preparate periculoase, in anumite conditii poate duce la situatii de risc major, pericolul fiind determinat de coexistenta mai multor factori de risc, care sunt prezentati in tabelul urmator:
|
Pericolul |
Factorul de risc probabil |
|
Chimic |
- stocare si vehiculare de substante toxice si potential periculoase; - degajari sau deversari curente si accidentale de substante toxice sau nocive pentru mediu. |
|
Explozie |
- instalatii sub presiune. |
|
Incendiu |
- stocare de substante inflamabile - utilizare alte substante inflamabile (gaz metan, benzina si motorina); - existenta retelelor electrice. |
Pentru identificarea si evaluarea riscurilor a fost luata in consideratie si contributia unor factori externi precum:
conditiile climatice anormale (precipitatii, temperatura, activitate seismica, vant, alunecari de teren, inundatii);
retele de transport;
constructii ingineresti ;
activitatile industriale si publice invecinate.
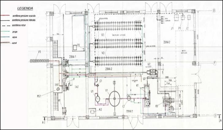
DESCRIEREA INSTALATIEI
Instalatia se compune din urmatoarele utilaje:
condensator,
uscator de joasa presiune,
purificator,
scruber amoniacal,
compresor de acetilena Wurzen nr.1, de capacitate 40 Nm3/h,
compresor de acetilena Wurzen nr. 2, de capacitate 40 Nm3/h,
baterii de uscare de inalta presiune (cu trei coloane de uscare)
rampa de imbuteliere a acetilenei in butelii (trei linii de imbuteliere).

Materia prima pentru fabricarea acetilenei tehnice este carbura de calciu tehnica=carbid.
Carbidul utilizat este de granulatie :
a) - 0-
b)- 0-
Carbidul aflat in butoaie metalice de
Anterior incarcarii buncarului de pe
generator, muncitorul care deserveste generatorul va purja cu azot, buncarul
gol, prin deschiderea ventilului corespunzator de pe traseul de azot si a celui
de bypass de pe supapa de siguranta. Dupa purjare se deschide capacul
buncarului, se aseaza butoiul de
Generatorul de acetilena functioneaza cu alimentare alternativa din cele doua buncare de alimentare de pe generator, astfel incat, atunci cand unul din buncare este incarcat (in rezerva), generatorul este alimentat cu carbid din celalalt buncar. Dupa golirea completa a acestuia, alimentarea generatorului este comutata pentru buncarul aflat in rezerva. Operatia de incarcare se executa identic pentru buncarul care s-a golit.
Odata cu caderea carbidului in apa se genereaza instantaneu acetilena, ca urmare a reactiei chimice dintre carbid si apa. Acetilena generata este evacuata la o presiune de 0,3-0,5 bar din vasul generatorului, prin intermediul a doua opritoare de flacara, prevazute cu discuri metalice perforate si umplute 1/3 cu apa.
Apa necesara reactiei chimice este asigurata fie din reteaua de apa potabila, fie din bazinele de apa aflate in hala, fie prin recircularea limpedelui de slam. Admisia apei in vasul generatorului se realizeaza automat printr-o valva de admisie activata pneumatic, iar evacuarea slamului din generator, decurge in mod automat, prin intremediul unei valve de evacuare slam. Comenzile celor doua valve sunt dictate de nivelul apei din generator si temperatura acesteia (optim 60 C), prin intermediul unor traductoare de temperatura si nivel. Pe traseul de evacuare al gazului generat, pe opritoarele de flacara si buncarele de alimentare, exista supape de siguranta ale caror cai de refulare sunt colectate intr-o conducta de evacuare in atmosfera.
Procesul de generare a acetilenei este condus, in mod automat, de un sistem de comanda si control, compus din controloare de temperatura, de presiune si de nivel.
Reactia dintre carbid si apa este o
reactie exoterma, care conduce la cresterea temperaturii din generator.
Temperatura din generator este mentinuta la o valoare optima de 60 C, printr-un controlor pneumatic de
temperatura. La cresterea temperaturii peste valoarea optima, acesta comanda
deschiderea valvei de admisie a apei, astfel incat sa se mentina raportul
recomandat de carbid-apa (
Nivelul apei in generator este controlat printr-un controlor de nivel. Atunci cand nivelul apei in generator este ridicat, controlorul de nivel da comanda de deschidere a valvei de scurgere a slamului, scazand astfel nivelul apei din generator. Atunci cand nivelul apei in generator este scazut, controlorul de nivel da comanda de deschidere a valvei pilot de admisie a apei in generator, aducand astfel nivelul apei din generator la normal.
Presiunea din interiorul generatorului este controlata de un comutator de presiune Mercoid. Daca presiunea depaseste nivelul maxim reglat (0,5 bar), se decupleaza mecanismul de antrenare al alimentatorului elicoidal si sistemul hidraulic corespunzator, oprindu-se astfel generarea acetilenei. In momentul in care presiunea acetilenei din generator scade sub 0,3 bar, comutatorul Mercoid da comanda alimentatorului elicoidal sa alimenteze generatorul cu carbid, pana la atingerea presiunii de 0,5 bar.
In cazul nefunctionarii acestui comutator, sunt prevazute valve de siguranta reglate sa se deschida la o presiune de 0,7 bar (pe domul de gaz si opritoarele de flacara).
Exista o situatie particulara, la aparitia simultana a temperaturii ridicate si a nivelului ridicat de apa in generator, caz in care constructia sistemului face ca evacuarea slamului sa devina prioritara fata de admisia apei, lucru realizat prin incorporarea unei valve pilot de inchidere a apei la nivel ridicat.
Alarma sonora cu care este prevazut generatorul, sesizeaza situatii anormale de functionare, cum ar fi: nivel ridicat sau nivel scazut al apei din generator, temperatura maxima a apei din generator si presiune scazuta a aerului instrumental.
In hala generatorului exista pericolul unor degajari accidentale de acetilena. Din aceasta cauza, aici este montat unul din capetele explozimetrului automat fix, cu semnalizare acustica si optica. La un prag de prealarmare a concentratiilor periculoase aer-acetilena de 20% din limita inferioara de explozie (0,48% acetilena in atmosfera) se declanseaza hupa, iar la un prag de prealarmare a concentratiilor periculoase aer-acetilena de 40% din limita inferioara de explozie (0,96% acetilena in atmosfera) pornesc automat ventilatoarele de avarie.
Prin montarea celor doua ventilatoare de avarie se respecta conditiile impuse de procesul tehnologic si cele impuse de tehnica securitatii muncii. Ventilatia urmareste sa impiedice acumularile de gaze care ar putea forma amestecuri explozive aer-acetilena.
Acetilena gazoasa care paraseste generatorul de acetilena poate avea temperatura maxima t = 80 C. Ea contine vapori de apa antrenati din generator, precum si impuritati gazoase provenite din carbid. Aceste impuritati pot fi: hidrogen sulfurat (H2S), hidrogen fosforat (fosfina, H3P), hidrogen arseniat (H3As), amoniac (NH3), hidruri de siliciu, etc.
Condensatorul raceste acetilena, indepartand astfel vaporii de apa aflati in exces. Acetilena circula prin interiorul tevilor de jos in sus, iar apa de racire, in spatiul dintre tevi, in echicurent cu acetilena. Condensul este colectat la partea inferioara a aparatului si este evacuat periodic. Apa de racire este captata si recirculata in procesul tehnologic.
Acetilena gazoasa de joasa presiune este trecuta in partea inferioara a uscatorului de joasa presiune. Uscatorul consta dintr-un cilindru vertical incarcat cu clorura de calciu anhidra. Puritatea clorurii de calciu trebuie sa fie de minim 80%. Clorura de calciu absoarbe umiditatea din acetilena, fluidizandu-se. Din acest motiv ea va fi indepartata in mod periodic din uscator. Purificarea avansata a acetilenei nu poate fi obtinuta fara un oarecare grad de umiditate a gazului. De aceea se prevede o linie de by-pass a condensatorului prin care va trece in permanenta o cantitate oarecare de acetilena umeda, direct spre purificator.
Purificatorul este un
vas cilindric cu capace sferice. In interiorul sau exista doua talere perforate
(gratare) care sustin masa de purificare. Masa de purificare de pe fiecare
taler este impachetata intr-o sita fina. Aparatul este captusit in interior cu
vopsea cauciucata, clorurata, ca protectie anticoroziva. Fiecare taler al
purificatorului este incarcat cu
Masa de purificare a acetilenei este de tip regenerativ. Ea trebuie reactivata la fiecare 125 h de functionare prin expunerea, timp de 48 h, la presiune atmosferica si lopatata din cand in cand, pe o sita de sarma.
Purificarea este necesara pentru indepartarea impuritatilor anterior amintite. Impuritatile sunt daunatoare pentru utilizatorul final al acetilenei gazoase (in executarea operatiilor de suduri, taieri, precum si la folosirea lampilor de iluminat) si pentru comprimarea acetilenei. Puritatea minima a acetilenei la intrarea in compresor trebuie sa fie de 96%.
Acetilena gazoasa strabate de jos in sus, toata umplutura purificatorului.
Impuritatile sunt retinute in masa de purificare, formand saruri duble si complecsi metalici cu caracter aromatic.
Testul cu azotat de argint (AgNO3) ne furnizeaza informatii cu privire la masa de purificare, daca este epuizata sau nu.
Acetilena gazoasa este barbotata in apa din scruberul amoniacal pentru a indeparta impuritatile solubile in apa, cum ar fi amoniacul (NH3). La trecerea prin scruber, gazul se va umezi putin, avantajand astfel operatia de comprimare si uscare de inalta presiune.
Pe capacul superior al scruberului amoniacal exista un racord care permite luarea probelor in vederea determinarii puritatii acetilenei. Daca aceasta nu are concentratia minima de 96%, acetilena este ventilata la cosul de dispersie.
In cazul in care concentratia acetilenei este satisfacatoare (96%), ea este trecuta la faza de comprimare.
Comprimarea acetilenei se realizeaza in compresoare cu trei trepte, de tip Wurzen -Germania nr.1 si de tip Wurzen - Germania nr. 2
Compresoarele Wurzen - Germania sunt compresoare in trei trepte de tip vertical cu racire separata a acetilenei intre trepte. Toate cele trei trepte ale compresoarelor sunt prevazute cu manometre pentru monitorizarea presiunii pe fiecare treapta. Lubrifierea partilor componente in miscare ale compresoarelor este realizata prin intermediul unei pompe de ulei montata in afara rezevorului
Circuitul de ulei este prevazut cu un manometru pentru monitorizarea presiunii de ulei. Pentru ungerea cilindrului este prevazut un ungator central Grützner, controlul ungerii efectuandu-se prin deschiderea unor ventile de control montate pe fiecare treapta.
Functionarea compresoarelor se bazeaza pe trei dispozitive de control:
un comutator Mercoid de presiune joasa: acesta opreste functionarea compresorului cand acetilena are presiunea de admisie mai mica decat valoarea reglata;
un comutator Mercoid de presiune ridicata: acesta opreste functionarea compresorului cand presiunea acetilenei depaseste valoarea presiunii de incarcare a rampei de imbuteliere;
regulatorul de presiune: are rolul de a regla presiunea maxima de incarcare a rampei de imbuteliere.
Pe traseul de acetilena de inalta presiune exista un racord de luare a probelor in vederea determinarii puritatii acetilenei (minim 98%). Acest racord este situat inaintea primei coloane a bateriei de uscatoare de inalta presiune.
Acetilena gazoasa comprimata trebuie uscata, deoarece vaporii de apa ar conduce la micsorarea capacitatii de absorbtie a acetilenei in acetona, prin diluarea acetonei.
Bateria de uscatoare de inalta presiune este alcatuita din trei coloane. Prima coloana este umpluta cu lant care evita separarea la impact. A doua si a treia coloana sunt umplute fiecare cu doua capsule, continand clorura de calciu anhidra. In mod periodic, din fiecare coloana se evacueaza apa provenita din umiditatea acetilenei si clorura de calciu hidratata.
Este interzisa exploatarea bateriei de uscatoare de inalta presiune fara umpluturile mentionate mai sus, deoarece in caz contrar se pot produce explozii.
Acetilena gazoasa purificata si comprimata este trecuta spre rampa de imbuteliere a cilindrilor prin intremediul regulatorului de presiune (2 buc.), a supapelor unidirectionale (6 buc.), a ventilelor sferice cu actionare manuala (6 buc.) si a opritoarelor de flacara (3 buc.).
Rampa de imbuteliere este alcatuita din trei linii. Fiecare linie este prevazuta cu cate 50 de fitinguri pentru incarcarea simultana a 50 de butelii de acetilena, cu cate un ventil pentru admisia acetilenei catre cele doua manometre care indica presiunea liniei de imbuteliere, cu cate un ventil pentru traseul de returnare a acetilenei de inalta presiune si cu cate un ventil la capatul liniei pentru evacuarea acetilenei la cosul de dispersie. Rampa de imbuteliere a acetilenei este legata la pamantare, iar prin legaturile metalice se realizeaza si pamantarea buteliilor.
De la fiecare ventil de incarcare de pe rampa de imbuteliere, pleaca prin intermediul unui teu cate doua furtune flexibile metalice care au fixate la capatul liber un jug.
In timpul operatiei de imbuteliere temperatura acetilenei creste datorita caldurii de dizolvare, astfel ca buteliile se incalzesc, iar viteza de umplere si capacitatea de dizolvare a acetonei va scadea. Se utilizeaza o instalatie de racire a buteliilor cu un debit de stropire de minim 0,1 l/s m2 de suprafata ocupata de butelii.
Durata de imbuteliere a 50 de butelii de acetilena este de aproximativ 3 h, la prima incarcare, astfel incat fiecarei butelii sa-i revina, pe ora, cel mult 1/8 din capacitatea sa de incarcare. Aceste butelii se incarca simultan si ele trebuie sa aiba de la inceputul operatiei de imbuteliere aceeasi presiune, care va creste treptat pana la presiunea finala de umplere. Incarcarea cu un debit mai mare poate conduce la incalziri locale periculoase.
Se vor incarca butelii cu aceeasi presiune nominala de umplere.
Umplerea buteliilor de acetilena decurge alternativ pe cele trei linii de imbuteliere, asigurandu-se astfel o stationare de aproximativ 6 ore necesare racirii buteliilor. A doua incarcare a buteliilor dureaza aproximativ 1-1,5 h, functie de tipul buteliei si temperatura mediului ambiant.
Controlul umplerii buteliilor pline se realizeaza prin deconectarea de la
rampa de imbuteliere a patru butelii de proba (10% din capacitatea liniei) si
determinarea greutatii lor finale, in camera de acetonare. Daca continutul de
acetilena a buteliilor de proba este mai mic de
Exista posibilitatea de a functiona in paralel cu cele doua compresoare de acetilena. Datorita capacitatilor diferite, instalatia este astfel proiectata incat oricare din cele trei linii de imbuteliere se fie conectate la unul din cele doua compresoare de acetilena.
Traseul de returnare a acetilenei realizeaza legatura dintre cele trei linii ale rampei de imbuteliere si conducta de admisie a acetilenei in condensator. Traseul permite recuperarea acetilenei dizolvate din buteliile partial pline, provenite de la utilizator (butelii cu presiune remanenta de acetilena, mare), din instalatia de imbuteliere (butelii care au fost descoperite cu apa in acetona si nu s-au incarcat corespunzator) sau butelii pline sau partial pline cu ventilele deblocate de muncitorul din atelierul de reparatii butelii.
Deasupra rampei de imbuteliere este prevazuta o instalatie de stins incendii de sprinclere cu apa. Aceasta instalatie asigura o stropire a rampei de imbuteliere a acetilenei in caz de incendiu, garantand o functionare sigura.
In hala de purificare-uscare-comprimare-imbuteliere exista pericolul unor degajari accidentale de acetilena. Din aceasta cauza, aici sunt montate trei capete ale explozimetrului automat fix, cu semnalizare acustica si optica, la un prag de prealarmare a concentratiilor periculoase aer-acetilena. Explozimetrul este interconectat la sistemul de ventilatie si declanseaza automat ventilatoarele de avarie in momentul atingerii pragului de prealarmare a concentratiilor periculoase aer-acetilena.
Prin montarea celor patru ventilatoare de avarie se respecta conditiile impuse de procesul tehnologic si cele impuse de tehnica securitatii muncii. Ventilatia urmareste sa impiedice acumularile de gaze care ar putea forma amestecuri explozive aer-acetilena.
Acetilena-gaz
Depozitul pentru recipienti-butelii de acetilena corespunde prevederilor prescriptiilor tehnice C5-ISCIR-2003:
- este amenajat in aer liber, constructie semideschisa de tip sopron, executat din materiale necombustibile;
- este prevazut cu acoperis care protejeaza buteliile impotriva razelor solare si a intemperiilor;
- buteliile pline sunt depozitate in box-paleti metalici (12,16 butelii intr-un box-palet), astfel sunt protejate impotriva rasturnarii;
- fiecare butelie este prevazuta cu capac metallic (otel), bine insurubat;
- depozitul este prevazut cu tablitele avertizoare corespunzatoare unui produs foarte inflamabil "F+";
- este prevazut cu echipamente de stins incendiul, respectand astfel normele de PSI in vigoare;
- presiunea de incarcare a buteliilor este de 15 bari;
- buteliile sunt transportate si incarcate in incinta societatii cu motostivuitorul, verificat annual conform prescriptiilor ISCIR.
Capacitatea depozitului este de 650 butelii.
Oxigen tehnic -gaz
Depozitul pentru recipienti-butelii de oxigen corespunde prevederilor prescriptiilor tehnice C5-ISCIR-2003:
- este amenajat in aer liber, constructie de tip sopron, ingradit si executat din materiale necombustibile;
- este prevazut cu acoperis care protejeaza buteliile impotriva razelor solare si a intemperiilor;
- este compartimentat si marcat cu tablite avertizoare: "butelii pline; butelii goale ";
- buteliile sunt asigurate impotriva rasturnarii cu lanturi;
- este prevazut cu echipamente de stins incendiu, tablite avertizoare, respectand astfel normele de SSM in conformitate cu legislatia in vigoare;
- capacitatea depozitului este de 100 butelii pline, fiecare butelie avand un volum de 6mc/butelie.
- presiunea de incarcare a buteliilor este de 150 atm.
Carbidul
Depozitarea si transportul butoaielor de carbid se face cu respectarea normelor specifice de securitate a muncii pentru fabricarea, transportul si depozitarea acetilenei si a legislatiei in vigoare privind regimul substantelor toxice si periculoase.
-este o hala construita din materiale necombustibile, neincalzit, bine aerisit si protejat impotriva umezelii;
-carbidul este ambalat in butoaie metalice, inchise ermetic, asezate pe box-paleti de lemn si etichetate conform normelor in vigoare;
-box-paletii sunt stivuiti pe doua randuri cu respectarea distantei, dintre randuri conform prescriptiilor tehnice si a normelor specifice fabricarii acetilenei;
-depozitul este prevazut cu echipamente de stins incendiul, corespunzator alese si cu tablite avertizoare, astfel incat sa fie respectate toate normele de securitate prevazute de legislatia in vigoare.
Acetona
Depozitul de acetona este amplasat la distanta fata de restul instalatiei de producere si imbuteliere a acetilenei, este separat prin intermediul mai multor pereti despartitori construiti din materiale necombustibile de incaperea cu personalul administrativ.
- este neincalzit, aerisit natural si protejat impotriva acumularilor electrostatice prin montarea de prize de pamant si utilizarea echipamentelor de iluminat antiex;
- este dotat cu echipamente de stins incendiul (stingator cu dioxid de carbon) si cu tablite avertizoare respectand legislatia in vigoare privind regimul substantelor toxice si periculoase.
Acetonarea buteliilor
Box-paletii cu buteliile de acetilena goale sunt transportati cu ajutorul transpaletei in camera de acetonare. Inaintarea operatiei de acetonare, muncitorul va examina fiecare butelie de acetilena in parte verificand scadenta ISCIR si starea exterioara a buteliei. Buteliile mai vechi de 40 de ani, precum si cele la care nu se cunoaste anul fabricatiei se scot din uz. Fiecare butelie de acetilena va fi consemnata in protocolul de incarcare. Butelia de acetilena se va aseza pe cantarul cu doza tensiometrica, se racordeaza la manometru pentru determinarea presiunii remanente de acetilena din butelie si apoi se citeste valoare cantarita. Cantarirea se efectueaza avand butelia echipata cu postament, inel de gat, robinet, masa poroasa, dizolvant, acetilena remanenta si fara capac de protectie. In functie de temperature din camera de acetonare, presiunea remanenta si tipul buteliei se determina cantitatea de gaz remanent. Cantitatea de gaz remanent se aduna la tara obtinandu-se greutatea corecta a buteliei, din care scazand greutatea buteliei goale, se determina cantitatea de acetone ce trebuie adaugata. Operatia de acetonare se executa cu ajutorul unui montejus. Dupa acetonare butelia este dusa la rampa de imbuteliere.
Materii prime si utilitati
Materia prima, carbidul, este aprovizionat prin intermediul distribuitorilor autorizati din tara.
- apa de process si de racire este asigurata din magistrala oraseneasca de apa potabila si din putul propriu situate pe amplasamentul societatii.
- utilitatile sunt asigurate din magistralele orasenesti.
POZITIONAREA
S.C. TERRA REYCLING S.R.L.
![]()

![]()
ORASUL
TARNAVENI 
VEDERE DE ANSAMBLU A AMPLASAMENTULUI
INSTALATIA DE PRODUCERE SI IMBUTELIERE A ACETLIENEI

INSTALATIA DE PRODUCERE SI IMBUTELIERE A ACETLIENEI

POSIBILI INITIATORI AI EVENIMENTELOR
|
Initiatori din afara locatiei |
Impactul cu aeronave |
|
|
Eveniment seismic |
||
|
Prabusire |
||
|
Conditii extreme de vreme |
Ploaie excesiva |
|
|
Zapada excesiva |
||
|
Temperatura foarte scazuta |
||
|
Temperatura ridicata |
||
|
Inundatii |
||
|
Furtuna, uragan, vartejuri instantanee |
||
|
Descarcari electrice |
||
|
Erori de operare |
Sistem neprotejat |
|
|
Umplerea unui sistem deschis |
||
|
Sistem supraalimentat |
||
|
Sarcini excesive |
||
|
Continut degradat |
||
|
Distrugere produsa de raspuns incorect la alarma |
||
|
Actionare gresita a armaturilor de izolare |
||
|
Sarcini anormale |
Impact cu un vehicul |
|
|
Impact cu un proiectil / rachete militare |
||
|
Impact cu o sarcina in cadere |
||
|
Temperatura sau presiune in afara limitelor de operare proiectate |
||
|
Temperatura / presiune exterioara in afara limitelor din proiect |
||
|
Ruperea recipientului sau conductei |
||
|
Vacuum |
||
|
Actiuni ostile / sabotaj |
Incendiu |
|
|
Explozie |
||
|
Sistem de securitate degradat / deteriorat |
||
|
Contaminare |
||
|
Sistem de control deteriorat |
||
|
Sistem contaminat / virusat |
||
|
Defectari si management defectuos |
Coroziune / eroziune |
|
|
Sarcini ciclice |
||
|
Specificatii de materiale neadecvate |
||
|
Atac chimic |
||
|
Defecte ascunse |
||
|
Defectiuni in detectarea sistemelor periculoase |
||
|
Defectiuni ale proceselor de control |
||
|
Acumulari de sarcini electrostatice |
||
|
Echipament de lucru si scule neadecvate conditiilor de lucru |
||
|
Caderea tensiunii de alimentare a sistemului / lipsa electricitatii |
||
|
Lipsa apei de racire |
||
Metoda Zurich -analiza inductiva a riscului
Pentru identificarea potentialelor accidente majore specifice amplasamentului S.C. TERA R S.R.L. s-a procedat la o evaluare calitativa a riscului asociat scenariilor de accidente posibile.
Analiza calitativa are ca obiectiv principal stabilirea listei de hazarduri posibile, face posibila ierarhizarea evenimentelor in ordinea riscului si prezinta primul pas in metodologia de realizare a analizei cantitative a riscurilor. Evaluarea calitativa a riscului se realizeaza prin calculul nivelului de risc ca produs intre nivelul de gravitate si cel de probabilitate ale evenimentului analizat
a. Masura calitativa a consecintelor este realizata prin incadrarea in cinci nivele de gravitate, care au urmatoarea semnificatie:
1. Nesemnificativ
. Pentru oameni (populatie): vatamari nesemnificative
. Ecosisteme: Unele efecte nefavorabile minore la putine specii sau parti ale ecosistemului, pe termen scurt si reversibile
. Socio-politic: Efecte sociale nesemnificative fara motive de ingrijorare pentru comunitate.
2. Minor
. Pentru oameni (populatie): este necesar primul ajutor;
. Emisii: emisii in incinta obiectivului retinute imediat;
. Ecosisteme: daune neinsemnate, rapide si reversibile pentru putine specii sau parti ale ecosistemului, animale obligate sa-si paraseasca habitatul obisnuit, plantele sunt inapte sa se dezvolte dupa toate regulile naturale, calitatea aerului creeaza un disconfort local, poluarea apei depaseste limita fondului pentru o scurta perioada;
. Socio-politic: Efecte sociale cu putine motive de ingrijorare pentru comunitate.
3. Moderat
. Pentru oameni (populatie): sunt necesare tratamente medicale;
. Economice: reducerea capacitatii de productie;
. Emisii: emisii in incinta obiectivului retinute cu ajutor extern;
. Ecosisteme: daune temporare si reversibile, daune asupra habitatelor si migratia populatiilor de animale, plante incapabile sa supravietuiasca, calitatea aerului afectata de compusi cu potential risc pentru sanatate pe termen lung, posibile daune pentru viata acvatica, poluari care necesita tratamente fizice, contaminari limitate ale solului si care pot fi remediate rapid;
. Socio-politic: Efecte sociale cu motive moderate de ingrijorare pentru comunitate
4. Major
. Pentru oameni (populatie): vatamari deosebite;
. Economice: intreruperea activitatii de productie;
. Emisii: emisii in afara amplasamentului fara efecte daunatoare;
. Ecosisteme: moartea unor animale, vatamari la scara larga, daune asupra speciilor locale si distrugerea de habitate extinse, calitatea aerului impune "refugiere in siguranta" sau decizia de evacuare, remedierea solului este posibila doar prin programe pe termen lung;
. Socio-politic: Efecte sociale cu motive serioase de ingrijorare pentru comunitate
5. Catastrofic
. Pentru oameni (populatie): moarte;
. Economice: oprirea activitatii de productie;
. Emisii: emisii toxice in afara amplasamentului cu efecte daunatoare;
. Ecosisteme: moartea animalelor in numar mare, distrugerea speciilor de flora, calitatea aerului impune evacuarea, contaminare permanenta si pe arii extinse a solului;
. Socio-politic: Efecte sociale cu motive deosebit de mari de ingrijorare pentru comunitate
b. Masura probabilitatii de producere este realizata prin incadrarea in cinci nivele, care au urmatoarea semnificatie:
1. Rar (improbabil) se poate produce doar in conditii exceptionale - Frecventa de aparitie mai mica de 10-12 evenimente/an..
2. Putin probabil s-ar putea intampla candva - Frecventa de aparitie intre 10-8 si 10-12 evenimente/an.
3. Posibil se poate intampla candva - Frecventa de aparitie intre 10-6 si 10-8 evenimente/an.
4. Probabil se poate intampla in cele mai multe situatii - Frecventa de aparitie intre 10-4 si 10-6 evenimente/an.
5. Aproape sigur este asteptat sa se intample in cele mai multe situatii - Frecventa de aparitie peste 10-4 evenimente/an..
Utilizand informatiile obtinute din analiza, riscul este plasat intr-o matrice de forma urmatoare:
|
Consecinte |
||||||||
|
Nesemnificative |
Minore |
Moderate |
Majore |
Catastrofice |
||||
|
Probabilitate |
Improbabil |
< 10-12 | ||||||
|
Putin probabil |
10-8 la 10-12 | |||||||
|
Posibil |
10-6 la 10-8 | |||||||
|
Probabil |
10-4 la 10-6 | |||||||
|
Aproape sigur |
> 10-4 | |||||||
|
Nivele de risc |
Definitie |
Actiuni ce trebuie intreprinse |
|||
|
Risc foarte scazut |
Conducerea actiunilor prin proceduri obisnuite, de rutina |
||||
|
Risc scazut |
Conducerea actiunilor prin proceduri obisnuite, de rutina |
|
||||
|
Risc moderat |
Se actioneaza prin proceduri standard specifice, cu implicarea conducerii de la locurile de munca |
||||
|
Risc ridicat |
Actiuni prompte, luate cat de repede permite sistemul normal de management, cu implicarea conducerii de varf |
||||
|
Risc extrem |
Fiind o situatie de urgenta, sunt necesare actiuni imediate si se vor utiliza prioritar resursele disponibile |
||||
Pentru evaluarea riscurilor asociate activitatii ce va fi desfasurata in cadrul proiectului, s-a procedat la atribuirea unor valori numerice pentru fiecare nivel de gravitate a consecintelor si de probabilitate a producerii eventualului accident imaginat, riscul asociat fiecarui scenariu fiind reprezentat de produsul dintre cele doua valori atribuite. La stabilirea valorilor asociate nivelelor de probabilitate si de gravitate se tine cont de impactul potential si de masurile de prevenire prevazute conform proiectului.
Pentru o mai sugestiva prezentare a concluziilor rezultate din analiza riscurilor accidentale specifice activitatii din amplasamentului S.C. TERA R S.R.L. se prezinta in continuare matricea de cuantificare a riscurilor, intocmita pe baza scenariilor de posibile accidente descrise.
|
Consecinte |
||||||||
|
Nesemnificative |
Minore |
Moderate |
Majore |
Catastrofice |
||||
|
Probabilitate |
Improbabil |
< 10-12 |
P1 |
|||||
|
Putin probabil |
10-8 la 10-12 |
P8 |
P6; P9; P10 |
P2; P7 | ||||
|
Posibil |
10-6 la 10-8 |
P5 |
P3; P4 | |||||
|
Probabil |
10-4 la 10-6 | |||||||
|
Aproape sigur |
> 10-4 | |||||||
Rezultatele analizei calitative de risc arata ca toate scenariile de accident luate in considerare prezinta un risc scazut sau foarte scazut. Pericolele identificate fac parte din categoria riscurilor scazute si foarte scazute. Actiunile care trebuie intreprinse in mod curent sunt cele stabilite prin procedurile obisnuite, de rutina.
|
Nivele de risc |
Pericol identificat |
Tip Risc |
Actiuni ce trebuie intreprinse |
||||
|
P8 |
Risc foarte scazut |
Conducerea actiunilor prin proceduri obisnuite, de rutina |
|||||
|
P1; P2; P3; P4; P5; P6; P7; P9; P10 |
Risc scazut |
Conducerea actiunilor prin proceduri obisnuite, de rutina |
|
|||||
Singurul scenariu care va genera efecte de domino interen cat si exterene este cel aferent Exploziei/incendiu la instalatia de producere si imbuteliere acetilena, putin probabil, cu consecinte majore, deci cu risc scazut. De mentionat ca acest scenariu ia in calcul implicarea intregii cantitati de acetilena care ar putea exista la un moment dat pe amplasament si nu cantitatea maxima din instalatie, recipientul de cea mai mare capacitate sau din recipiente interconectate.
Prin practica curenta, proceduri operationale, operatorul va asigura o legatura cat mai clara intre riscul identificat si masurile luate, printr-o abordare ierarhica, cu scopul evitarii accidentelor majore sau in ultima instanta a reducerii la minim a efectelor prin aplicarea de practici de siguranta la fiecare loc de munca.
Analiza situatie existente pentru amplasamentului SC TERA R SRL
in conformitate cu prevederile Ordinului nr. 321 din 28/04/2006 - Emitent: Ministerul Economiei si Comertului Intrare in vigoare: 05/06/2006- privind aprobarea Normativului pentru asigurarea indeplinirii cerintelor privind siguranta in exploatare si securitatea la incendiu pentru instalatiile care produc sau utilizeaza acetilena publicat in MO nr. 484 bis/5.VI.2006
|
Distante minime intre instalatiile de producere a acetilenei si obiective invecinate |
||||
|
Lucrari invecinate |
Distanta normata (m) |
Distanta existenta |
Situatie existenta |
|
|
Constructii si instalatii de fabricatie de categoria A si B de pericol de incendiu |
Rastele butelii, guri descarcare, skid - Statie distributie carburanti, Categoria A pericol de incendiu |
|||
|
Constructii si instalatii de fabricatie de categoria C, D si E de pericol de incendiu |
Cladire, magazin, anexe- Statie distributie carburanti, Categoria C pericol de incendiu |
|||
|
Constructii din centre foarte populate (cladiri publice sau cladiri inalte) |
Nu este cazul |
|||
|
Constructii social-cultural-administrative ale unitatilor industriale vecine |
Nu este cazul |
|||
|
Priza de aer a unitatilor de producere a oxigenului |
Nu este cazul |
|||
|
Cai ferate curente |
1 linie C.F. Tarnaveni - Blaj |
|||
|
Drumuri publice |
Locale |
Nu este cazul |
||
|
Judetene |
DJ 142 Tarnaveni - Blaj |
|||
|
Nationale |
Nu este cazul |
|||
Concluzie: Sunt respectate in totalitate si asigurator distantele normate fata de vecinatati.
SCENARII POSIBILE
|
Nr. crt. |
Pericolul |
Probabilitate |
Gravitate |
Risc |
Impacte potentiale |
Masuri de prevenire |
|
|
Avarierea grava a instalatiei |
Improbabil |
Catastrofica |
scazut |
Posibile emisii toxice in atmosfera |
Operarea corespunzatoare a surselor de risc de pe amplasament |
||
|
Avarierea grava a recipentelor - tuburi acetilena, |
Putin probabil |
Majora |
scazut |
Scurgeri toxice, emisii locale |
Sisteme de detectie a scurgerilor, verificari vizuale, cuva de retentie impermeabila |
||
|
Accident rutier intern - autospeciala transport tuburi acetilena si oxigen |
Posibil |
Moderata |
scazut |
Emisii locale |
Constructie speciala a autospecialei, gestionarea traficului intern, instruire specifica, masuri de reabiltare |
||
|
Erori de operare si/sau defectiuni la instalatie |
Posibil |
Moderata |
scazut |
Emisii locale |
Monitorizare permanenta, instruirea operatorilor |
||
|
Avariile la instalatia de ventilatie |
Posibil |
Moderata |
scazut |
Intoxicarea lucratorilor |
Proiectare si constructie speciala a instalatiei, instruire speciala a operatorilor, verificari periodice speciale |
||
|
Avariile la instalatia de producere si imbuteliere a acetilenei |
Putin probabil |
Moderata |
scazut |
Ranirea lucratorilor, pagube materiale |
Proiectare si constructie speciala a instalatiei, instruire speciala a operatorilor, verificari periodice speciale |
||
|
Explozie, incendiu la instalatia de producere si imbuteliere acetilena |
Putin probabil |
Majora |
scazut |
Accidente cu pierderi umane Pierderi materiale. |
Respectarea normativelor pentru depozitele de acetilena. Interzicerea accesului in zona depozitului a altor persoane |
||
|
Avarierea grava a recipentelor - tuburi oxigen |
Putin probabil |
Minora |
foarte scazut |
Emisii locale |
Respectarea normativelor pentru depozitele de oxigen. Interzicerea accesului in zona depozitului a altor persoane |
||
|
Avarierea grava a recipentelor - butoaie acetona |
Putin probabil |
Moderata |
scazut |
Emisii locale |
Respectarea normativelor pentru depozitare si manipulare. Interzicerea accesului in zona depozitului a altor persoane |
||
|
Avarierea grava a recipentelor - butoaie acetona urmata de incendiu |
Putin probabil |
Moderata |
scazut |
Accidente cu pierderi umane Pierderi materiale. |
Respectarea stricta a normativelor, permisul de lucru cu foc deschis, restrictii de acces la depozit. |
SUBSTATE CHIMICE PERICULOASE PREZENTE PE APLASAMENTUL
|
Nr. crt. |
Denumirea substantei periculoase |
Nr. CAS, Fraza de risc |
Localizarea |
Cantitate totala detinuta (tone) |
Mod de depozitare |
Volum maxim m3 |
Capacitate totala de stocare (tone) |
Clasificare NFPA (National Fire Protection Association) |
Starea fizica |
|||
|
Nh |
Nf |
Ni |
Nr |
|||||||||
|
ACETILENA |
74-86-2
Extrem de inflambil R5, R6, R12
Gaz inflamabil |
Depozit sopron si instalatie |
Tuburi metalice |
Gaz lichefiat |
||||||||
|
|
||||||||||||
S.C. TERRA RECYCLING. S.R.L.
|
Nr. Ordine |
Denumire |
Numar CAS |
Categoria / Substanta nominalizata |
Index Nr |
Clasificare 1 |
Calsificare 2 |
Calsificare 3 |
Clasificare 4 |
Calsificare 5 |
|
ACETYLENE |
Substanta nominalizata |
R5 |
R6 |
F+; R12 |
Environmental Hazard Classification European Commission - Joint Research Centre MAHB
|
Nr. crt. |
Denumirea substantei periculoase |
Nr. CAS, Fraza de risc |
Localizarea |
Cantitate totala detinuta (tone) |
Mod de depozitare |
Volum maxim m3 |
Capacitate totala de stocare (tone) |
Clasificare NFPA (National Fire Protection Association) |
Starea fizica |
|||
|
Nh |
Nf |
Ni |
Nr |
|||||||||
|
OXIGEN TEHNIC |
7782-44-7
R5, R6, R12
|
Depozit tip sopron |
Tuburi metalice |
ox |
Gaz lichefiat |
|||||||
|
|
||||||||||||
|
Nr. Ordine |
Denumire |
Numar CAS |
Categoria / Substanta nominalizata |
Index Nr. |
Clasificare 1 |
Calsificare 2 |
Calsificare 3 |
Clasificare 4 |
Calsificare 5 |
|
OXYGEN |
Substanta nominalizata |
O; R8 |
Environmental Hazard Classification - European Commission - Joint Research Centre MAHB
|
Nr. crt. |
Denumirea substantei periculoase |
Nr. CAS, Fraza de risc |
Localizarea |
Cantitate totala detinuta (tone) |
Mod de depozitare |
Volum maxim m3 |
Capacitate totala de stocare (tone) |
Clasificare NFPA (National Fire Protection Association) |
Starea fizica |
|||
|
Nh |
Nf |
Ni |
Nr |
|||||||||
|
CARBURA DE CALCIU |
R15 |
Depozit de carbid |
butoaie metalice inchise etans |
W |
Solid |
|||||||
|
|
||||||||||||
|
Nr. Ordine |
Denumire |
Numar CAS |
Categoria / Substanta nominalizata |
Index Nr. |
Clasificare 1 |
Calsificare 2 |
Calsificare 3 |
Clasificare 4 |
Calsificare 5 |
|
CALCIUM CARBIDE |
Substanta nenominalizata |
Environmental Hazard Classification - European Commission - Joint Research Centre MAHB
|
Nr. crt. |
Denumirea substantei periculoase |
Nr. CAS, Fraza de risc |
Localizarea |
Cantitate totala detinuta (tone) |
Mod de depozitare |
Volum maxim m3 |
Capacitate totala de stocare (tone) |
Clasificare NFPA (National Fire Protection Association) |
Starea fizica |
|||
|
Nh |
Nf |
Ni |
Nr |
|||||||||
|
ACETONA |
Xi; F R11, R36, R66; R67 |
Depozit de acetona |
Cubitainere plastic |
Lichid |
||||||||
|
|
||||||||||||
|
Nr. Ordine |
Denumire |
Numar CAS |
Categoria / Substanta nominalizata |
Index Nr. |
Clasificare 1 |
Calsificare 2 |
Calsificare 3 |
Clasificare 4 |
Calsificare 5 |
|
ACETONE |
Substanta nenominalizata |
R5 |
R6 |
F+; R12 |
Environmental Hazard Classification - European Commission - Joint Research Centre MAHB
Modelarea consecintelor cu ajutorul soft-ului ALOHA
Modelarea a fost facuta in conditiile atmosferice cele mai defavorabile:
Clasa de stabilitate atmosferica F
Viteza vantului 2 m/s
Temperatura 25 oC
Rugozitate tipic urbana
Nebulozitate 5 zecimi
Umiditate atmosferica 70%
A. ACETILENA
a. Pentru modelarea consecintelor s-a
avut in vedere atat recipientul de cea mai mare capacitate, tubul de
acetilena de
Au fost luate in considerare si modelate posibile efecte toxice, de radiatie termica si respectiv suprapresiune, corespunzatoare valorilor prag aferente celor 3 zone de planificare la urgenta:
Efecte toxice
|
C2H2 |
Zona de atentie |
Zona de risc |
Zona de pericol imediat |
||||||
|
ppm |
mg/m3 |
Efect observabil |
ppm |
mg/m3 |
Efect observabil |
ppm |
mg/m3 |
Efect observabil |
|
|
Miros de eter |
10% LIE |
100%LIE |
|||||||
Efecte radiatie termica:
|
C2H2 |
Zona de atentie |
Zona de risc |
Zona de pericol imediat |
|||
|
kW/m2 |
Efect observabil |
kW/m2 |
Efect observabil |
kW/m2 |
Efect observabil |
|
|
Durere in 60 secunde |
Arsuri de gradul II in 60 secunde |
Letalitate potentiala in 60 secunde |
||||
Efecte suprapresiune:
|
C2H2 |
Zona de atentie |
Zona de risc |
Zona de pericol imediat |
|||
|
mbar |
Efect observabil |
mbar |
Efect observabil |
mbar |
Efect observabil |
|
|
Avarii minore |
Spargere geamuri, distrugeri usoare |
Efecte de domino |
||||
Scenarii aferente recipientului de acetilena:
Efecte toxice recipient acetilena
|
Zona de atentie |
Zona de risc |
Zona de pericol imediat |
||||||
|
ppm |
mg/m3 |
Efect observabil |
ppm |
mg/m3 |
Efect observabil |
ppm |
mg/m3 |
Efect observabil |
|
Miros de eter |
10% LIE |
100%LIE |
||||||
Efecte radiatie termica BLEVE recipient acetilena
|
C2H2 |
Zona de atentie |
Zona de risc |
Zona de pericol imediat |
|||
|
kW/m2 |
Efect observabil |
kW/m2 |
Efect observabil |
kW/m2 |
Efect observabil |
|
|
Durere in 60 secunde |
Arsuri de gradul II in 60 secunde |
Letalitate potentiala in 60 secunde |
||||

Efecte radiatie termica JET FIRE recipient acetilena
|
C2H2 |
Zona de atentie sub |
Zona de risc sub |
Zona de pericol imediat sub |
|||
|
kW/m2 |
Efect observabil |
kW/m2 |
Efect observabil |
kW/m2 |
Efect observabil |
|
|
Durere in 60 secunde |
Arsuri de gradul II in 60 secunde |
Letalitate potentiala in 60 secunde |
||||
Efecte suprapresiune VCE recipient acetilena
|
C2H2 |
Zona de atentie |
Zona de risc |
Zona de pericol imediat |
|||
|
mbar |
Efect observabil |
mbar |
Efect observabil |
mbar |
Efect observabil |
|
|
Avarii minore |
Spargere geamuri, distrugeri usoare |
Efecte de domino - fara receptori |
||||

Scenarii aferente liniei de operare:
Efecte toxice linie de operare
|
C2H2 |
Zona de atentie |
Zona de risc |
Zona de pericol imediat |
||||||
|
ppm |
mg/m3 |
Efect observabil |
ppm |
mg/m3 |
Efect observabil |
ppm |
mg/m3 |
Efect observabil |
|
|
Miros de eter |
10% LIE |
100%LIE |
|||||||

Efecte radiatie termica BLEVE linie de operare
|
C2H2 |
Zona de atentie |
Zona de risc |
Zona de pericol imediat |
|||
|
kW/m2 |
Efect observabil |
kW/m2 |
Efect observabil |
kW/m2 |
Efect observabil |
|
|
Durere in 60 secunde |
Arsuri de gradul II in 60 secunde |
Letalitate potentiala in 60 secunde |
||||

Efecte radiatie termica JET FIRE( jet flama) linie de operare
|
C2H2 |
Zona de atentie |
Zona de risc sub |
Zona de pericol imediat sub |
|||
|
kW/m2 |
Efect observabil |
kW/m2 |
Efect observabil |
kW/m2 |
Efect observabil |
|
|
Durere in 60 secunde |
Arsuri de gradul II in 60 secunde |
Letalitate potentiala in 60 secunde |
||||
Efecte suprapresiune VCE (explozie nor vapori) linie de operare
|
C2H2 |
Zona de atentie |
Zona de risc |
Zona de pericol imediat |
|||
|
mbar |
Efect observabil |
mbar |
Efect observabil |
mbar |
Efect observabil |
|
|
Avarii minore |
Spargere geamuri, distrugeri usoare |
Efecte de domino - fara receptori |
||||

Efecte mecanice - proiectie frgmente
In cazul
exploziei unui tub de acetilena de
Avand in vedere
cele de mai sus, se considera raza de imprastiere a fragmentelor de
b. Modelarea consecintelor pentru intreaga
cantitate de acetilena posibil a fi prezenta pe amplasament.
Au fost luate in considerare si modelate posibile efecte toxice, de radiatie termica si respectiv suprapresiune, corespunzatoare valorilor prag aferente celor 3 zone de planificare la urgenta:
Efecte toxice
|
C2H2 |
Zona de atentie |
Zona de risc |
Zona de pericol imediat |
||||||
|
ppm |
mg/m3 |
Efect observabil |
ppm |
mg/m3 |
Efect observabil |
ppm |
mg/m3 |
Efect observabil |
|
|
Miros de eter |
10% LIE |
100%LIE |
|||||||
Efecte radiatie termica:
|
C2H2 |
Zona de atentie |
Zona de risc |
Zona de pericol imediat |
|||
|
kW/m2 |
Efect observabil |
kW/m2 |
Efect observabil |
kW/m2 |
Efect observabil |
|
|
Durere in 60 secunde |
Arsuri de gradul II in 60 secunde |
Letalitate potentiala in 60 secunde |
||||
Efecte suprapresiune:
|
C2H2 |
Zona de atentie |
Zona de risc |
Zona de pericol imediat |
|||
|
mbar |
Efect observabil |
mbar |
Efect observabil |
mbar |
Efect observabil |
|
|
Avarii minore |
Spargere geamuri, distrugeri usoare |
Efecte de domino |
||||
Efecte toxice acetilena - distrugere instalatie si butelii -
|
Zona de atentie |
Zona de risc |
Zona de pericol imediat |
||||||
|
ppm |
mg/m3 |
Efect observabil |
ppm |
mg/m3 |
Efect observabil |
ppm |
mg/m3 |
Efect observabil |
|
Miros de eter |
10% LIE |
100%LIE |
||||||


Efecte suprapresiune VCE distrugere instalatie si butelii -
|
C2H2 |
Zona de atentie |
Zona de risc |
Zona de pericol imediat |
|||
|
mbar |
Efect observabil |
mbar |
Efect observabil |
mbar |
Efect observabil |
|
|
Avarii minore |
Spargere geamuri distrugeri usoare |
Domino - instalatii si depozite interne, Statie Carburanti, linie CF, Autobaza |
||||


Limite de explozie nor vapori acetilena
-
|
C2H2 |
Zona de atentie |
Zona de risc |
Zona de pericol imediat |
|||
|
ppm |
Efect observabil |
ppm |
Efect observabil |
ppm |
Efect observabil |
|
|
10% LIE |
60% LIE |
100%LIE |
||||


B. ACETONA
a. Pentru modelarea consecintelor s-a
avut in vedere intreaga cantitate de acetona a recipentului de cea mai mare
capacitate, distrugerea catastrofala a unui cubitainer de acetona si eliberarea
concomitenta a
Au fost luate in considerare si modelate posibile efecte toxice si respectiv suprapresiune, corespunzatoare valorilor prag aferente celor 3 zone de planificare la urgenta.
Efecte toxice acetona
|
Zona de atentie |
Zona de risc |
Zona de pericol imediat |
||||||
|
ppm |
mg/m3 |
Efect observabil |
ppm |
mg/m3 |
Efect observabil |
ppm |
mg/m3 |
Efect observabil |
|
Miros de fructe |
neurotoxicitate |
neurotoxicitate |
||||||


Efecte suprapresiune VCE (explozie nor vapori) acetona - cubitainer
|
C3H6O |
Zona de atentie |
Zona de risc |
Zona de pericol imediat - m |
|||
|
mbar |
Efect observabil |
mbar |
Efect observabil |
mbar |
Efect observabil |
|
|
Avarii minore |
Spargere geamuri, distrugeri usoare |
Efecte de domino - nu este atinsa valoarea prag |
||||


Limite de explozie nor vapori acetona - cubitainer
|
C3H6O |
Zona de atentie |
Zona de risc |
Zona de pericol imediat |
|||
|
ppm mg/m3 |
Efect observabil |
ppm |
Efect observabil |
ppm |
Efect observabil |
|
|
10% LIE |
60% LIE |
100%LIE |
||||


b. In modelarea
consecintelor s-a avut in vedere si intreaga cantitate de acetona care ar
putea fi prezenta pe amplasament, distrugerea catastrofala tuturor
cubitainerelor de acetona si eliberarea concomitenta a
Au fost luate in considerare si modelate posibile efecte toxice si respectiv suprapresiune, corespunzatoare valorilor prag aferente celor 3 zone de planificare la urgenta.
Efecte toxice acetona - cantitate maxima
|
Zona de atentie |
Zona de risc |
Zona de pericol imediat |
||||||
|
ppm |
mg/m3 |
Efect observabil |
ppm |
mg/m3 |
Efect observabil |
ppm |
mg/m3 |
Efect observabil |
|
Miros de fructe |
neurotoxicitate |
neurotoxicitate |
||||||

Efecte suprapresiune VCE (explozie nor vapori) acetona - cantitate maxima
|
C3H6O |
Zona de atentie |
Zona de risc |
Zona de pericol imediat - m |
|||
|
mbar |
Efect observabil |
mbar |
Efect observabil |
mbar |
Efect observabil |
|
|
Avarii minore |
Spargere geamuri, distrugeri usoare |
Efecte de domino - nu este atinsa valaora prag |
||||
Nu se atinge valoarea corespunzatoare efectelor de domino!

Limite de explozie nor vapori acetona - cantitate maxima
|
C3H6O |
Zona de atentie |
Zona de risc |
Zona de pericol imediat |
|||
|
ppm mg/m3 |
Efect observabil |
ppm |
Efect observabil |
ppm |
Efect observabil |
|
|
10% LIE |
60% LIE |
100%LIE |
||||

C. OXIGEN
Pentru modelarea consecintelor s-a
avut in vedere intreaga cantitate de oxigen de pe amplasament, ditrugerea
catastrofala a tuburilor de oxigen si eliberarea concomitenta a
Au fost luate in considerare si modelate posibile efecte toxice, corespunzatoare valorilor prag TEEL aferente celor 3 zone de planificare la urgenta.
Efecte toxice oxigen
|
Zona de atentie |
Zona de risc |
Zona de pericol imediat < |
|||
|
ppm |
Efect observabil |
ppm |
Efect observabil |
ppm |
Efect observabil |
|
Toxicitate |
Deces |
||||
Datorita valorilor reduse ale razelor corespunzatoare celor trei zone de planificare la urgenta, nu s-a realizat reprezentarea grafica.
Efecte mecanice explozie tuburi de oxigen
In cazul
exploziei unui tub de oxigen proiectilele rezultate din fragmentarea tulbului
de oxigen pot parcurge distante de pana la
Avand in vedere
cele de mai sus, se considera raza de imprastiere a fragmentelor de
D. CARBURA DE CALCIU
Pentru modelarea consecintelor s-a avut in vedere intreaga cantitate de carbura de calciu de pe amplasament, 44,8 tone. Zonele de planificare la urgenta sunt cele corespunzatoare Emergency Response Guide 2008
Efecte carbura de calciu
|
Zona de atentie |
Zona de risc |
Zona de pericol imediat |
|
Efect observabil |
Efect observabil |
Efect observabil |
|
Detectare olfactiva |
Toxicitate, arsuri |
Deces |

Hazarde specifice acetilenei - Evaluare SCORECARD
Index hazard expunere (Worker Exposure Hazard Score - IRCH) = 19

Index hazard mediu inconjrator (Environmental Hazard Value Score - IRCH) = 52

Index hazard total ( Total Hazard Value Score - IRCH) = 18

Hazarde specifice carburii de calciu - Evaluare SCORECARD
Index hazard expunere (Worker Exposure Hazard Score - IRCH) = 16

Index hazard mediu inconjrator (Environmental Hazard Value Score - IRCH) = 30

Index hazard total ( Total Hazard Value Score - IRCH) = 13

Hazarde specifice acetonei - Evaluare SCORECARD
Index hazard expunere (Worker Exposure Hazard Score - IRCH) = 14

Index hazard mediu inconjrator (Environmental Hazard Value Score - IRCH) = 54

Index hazard total ( Total Hazard Value Score - IRCH) = 16

Calculul Balantei de Oxigen a compusilor organici
Sensibilitate, puterea si brizanta unui compus organic exploziv sunt oarecum dependente de balanta de oxigen a compusului si acestea tind sa se apropie de valori maxime in mod corespunzator apropierii valorii balantei de ozigen de valoarea zero. conform metodologiei dezvoltate de catre Lothrop and Handrick (1949).
Calculul Balantei de Oxigen OB
ACETILENA C2H2
|
Numar de atomi in compusul chimic |
Carbon |
Valoarea OB Balanta de Oxigen | ||
|
Hidrogen |
Fara risc potential de explozie ridicat |
|||
|
Oxigen | ||||
|
Masa moleculara | ||||
ACETONA C3H6O
|
Numar de atomi in compusul chimic |
Carbon |
Valoarea OB Balanta de Oxigen | ||
|
Hidrogen |
Fara risc potential de explozie ridicat |
|||
|
Oxigen | ||||
|
Masa moleculara | ||||
Caracterizarea substantelor chimice periculoase NFPA Code 704

ERPG: Emergency Response Planning
Gudeline
ERPG-1: Valoare prag maxima a concentratiei in aerul respirat sub care se considera ca aproape toti indivizii pot fi expusi pentru o ora fara a resimti alte efecte asupra starii de sanatate decat usoare si trecatoare sau fara a decela olfactiv in mod cert mirosul.
ERPG-2: Valoare prag maxima a concentratiei in aerul respirat sub care se considera ca aproape toti indivizii pot fi expusi pana la o ora fara a resimti sau dezvolta efecte ireversibile sau alte efecte serioase asupra starii de sanatate sau simptome care sa ii impiedice sa ia masuri de protectie.
ERPG-3: Valoare prag maxima a concentratiei in aerul respirat sub care se considera ca aproape toti indivizii pot fi expusi pana la o ora fara a resimti sau dezvolta efecte daunatoare asupra sanatatii, care pun in pericol viata.
|
C2H2 |
Zona de atentie |
Zona de risc |
Zona de pericol imediat |
||||||
|
ppm |
mg/m3 |
Efect observabil |
ppm |
mg/m3 |
Efect observabil |
ppm |
mg/m3 |
Efect observabil |
|
|
Miros usor de eter |
10% LIE |
100%LIE |
|||||||
|
O2 |
Zona de atentie |
Zona de risc |
Zona de pericol imediat |
||||||
|
ppm |
mg/m3 |
Efect observabil |
ppm |
mg/m3 |
Efect observabil |
ppm |
mg/m3 |
Efect observabil |
|
|
CaC2 |
Zona de atentie |
Zona de risc |
Zona de pericol imediat |
||||||
|
ppm |
mg/m3 |
Efect observabil |
ppm |
mg/m3 |
Efect observabil |
ppm |
mg/m3 |
Efect observabil |
|
|
C3H6O |
Zona de atentie |
Zona de risc |
Zona de pericol imediat |
||||||
|
ppm |
mg/m3 |
Efect observabil |
ppm |
mg/m3 |
Efect observabil |
ppm |
mg/m3 |
Efect observabil |
|
|
Miros de fructe |
neurotoxicitate |
neurotoxici tate |
|||||||
Valorile prag corespunzatoare cellor trei zone de planificare la urgenta precum si efectele observabile respective au fost preluate din Specificatiile tehnice relative la continutul si prezentarea rapoartelor de securitate emise de catre Celula de Risc de accidente majore - Directia de coordonare a prevenirii poluarii, Belgia.
Controlul operational
Controlul operational in cadrul activitatii S.C. TERA R S.R.L. cuprinde doua laturi principale si anume monitorizarea tehnologica si monitorizarea factorilor de mediu.
Monitorizarea tehnologica consta in masurarea si controlul permanent a parametrilor fizico-chimici si tehnici ai procesului de operare, in conformitate cu prevederile standardelor de operare si a regulamentului de fabricatie, pentru realizarea performantelor tehnice impuse precum si pentru asigurarea sigurantei in functionare. Rezultatele acestei monitorizari permit depistarea operativa a unor eventuale avarii sau functionari anormale, la intocmirea bilantului de materiale si stau la baza unor decizii privind aplicarea de masuri corective, de oprire partiala sau totala a activitatii sau chiar la declansarea procedurilor de alarmare chimica si interventie.
Monitorizarea factorilor de mediu consta in efectuarea de analize continue sau periodice a calitatii apelor si aerului din zona amplasamentului si verificarea conformarii la standardele de mediu. Rezultatele acestei monitorizari permit depistarea operativa a unor eventuale avarii sau functionari anormale si stau la baza unor decizii privind aplicarea de masuri corective sau chiar la declansarea procedurilor de alarmare chimica si interventie. In cazul producerii unor avarii soldate cu accidente majore, se realizeaza o monitorizare continua a zonelor afectate, pana la remedierea totala a efectelor acestora.
Managementul pentru modernizare
Managementul pentru modernizare in cadrul S.C. TERA R S.R.L. are in vedere planificarea si controlul tuturor schimbarilor la nivelul conducerii, angajatilor, instalatiilor, proceselor tehnologice si a parametrilor de operare, a materialelor si materiilor prime utilizate, a echipamentelor tehnice de masura si control precum si a celor de protectie, a regulamentului de exploatare si a instructiunilor de lucru, software, si acolo unde este cazul, a schimbarilor determinate de circumstante externe care sunt capabile sa afecteze controlul riscului la accident major. Se au in vedere schimbarile permanente, temporare sau urgente.
Principiile aplicate pentru implementare sistemului de management pentru modernizare adoptat consta in:
- identificarea si definirea schimbarilor propuse cu retinerea si documentarea aprofundata a celor ce constituie o modificare semnificativa;
- alocarea responsabilitatilor pentru initierea schimbarilor si autorizare (functie de specificul si domeniul vizat de schimbarea propusa);
evaluarea si prioritizarea implicatiilor pentru mediu si siguranta ale schimbarilor propuse (cu eventuala colaborare a specialistilor din afara societatii);
- definirea si documentarea masurilor de control a impactului modificarilor propuse asupra mediului si sigurantei;
- aprobarea, alocarea resurselor necesare si apoi implementarea cu efectuarea verificarilor post implementare.
In procesul de initiere a schimbarilor va fi implicat tot personalul societatii, documentarea va fi realizata de personalul tehnic de specialitate in colaborare cu specialisti externi, aprobarea si alocarea resurselor este atributiunea conducerii executive, realizarea efectiva se va face (de obicei) de catre societati specializate din afara societatii iar implementarea (inclusiv informarea, instruirea personalului de la locurile de munca unde se efectueaza schimbarea.
Principiile managementului pentru modernizare enuntate mai sus se aplica inclusiv schimbarilor efectuate in timpul proiectarii si constructiei noilor instalatii, procese sau facilitatii de stocare.
Problemele de siguranta si ergonomie in exploatare sunt luate in considerare din primele stagii ale proiectarii, pentru a garanta ca modificarile sunt proiectate, instalate si testate corespunzator pentru a evita riscul unui accident major si pentru a limita consecintele in cazul producerii unui astfel de accident, pe baza unei analize serioase a riscului.
Planificarea pentru situatii de urgenta
Planul de protectie si interventie la accident chimic este integrat intr-un sistem unitar si coerent de abordare a managementul de control al riscului unor accidente majore. Obiectivele stabilite sunt specifice, masurabile si pot fi realizate operativ. Se are in vedere de asemenea necesitatea de revizuire periodica (ori de cate ori este necesar), tinand cont de:
avansarea cunostintelor tehnice ;
cunostinte acumulate ca rezultat al eventualelor accidente majore produse pe amplasament sau in afara acestuia;
lectii invatate in perioada de implementare a planului de protectie si interventie la accident chimic;
schimbari semnificative;
comportamentul uman ca raspuns la situatiile de urgenta.
Se va realiza inspectia periodica a resurselor, echipamentelor si sistemelor de interventie in caz de urgenta astfel incat sa fie in buna stare de functionare la momentul necesar.
Este de asemenea prevazuta alocarea de resurse necesare pentru restaurarea si reconstructia ecologica a zonelor afectate de un eventual accident major.
Prin definirea clara a responsabilitatilor (cine trebuie sa faca, ce, cand si cu ce rezultate) si verificarea periodica a indeplinirii acestora succesiv la toate nivelele de executie si decizie, se asigura dezvoltarea, mentinerea si imbunatatirea sistemul de management al sigurantei.
Astfel, managementul cat si pregatirea pentru Situatii de Urgenta sunt implementate la nivelul fiselor de post cat si la nivelul instructiunilor de lucru, in scopul prevenirii si gestionarii eventualelor situatii de urgenta:
Instructiuni de lucru - generator
Instructiuni de lucru - instalatie
Instructiuni de lucru - neutralizare
Instructiuni de lucru - acetonare
Instructiuni de lucru - reparatii butelii
Instructiuni P[1].M. - Neutralizare limpede de slam
Planurile pentru situatii de urgenta au avut in vedere identificarea sistematica a consecintelor oricarui accident major ce poate apare, ele sunt formulate in scris si contin:
descrierea modului cum este organizata interventia la o situatie de urgenta ;
modul de furnizare a evidentelor privind luarea masurilor necesare la momentul oportun;
posibilele urgente ce pot aparea, in toate scenariile de producerea a unor accidente majore;
modul de coordonare si comunicare in timpul unei interventii la o situatie de urgenta;
aranjamentele facute cu alte societati sau institutii pentru asigurarea resurselor necesare interventiei in caz de urgenta daca sistemele de interventie proprii nu sunt suficiente;
descrierea resurselor interne si externe care pot fi mobilizate de operator pentru a limita consecintele unui accident major pentru oameni si mediu;
modul de asigurare cu suficient personal, intr-o perioada de timp rezonabila, pentru a conduce si actiona in cadrul planului de urgenta interna;
asigurarea echipamentului necesar pentru interventie, corespunzator scopului, disponibil in orice moment si in perfecta stare de functionare;
asigurarea resurselor necesare pentru monitorizare si prelevare de probe in momentul producerii unui accident major;
modul de mobilizare a serviciilor de urgenta medicala necesare in cazul raspunsului la o situatie de urgenta.
Monitorizarea performantei
Pentru monitorizarea performantei sunt instituite proceduri de identificare, inspectie si testare a instalatiilor, proceselor, utilajelor, constructiilor si instrumentelor de masura critice precum si pentru evaluarea conformarii cu instruirea, procedurile si practicile de lucru importante pentru prevenirea accidentelor majore.
Deciziile privind orice aspect al instalatiei, echipamentului, etc. si ce procedura sau activitate trebuie monitorizata, cu ce frecventa si in ce profunzime, sunt bazate pe consideratii de risc si sunt luate de conducerea executiva a societatii.
Se va realiza o monitorizare activa in relatie cu activitatea de control a riscurilor majore, incluzand:
inspectia sistematica a instalatiilor, echipamentelor, instrumentelor si sistemelor de control care sunt importante pentru controlul operational continuu si efectiv, in relatie cu prevenirea accidentelor majore;
observarea sistematica si directa a muncii si comportamentului angajatilor pentru evaluarea conformarii cu acele proceduri si reguli de siguranta care sunt importante pentru controlul accidentelor majore;
- examinarea periodica a documentelor de inregistrare a rezultatelor monitorizarii operationale si de mediu pentru a verifica daca standardele de siguranta sunt respectate;
- verificarea de catre administratorul societatii a calitatii activitatii de monitorizare derulata de personalul din subordine.
Se realizeaza si o monitorizare reactiva a performantei care ofera oportunitatea de a invata din greseli si care astfel conduce la imbunatatiri in siguranta. Pentru aceasta sunt inregistrate, cunoscute, raportate si utilizate in procesul de imbunatatire a sigurantei urmatoarele aspecte:
accidentele majore ce vor avea eventual loc;
orice incidente relevante si cazuri de imbolnaviri;
orice evenimente semnificative care conduc la o agresare a mediului;
- alte incidente (inclusiv comportamente individuale cu potential pentru agresarea mediului si in special cele cu potential de accident major);
slabiciuni si omisiuni in sistemul de control al riscului care sunt importante pentru prevenirea accidentelor majore.
In evaluarea si valorificarea rezultatelor monitorizarii reactive se tine cont de locul de aparitie, natura si cauza evenimentului, potentiale consecinte, gravitatea acestora si costurile induse, iar concluziile vor avea in vedere evolutia performantelor (imbunatatire sau inrautatire) si stabilirea masurilor corective necesare a fi eventual luate .
Monitorizarea culturii pentru siguranta implementata in cadrul societatii este o parte importanta a procesului de monitorizare a performantei de siguranta. Aceasta consta in evaluarea comportamentului indivizilor de la toate nivelele ierarhice din cadrul societatii, privind modul de control, comunicare, cooperare precum si a competentelor personalului implicat in managementul sigurantei. Se va realiza de catre administratorul societatii.
Investigarea esecurilor identificate prin monitorizarea activa si reactiva a performantei de siguranta consta in:
evaluarea preliminara pentru identificarea riscurilor imediate si actiunea prompta in aceste cazuri (se realizeaza de catre conducatorii locurilor de munca cu raportarea ulterioara pe linie ierarhica);
determinarea cauzelor directe si a aspectelor management legate de acestea (se realizeaza de catre conducatorii compartimentelor executive si se raporteaza conducerii );
decizia managementului de varf privind aprofundarea investigatiilor, nivelului de detaliere si natura acestora (bazate mai ales pe consideratii potentiale decat pe actualul rezultat) precum si a responsabilitatilor de realizare.
La investigarea esecurilor vor fi luate in considerare toate aspectele relevante inclusiv factorul uman iar rezultatele se vor concretiza sub forma unui raport scris care se prezinta conducerii executive care dispune actiunea corectiva necesara imbunatatirii performantei de siguranta.
Audit si revizuire
Un management al securitatii eficient presupune si o evaluare periodica , sistematica a politicii de prevenire a accidentelor majore. Aceasta evaluare se realizeaza prin monitorizare interna continua (inclusiv prin controlul operational si monitorizarea factorilor de mediu) dar si prin evaluari periodice realizate de auditori independenti (inclusiv prin inspectiile institutiilor de stat abilitate).
In cadrul Sistemului de Calitate, se vor executa periodic auditari externe, de supraveghere si respectiv recertificare precum si auditari interne.
Responsabilitatea pentru programul de audit ca intreg revine Reprezentantului Managementului iar pentru fiecare audit din cadrul programului responsabilitatea revine Auditorului Sef desemnat.
Auditul se executa de auditori interni care au facut dovada experientei si competentei iar pentru realizarea auditului, societatea aloca toate resursele materiale si personalul necesar, tinand cont de necesitatile de expertiza, independenta operationala si suport tehnic. Raportarea rezultatelor auditului se face in scris si contine procedurile, standardele si referintialele utilizate, metodologia de lucru, investigatiile si masuratorile efectuate, concluziile si recomandarile.
Orice audit extern este supus analizei de catre personalul tehnic al societatii, acesta formuleaza consideratii asupra justetei concluziilor rezultate in urma auditarii.
In final, rezultatele auditului sunt folosite in procesul de revizuire a politicii si strategiei de prevenire a accidentelor majore si de control a riscului.

Efecte toxice acetilena
![]()
Efecte BLEVE recipient acetilena

Eefecte JET FLAME tub acetilena

Efete VCE tub acetilena
Efete toxice linie operare
![]()
Efecte BLEVE linie operare

Efecte JET FLAME linie operare

Efecte VCE linie operare

Efecte mecanice - proiectare fragmente tub acetilena
|
Politica de confidentialitate |
| Copyright ©
2026 - Toate drepturile rezervate. Toate documentele au caracter informativ cu scop educational. |
Personaje din literatura |
| Baltagul – caracterizarea personajelor |
| Caracterizare Alexandru Lapusneanul |
| Caracterizarea lui Gavilescu |
| Caracterizarea personajelor negative din basmul |
Tehnica si mecanica |
| Cuplaje - definitii. notatii. exemple. repere istorice. |
| Actionare macara |
| Reprezentarea si cotarea filetelor |
Geografie |
| Turismul pe terra |
| Vulcanii Și mediul |
| Padurile pe terra si industrializarea lemnului |
| Termeni si conditii |
| Contact |
| Creeaza si tu |