Tema proiectului
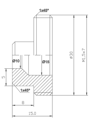
Sa se stabileasca traseul tehnologic pentru piesa din figura:

1. Studiul desenului de executie si analiza tehnologicitatii piesei
1.1. Alegerea semifabricatului
Denumirea: OLC 45
STAS: 880-80
Starea de livrare: TRS tras-recopt-slefuit
Diametrul: Ø20 0 -0,130 mm
Lungimea de livrare: 5000 mm
Volumul anual de productie: P =70 000 piese/an.
Dimensiunile piesei impun alegerea urmatorului semifabricat
- otel rotund calibrat T10 - h11 STAS
1800 - 980 / OLC45 STAS 1800 - 80 cu diametrul
OLC 45 STAS 880 - 80,
cu lungimi de livrare de (2.6)m.
Caracteristicile otelului OLC 45:
Compozitia chimica 0,42% C, 0,50 % Mn, 0,17% S, max. 0,04% P, max. 0,045 S, elemente reziduale admise: max. 0,3% Cr, max. 0,3% Ni, max. 0,3% Cu, max. 0,05% As; masa specifica ρ=7845 kg/m3.
Forme de livrare: produse plate, profile laminate la cald, semifabricate pentru forjare, otel calibrat, produse tubulare, sarme laminate si trase.
OLC 45 prezinta urmatoarele caracteristici mecanice[1]:
Tabelul 1. Caracteristicile mecanice ale otelului OLC 45 livrat in stare trasa:
|
Otel tras (T), cojit tras (CT), tras slefuit (TS) |
Otel tras recopt (TR), tras recopt slefuit (TRS) si cojit slefuit (CS) |
|||
|
Dimensiunea sau grosimea, mm |
Rm in N/mm2 (valori minime) |
A5 in % (valori minime) |
Rm in N/mm2 |
A5 in % (valori minime) |
|
max. 6 | ||||
Tabelul 2. Caracteristici fizice ale otelului OLC 45.
|
Conductivitatea termica λ, W/m0C, la temperatura T |
Caldura specifica Cp, J/Kg0C, la temperatura T |
||||||||||
Tratamente termice recomandate:
calire martensitica volumica - incalzire la 840 - 8600C racire in apa, ulei;
revenire inalta - incalzire la 550 - 6600C racire in aer.
1.2. Calculul lungimii semifabricatului si a cantitatii de semifabricate necesare
- lungimea semifabricatului corespunzatoare unei piese:
l
=
→ l
= 15 + 3 + 0 =
b
- latimea cutitului de retezat;
- lungimea piesei;
a
= 0 - suma adaosurilor de prelucrare pentru strunjire
frontala.
- portiunea
care se poate prelucra dintr-o bara de lungime L
:
L
= L
-
→ L
= 5000 - 100 - 6 = 4894 mm
- lungimea neprelucrata a barei;
= 5.8mm - lungimea portiunii debitate, de la inceputul
barei, inaintea prelucrarii.
- numarul
de piese care se pot obtine dintr-o bara:
piese/bara
- numarul
de bare necesare pentru intreaga productie:
bare
- lungimea
deseului:
mm
- lungimea
deseului pentru o piesa:
mm
lungimea efectiva a semifabricatului necesar pentru o piesa
mm
1.3. Alegerea strungului automat monoax cu cap revolver
- durata necesara a ciclului de lucru:
min/buc
- fondul lunar de timp al strungului pentru un schimb;
- numarul de schimburi;
=0,8 - coeficient de utilizare a strungului;
- timpul de reglare al strungului.
- productivitatea necesara a strungului:
buc/min 0,28
20, iar volumul
productiei se poate realiza pe un strung.
Pentru volumul productiei se alege strungul automat SARO 25, avand urmatoarele caracteristici
|
Capacitate |
||
|
Diametrul maxim al barei de prelucrat pentru alimentare, [mm] |
Pentru bucsa interioara | |
|
Pentru bucsa exterioara | ||
|
Lungimea maxima de alimentare, [mm] | ||
|
Lungimea maxima a cursei suportului sculei din spate, [mm] | ||
|
Cursa maxima a suportilor transversali, [mm] | ||
|
Turela capului revolver |
||
|
Cursa maxima de lucru a turelei, [mm] | ||
|
Diametrul turelei, [mm] | ||
|
Distanta maxima dintre corpul turelei si bucsa elastica de strangere din arborele principal, [mm] | ||
|
Distanta minima dintre corpul turelei si bucsa elastica de strangere din arborele principal, [mm] | ||
|
Diametrul alezajelor turelei, [mm] | ||
|
Cursa de reglare a turelei, [mm] | ||
|
Numarul de alezaje din capul revolver |
normal | |
|
la comanda speciala | ||
|
Arborele principal |
||
|
Domeniul turatiilor de strunjire pe stanga, [rot/min] | ||
|
Domeniul turatiilor de filetare pe dreapta cu tarodul sau filiera, [rot/min] | ||
|
Numarul de turatii pe stanga pentru strunjire | ||
|
Numarul de turatii pe dreapta pentru filetare cu tarodul sau filiera | ||
|
Numarul de turatii automate pe ciclul de lucru | ||
|
Rapoarte mari, turatie de strunjire/turatie de filetare | ||
|
Productivitate, [buc/min] | ||
|
Turatia axului cu came in mers rapid, [rot/min] | ||
|
Timpul de alimentare, [s] | ||
|
Timpul de rotire a turelei, [s] | ||
|
Timpul de schimbare a turatiei arborelui principal sau de schimbare a sensului de rotire, [s] | ||
|
Motorul electric |
Putere, [Kw] | |
|
Turatie, [rot/min] | ||
|
Gabarit |
Lungime, [mm] | |
|
Latime, [mm] | ||
|
Inaltime, [mm] | ||
|
Greutatea strungului |
Neta, [Kg] | |
|
Bruta, [Kg] | ||
2.Stabilirea succesiunilor fazelor de prelucrare, alegerea sculelor si portsculelor
2.1. Avansul materialului, tamponarea si strangerea semifabricatului:

Elemente caracteristice bucsei de strangere a semifabricatului
LN-1682/1 L = 76mm; d = 8.25mm; c = 817mm; s = 821mm.
Elemente caracteristice bucsei de avans
LN 1681/2 D = 23mm; L = 85mm; d = 8 18mm; c = 812mm; s = 814mm.
Elemente caracteristice opritorului rotativ reglabil
LN 1632 a
=42mm; d=19,05mm; K=24mm;
a
=64mm; D=22mm; F=32mm.
2.2. Centruire si tesire:

Portscula: portburghiu combinat simplu LN 1481 fixat in capul revolver;
a=26mm; b=21mm; c(H7)=15mm; d(h6)=19,05mm; e = 15 mm; F=32mm.
Elemente constructive ale bucei de reducere
Simbol: LN 1677 - dmax. = 10 mm
2.3. Strunjire radiala, burghiere Ø10:

Portscule : - portcutit LN 1455 fixat in sania verticala S3 BC 1453;
a=10mm; b=10mm
- portburghiu combinat dublu LN 1481/2 fixat in capul revolver
a = 26mm; b = 21mm; c(H7) = 15mm; d(h6) = 19,5mm; F = 32mm.
2.4. Largire:

- portburghiu simplu LN 1480;
a = 26mm; b = 21mm; c(H7) = 15mm; d(h6) = 19,05mm; F = 32mm.
2.5. Filetare:

Se executa cu o filiera fixata in portcutitul LN - 1554 M1,5x7
a = 51-53mm; b = 5-7mm; d = 19,05mm; d1 = 45mm; c = 20mm; f = 40mm
2.6. Preretezare:

Portscula : portcutit fixat in sania verticala S5
Scula : - cutit profilat BC 1453;
a=10mm; b=10mm
2.7. Retezarea:
Scule: cutit pentru retezat b
=3,5mm;
Portscula : portcutit fixat in sania verticala S4;
LN 1465 a=10mm; b=4mm.
3.Determinarea regimurilor de aschiere
3.1. Determinarea adancimii de aschiere
- pentru semifabricate cu D = 30 mm : t =3 mm.
3.2. Determinarea avansului
Avansuri admisibile pentru cutite din otel rapid tabel 2.12 pag.34:
- tesire: s = 0,20 mm/rot;
- strunjire profilata: s = 0,03 mm/rot;
- centruire/gaurire: s = 0,20 mm/rot;
- largire: s = 0,2 mm/rot;
- retezare: s = 0,08 mm/rot;
- filetare: s = 0,5 mm/rot;
Valori recomandate ale avansului in cazul strunjirii profilate tabel 2.23 pag.42:
- latimea cutitului profilat b
= 10 mm
- diametrul
semifabricatului D = 20 mm s
= 0,07 mm/rot.
- fara rola de sprijin
Verificarea avansului

![]()
3.3. Determinarea vitezei de aschiere
Relatii de calcul pentru vitezele de aschiere tabelul 2.25 pag. 44:
-
strunjire cu cutite profilate : v =
=
= 24,43 m/min
- gaurire/centruire : v
=
=
= 24,84 m/min.
- largire: v =
=
= 20,76 m/min.
- filetare: v =
=
= 22,86 m/min.
Viteze de aschiere recomandate la prelucrari pe strungurile automate tip SARO 25 tabel 2.26 pag. 45:
- strunjire profilata : v = 25 /35 m/min;
- gaurire/centruire : v = 15 / 25 m/min;
- retezare : v = 48 m/min.
- filetare : v = 5 / 9 m/min.
3.4. Determinarea turatiei
[rot/min];
D - diametrul suprafetei initiale de prelucrat;
v - viteza de aschiere.
centruire-gaurire:
= 395,54 rot/min;
- strunjire
profilata :
= 778,02 rot/min;
- largire :
= 440,76 rot/min;
- filetare :
= 364,01 rot/min;
- retezare
:
= 1528,66
rot/min;
3.5. Calculul fortelor de aschiere (conform tabelului 2.34 pag. 49)
- strunjire profilata
![]()
- retezare
- gaurire si centruire
![]()
4.Proiectarea reglajului si a camelor de comanda pentru strungurile automate tip SARO
4.1.Calculul lungimilor curselor de lucru
Lungimea cursei de lucru pentru o faza oarecare :
[mm] ;
- tamponare :
mm;
- centruire
:
mm;
- gaurire
:
mm;
- strunjire profilata cu avans radial :
mm;
- filetare :
mm.
- retezare :
mm.
4.2. Calculul numarului de rotatii echivalente ale arborelui principal pentru fazele de lucru
rot/min;
- centruire
:
rot/min;
- strunjire
profilata :
rot/min;
- gaurire
:
rot/min;
- filetare :
rot/min;
- retezare
:
rot/min.
Numarul total de rotatii echivalente ale arborelui principal :
rot/min.
4.3. Determinarea turatiei optime.
[rot/min];
- centruire :
rot/min;
-
strunjire profilata :
rot/min;
- gaurire
:
rot/min;
- largire :
rot/min;
- filetare :
rot/min;
- retezare :
rot/min.
Numarul de dinti pentru roata dintata:
A=39 ; B=101
nai = 395,54 rot/min
nado= 476 rot/min
Calcularea vitezelor de aschiere efectiva:
[m/min]
4.4. Calculul duratei ciclului de lucru
Durata totala a fazelor de lucru:
sec;
Durata aproximativa a miscarilor auxiliare :
sec;
Durata aproximativa a ciclului de lucru :
sec;
Alegerea duratei ciclului de lucru realizabil cu rotile de schimb existente in dotarea strungului automat SARO functie de durata aproximativa a ciclului de lucru tabel 3.5 pag. 64 :
sec;
AS=30; BS=75; CS=45; DS=90;
Numarul total de grade pentru miscarile auxiliare:

4.5. Determinarea distantelor de inchidere

4.6. Stabilirea pozitiilor centrului rolei pe cama la inceputul si sfarsitul curselor de lucru
CAPUL REVOLVER
![]()
![]()
mm
![]()
![]()
; ![]()
1. Tamponare
![]()
![]()
2. Centruire
![]()
![]()
3. Filetare
![]()
![]()
4. Burghiere
![]()
![]()
SANIA 3 - asigura avansul la strunjire
![]()
![]()
SANIA 4 pentru retezare
![]()
![]()

Caracteristicile constructive ale camelor disc
|
Dimensiuni |
Cama capului revolver pentru SARO 16 si SARO 25 |
Camele saniilor pentru SARO 16 si SARO 25 |
|||
|
S1 |
S2 S3 S4 |
S5 |
|||
|
Pentru avans longitudinal |
Pentru avans transversal |
||||
|
Dmax | |||||
|
Dmin | |||||
|
d | |||||
|
d1 | |||||
|
f | |||||
|
a |
56o18' |
93o9' |
164o48' |
58o11' |
164o48' |
|
S | |||||
|
r0 | |||||
|
rk | |||||
|
dr | |||||
4.7. Determinarea pozitiei de reglare a capului revolver in raport cu suprafata frontala a bucsei elastice
![]()
![]()
4.8. Determinarea unghiurilor pentru miscarile neproductive
![]()
![]()
![]()
![]()




![]()
![]()
![]()
![]()
4.9. Determinarea unghiurilor aferente miscarilor de lucru

![]()
![]()
CAPUL REVOLVER
tamponare
![]()
centruire
![]()
burghiere
![]()
filetare
![]()
strunjire
![]()
Verificare:
![]()
|
Nr. miscare sau comanda |
Denumirea miscarii sau comenzii |
Suportul |
Felul miscarii |
Lj mm |
lc mm |
Rc mm |
Raza camei |
Regim de aschiere |
Numar de rotatii echivalente Nre |
Diviziuni necesare (grade) |
Programare | |||||||||||||
|
V m/min |
nAP rot/min |
Avans mm/rot |
Pentru miscari principale |
Pentru miscari suprapuse | ||||||||||||||||||||
|
Calculat |
Real |
Pentru miscari auxiliare |
Pentru miscari de lucru |
|||||||||||||||||||||
|
Ales |
Real |
De la |
Pana la |
De la |
Pana la | |||||||||||||||||||
|
Rin |
Rsf |
|||||||||||||||||||||||
|
||||||||||||||||||||||||
|
avans material, tamponare si strangere |
Cap revolver CR |
I |
p | |||||||||||||||||||||
|
1a. |
retragere si schimbare CR |
p |
|
|||||||||||||||||||||
|
centruire |
II |
p |
|
|||||||||||||||||||||
|
2a. |
retragere si schimbare CR |
s |
|
|||||||||||||||||||||
|
burghiere |
III |
s |
|
|||||||||||||||||||||
|
4a. |
retragere si schimbare CR |
s |
|
|||||||||||||||||||||
|
5a. |
apropiere |
IV |
s | |||||||||||||||||||||
|
largire |
p |
|
||||||||||||||||||||||
|
5b. |
retragere si schimbare CR |
p |
|
|||||||||||||||||||||
|
6a. |
schimbare turatie si sens |
V |
s |
|
||||||||||||||||||||
|
filetare M |
p | |||||||||||||||||||||||
|
6b. |
schimbare turatie si sens |
p |
|
|||||||||||||||||||||
|
6c. |
revenirea filierei |
s |
|
|||||||||||||||||||||
|
6d. |
retragere si schimbare CR |
s | ||||||||||||||||||||||
|
3a. |
apropiere |
vertical S3 |
s |
|
||||||||||||||||||||
|
strunjire profilata |
p |
|
||||||||||||||||||||||
|
3b. |
retragere |
s |
|
|||||||||||||||||||||
|
7a. |
apropiere |
vertical S4 |
s |
|
||||||||||||||||||||
|
retezare |
p |
|
||||||||||||||||||||||
|
7b. |
retragere |
p |
|
|||||||||||||||||||||
|
Total |
|
|||||||||||||||||||||||
|
Data |
Proiectat Iordache Mihaita |
Turatia de calcul nAP = 476 rot/min |
Timp de ciclu Tc = 75 s |
Nr. de piese prelucrate simultan 1 |
Semifabricat OLC 45 - |
|
||||||||||||||||||
|
Legenda |
Verificat Prof.Ciofu Ciprian |
Turatia dispozitivului de burghiere rapida - nu se foloseste |
Timp pe piesa Tp = 75 s |
Productivitate teoretica 120 buc/ora |
|
|||||||||||||||||||
|
||||||||||||||||||||||||
PLANUL DE OPERATII
|
Universitatea Tehnica "Gh. Asachi" Iasi |
Plan de operatii |
Atelier |
|||||||||||
|
Sectia automate |
|||||||||||||
|
Denumirea automatului |
Strung automat cu cap revolver |
Roti de schimb |
|||||||||||
|
Firma |
Uzina de strunguri Targoviste |
Arbore principal |
Arbore de distributie |
||||||||||
|
Model |
SARO 25 |
C |
A | ||||||||||
|
D |
B | ||||||||||||
|
Mediu |
Ulei sub presiune |
E |
C | ||||||||||
|
F |
D | ||||||||||||
|
Sania |
Pozitia |
Denumirea miscarii sau a comenzii |
Cursa de lucru [mm] |
Avans [mm/rot] |
Turatia AP [rot/min] |
programare |
Raza camei |
||||||
|
|
|
|
|
||||||||||
|
Cap revolver |
Avans material si tamponare Miscari auxiliare | ||||||||||||
|
Centruire Miscari auxiliare | |||||||||||||
|
Burghiere Miscari auxiliare | |||||||||||||
|
Miscari auxiliare Largire Miscari auxiliare | |||||||||||||
|
Filetare M7 Miscari auxiliare | |||||||||||||
|
Sania S3 |
Apropiere Strunjire Retragere | ||||||||||||
|
Sania S4 |
Apropiere Retezare Retragere | ||||||||||||
|
Total: |
|||||||||||||
|
Rotatii calculate pentru o singura piesa: |
|||||||||||||
|
Timp pe piesa: 11,8 s |
|||||||||||||
|
Turatia de calcul a arborelui principal: 476 rot/min |
|||||||||||||
|
Denumirea piesei - bucsa. |
Produs |
Reper |
||||||
|
|
Simbol |
Al |
Operatia 1 |
|||||
|
Stare |
HA |
Pagina 1 |
||||||
|
Duritate |
Pagini 1 |
|||||||
|
Executie |
Copia nr. |
|||||||
|
Dimensiuni |
Proiectat: Sarbu Ciprian |
|||||||
|
Kg |
Brut |
Verificat: Conf.Dr.Ing.Ec. Nedelcu Dumitru |
||||||
|
Net | ||||||||
|
|
SDV-uri |
|||||||
|
Poz. |
Taietoare |
Poz. |
Ajutatoare |
poz |
De control |
|||
|
I |
LN 1632 | |||||||
|
II |
LN 1480 | |||||||
|
III |
Burghiu Cutite Rp3 |
LN 1481/1 BC 1453 LN 1465 |
Sablon Subler |
|||||
|
IV |
Burghiu |
LN 1480 |
Subler |
|||||
|
V |
Filiera |
LN 1553 |
Calibru |
|||||
|
VI |
Cutit de retezat Rp3 |
LN 1465 |
Subler |
|||||
|
Bucsa de prindere |
Bucsa de avans |
Bucsa de reducere |
||||||
|
LN 1682/1 |
LN 1682/2 | |||||||

|
Politica de confidentialitate |
| Copyright ©
2026 - Toate drepturile rezervate. Toate documentele au caracter informativ cu scop educational. |
Personaje din literatura |
| Baltagul – caracterizarea personajelor |
| Caracterizare Alexandru Lapusneanul |
| Caracterizarea lui Gavilescu |
| Caracterizarea personajelor negative din basmul |
Tehnica si mecanica |
| Cuplaje - definitii. notatii. exemple. repere istorice. |
| Actionare macara |
| Reprezentarea si cotarea filetelor |
Geografie |
| Turismul pe terra |
| Vulcanii Și mediul |
| Padurile pe terra si industrializarea lemnului |
| Termeni si conditii |
| Contact |
| Creeaza si tu |