
Manual de operare
Dispozitivul de siguranta
Dispozitivul este conectat la priza prin intermediul unu dispozitiv de diferentiere. Activeaza masina in momentul in care este apasat butonul ON (b) (se ilumineaza) si dezactiveaza masina in momentul in care este apasat butonul OFF (c).

A dispozitivul de siguranta
B butonul ON
C butonul OFF
Circuitul electronic

intrarea
butonul on iluminat
siguranta, 3 contacte, 220 a.c.
butonul OFF
sigurante
iesirea
|
Brandul |
cheia blank silca |
Masina |
Palpatorul |
Freza |
|||
|
ABUS (D) |
AB40 |
SLX-SX-S |
T1 |
D401070RA |
F1 |
D701071ZB |
|
|
AZBE (E) (CAVERS) |
AZ6-AZ7 |
SLX-SX-S |
T42 |
D408799RA |
F42 |
D708800ZB |
|
|
CISA (I) |
CS48 |
SLX-SX-S |
T1 |
D401070RA |
F1 |
D701071ZB |
|
|
DOM (D) |
DM21- DM55- DM58 |
SLX-SX-S |
T1 |
D401070RA |
F1 |
D701071ZB |
|
|
ELCA (D) TESA(E) |
EC5 |
SLX-SX-S |
T1 |
D401070RA |
F1 |
D701071ZB |
|
|
FICHET (F) |
FT500 |
SLX-SX-S |
T22 |
D405487RA |
F22 |
D705488ZB |
|
|
FTH (F) (YALTRES) |
FH12 |
SLX-SX-S |
T5 |
D401070RA |
F5 | ||
|
GE-GE (A) |
GE57 |
SLX-SX-S |
T1 |
D401070RA |
F1 |
D701071ZB |
|
|
GIOBERT (I) SAFE (I) |
GT2P- GT2 - GT2BP (LANCIA) GT9AP - GT2AP (ALFA ROMEO) GT2CP |
SLX-SX-S |
T1 |
D401070RA |
F1 |
D701071ZB |
|
|
HONDA (J) |
HON60AP (LEGEND) |
SLX-SX-S |
T44 |
D409147RA |
F44 |
D709148ZB |
|
|
HUF (D) |
HU59- HU58AP (BMW) |
SLX-SX-S |
T22 |
D405487RA |
F22 |
D705488ZB |
|
|
HUF (D) |
HU44AP - HU41P HU61AP - HU55P HU40P - HU39P (MERCEDES) |
SLX-SX-S |
T22 |
D405487RA |
F22 |
D705488ZB |
|
|
HUF (D) |
HU57RP - HU56RP (VOLVO) |
SLX-SX-S |
T22 |
D405487RA |
F22 |
D705488ZB |
|
|
HUF (D) YMOS (D) |
HU43P-YM27P (OPEL-VAUXHALL) |
SLX-SX-S |
T22 |
D405487RA |
F22 |
D705488ZB |
|
|
KABA (CH) |
KA1-KA2-KA3 KA4-KA5-KA6 |
SLX-SX-S |
T1 |
D401070RA |
F1 |
D701071ZB |
|
|
KABA (CH) |
KA2-KA9 |
SLX-SX-S |
T43 |
D408987RA |
F43 |
D708988ZB |
|
|
KESO (CH) |
KE3 (82°) |
SLX-SX-S |
T26 |
D405654RA |
F26 |
D705655ZB |
|
|
Brandul |
cheia blank silca |
Masina |
Palpatorul |
Freza |
||
|
MCM (E) |
MC9 |
SLX-SX-S |
T37 |
D406653RA |
F37 |
D706654ZB |
|
MCM (E) |
MC9 |
SLX-SX-S |
T38 |
D406656RA |
F38 |
D706657ZB |
|
MCM (E) |
MC9 |
SLX-SX-S |
T39 |
D406658RA |
F39 |
D706659ZB |
|
MCM (E) |
MC10R + DISPOZITIV D711137ZB |
SLX-SX-S |
T50 |
D411145RA |
F50 |
D711144ZB |
|
MUL-T-LOCK (IL) |
MTK1-MTK2P |
SLX-SX-S |
T12A T12B |
D501090ZM D401092RA |
F12A F12B |
D701091ZBD701093ZB |
|
NEIMAN (D) |
NE67AP-NE66P-NE66 (VOLVO) |
SLX-SX-S |
T22 |
D405487RA |
F22 |
D705488ZB |
|
NISSAN (J) |
NSN10AP-NSN10-NSN9P (INFINITY) |
SLX-SX-S |
T22 |
D405487RA |
F22 |
D705488ZB |
|
SPIDER (IL) |
SPR1-SPR2 |
SLX-SX-S |
T1 |
D401070RA |
F1 |
D701071ZB |
|
STS (E) |
STS5-STS6 |
SLX-SX-S |
T5 |
D401078RA |
F5 |
D701079ZB |
|
TESA (E) |
TE4R |
SLX-SX-S |
T1 |
D401070RA |
F1 |
D701071ZB |
|
TESA (E) |
TE7 |
SLX-SX-S |
T5 |
D401078RA |
F5 |
D701079ZB |
|
|
TOY40-TOY40AP-TOY40P (LEXUS) |
SLX-SX-S |
T22 |
D405487RA |
F22 |
D705488ZB |
|
YARD YARDENI (IL) |
YD3R |
SLX-SX-S |
T1 |
D401070RA |
F1 |
D701071ZB |
|
YMOS (D) |
YM30P (SAAB) |
SLX-SX-S |
T22 |
D405487RA |
F22 |
D705488ZB |
|
ZADI (I) |
ZD20 |
SLX-SX-S |
T5 |
D401078RA |
F5 |
D701079ZB |
GHIDUL MANUALULUI
Acest manual a fost facut in scopul de a ajuta utilizatorii MATRIX-ului SLX. Cititi cu atentie: este esential pentru a opera cu siguranta si eficienta.
Consultarea:
Continutul acestui manual este divizat in sectiuni:
- transortul capitolul 1
- verificarea sigurantei masini capitolul 4
- operarea corecta a masini capitolul 5-6
- intretinerea capitolul 7
TERMENI TEHNICI
Sunt folositi termini uzuali.
Fig. 1 arata numele diferitelor parti ale chei folosite in acest manual

cap
margine
stop
lama
varf
spate
taieri
Chei amprenta Chei tip laser
Chei cu gauri de diferite dimensiuni Chei frezate lateral si interior
INSTRUCTIUNI GENERALE
Masina a fost conceputa in asa fel incat utilizatorul sa lucreze in siguranta. Folosirea ochelarilor este puternic recomandata. Materialele din care sa construit masina nu sunt daunatoare.
Folosirea
Operarea incorecta poate duce la accidente.
Neglijenta nu este acoperita de garantia producatorului si nu isi va asuma responsabiliate in aceste cazuri.
Masuri de protectie
Masina este alimentata prin intermediul dispozitivului de diferentiere
Comutatorul de viteza activeaza freza
Suprafata de lucru este iluminata de un bec
Operatiile de reglare, reparare si inlocuire nu prezinta nici un fel de pericol.
Masina dispune de o identificare rapida prin intermediul numarului de serie

TRANSPORTUL
Se transporta usor si nu este periculos de manevrat.
Impachetarea
Pahetul conceput pentru MATRIX-SLX garanteaza transportul masini. Pachetul este format din doi pereti laterali, plasticul de acoperire, suportul de sus si cel de jos, cutie de carton superioara.


Transportul
Simbolurile folosite pe exteriorul cutiei arata modul ideal de transport.
Folositi sistemul de pachet ori de cate ori este necesar un transport al masini.
Deschiderea pachetului
Pentru a scoate masina din pachet:
1 MATRIX-SLX
1 SET DE DOCUMENTE
1 CABLU DE CONECTARE
Plasarea masini
Dupa desfacere plasati masina direct pe bancul de lucru.
DESCRIEREA MASINI
Matrix SLX e o masina de taiat chei cu o precizie avansata. Poate taia urmatoarele tipuri de chei:


Precizia avansata este garantata de catre combinarea functiilor masinii, cum ar fi:
Trei axe ce se misca pe un sistem tip bile asigura manevrarea usoara si exacta
Bacuri schimbabile ce pot fi inclinate pana la 45 de grade.
Blocarea la un anumit nivel a frezei va ofera un control mult mai bun in operatia de taiat chei
Reglaj simplu, micrometric, afisat prin intermediul celor doua lumini de avertizare
Palpatorul si freza dispun de un sitem sigur de prindere
Un plastic special transparent ce protejaza impotriva spanului
Bacul de lucru este iluminat
Cele doua sisteme fix si tip arc fac mult mai usoara taierea cheilor tip amprenta
Reglaj micrometric dupa fixarea palpatorului si a frezei
manete si rotite ce fac taierea unei chei mult mai lejera
Maneta (I) operare verticala (axa Z)
Ergonimica, sistem de blocare.
Maneta (C) operare tip plana (axele X-Y)
Ergonomica, sistem tip bile, foarte precisa.
Sistem
(R) de odihnire a maini, mareste precizia
si sincronizarea manetelor.
PARTI FUNCTIONABILE

A -bacuri mobile (x-y) L - lacase speciale (T si F)
B -bacul stang M - securizare palpator
B1 -bacul drept M1 - securizare freza
C -maneta x-y N - reglaj micrometric
D -securizare unghi bacuri O - system arc chei tip laser
E -rotita bac stang
E1 -rotita bac drept P - comutatorul principal
F -freza Q - comutatorul de viteza
G - geam de protectie R - ajutorul maini
H -sistem arc x-y S - sertar scule
I -maneta verticala -z T - palpator
J -bec U - sistem securizare freza
K -pad de ajustare V - system arc chei amprenta
DATE TEHNICE
MOTOR: 2 VITEZE 230 V-50 HZ
FREZA: OTEL
VITEZA: 6.000 rpm (OTEL) - 12.000 rpm (METAL DUR)
MISCARI: 3 AXE
BACURI: SCHIMBABILE SI INCLINABILE
RULEAZA: axa X: 40 mm axa Y: 50 mm axa Z: 30mm
ILUMINARE: 25W bec incandescent
DIMENSIUNI: latime: 350 mm lungime: 400 mm inaltime: 470 mm
GREUTATE: 23,1 KG
SUNET PRESIUNE: Lp (A) = 85,1 dB (A)
SUNET PUTERE: Lw (A) = 97,48 dB (A)
GRAFICE


Palpator Freza Ochelari


Sistem fix Sistem arc Comutator viteze
Circuitul Electric
Partile principale ale circuitului electric sunt listate mai jos:
Intrarile principale
Comutatorul principal si cele doua sigurante (protectie scurt circuit).
Filtru de sunet
Protectie anti interferente in sursa principala.
Terminalul central
Conexiunea electronica cu cea electrica.
Transformatorul
Sursa pentru placa electronica si leduri.
Comutatorul
Activeaza motorul si seteaza vitezele 1 si 2.
Motorul
1 singura faza tip perie.
Becul
Iluimineaza suprafata de lucru.
Placa electronica pentru controlul vitezei motorului
Limitare electronica, viteza 1 (aprox. 6000 rpm) si viteza 2 (aprox. 12000 rpm) conform comutatorului (5).
Placa electronica pentru setari
Placa este alimentata cu un voltaj scazut de la transformatorul (4) si este conectata electric de bacuri (10), palpator (11) si de freza (12).

ACCESORII
Un set de accesorii este dat odata cu masina pentru service.
Accesoriile sunt situate intr-un sertar special la baza masini.

INSTALAREA SI PREGATIREA MASINI
Masina de taiat chei poate fi instalata usor de catre cumparator si nu necesita abilitati speciale.
Masina este data gata de utilizat si nu necesita o asamblare. Dar pregatirile si verificarile nu trebuiesc omise.
4.1 Verificari
Matrix-SLX este o masina solida si in mod normal contactul cu alte obiecte nu poate cauza defectiuni. Verificati inainte de a utiliza daca masina are vreo defectiune.
Conditiile atmosferice
Pentru a asigura functionarea corecta a masini anumite lucruri trebuiesc luate in considerare:
Locuri ventilate slab, murdare trebuiesc evitate;
Conditiile ideale sunt:
Temperatura: 0->40 °C
Umiditatea: aprox. 60%
Pozitionarea
Plasarea se face pe o suprafata orizontala, destul de solida sa poata suprta greutatea masini. Inaltimea bancului de lucru sa fie de aprox 100-120 cm pentru a avea un acces rapid al partilor masinii.
Lasati destul spatiu liber in jurul masinii (20-30 cm) pentru a asigura o ventilare buna si loc pentru anumite manevre.
Asigurati-va ca masina de taitat chei este cuplata la voltajul definit si impamantarea este facuta.
Descrierea locului de lucru
Masina are nevoie de un singur utilizator, care are acces la urmatoarele parti:
- manevra (I) ce misca palpatorul si freza vertical
5 REGLAREA MASINI
5.1 Bacurile:
Bacurile sunt dotate cu pereti speciali pentru prinderea chei (B4) si (B5) ce pot fi schimbate usor in cazul uzurii sau a defectiunilor.


Verificarea:
Inainte de a taia este bine sa verificati daca bacurile sunt in pozitie orizontala.
Img
Pentru a inclina bacurile in diferite unghiuri procedati asa:
Sistemul tip arc pentru cheile tip LASER
Masina MATRIX-SLX dispune de un sistem tip arc ce controleaza miscarile transversale, asistand la taierea cheilor tip LASER.
Sistemul
este activat prin intermediul rotitei (O), determina presiune laterala pe
partea de tiat in timpul prelucrari; acest lucru face posibil o taiere mult mai
usoara, operatorul nemaitrebuind sa atribuie presiune prin intermediul manetei
(C).
REGLAREA ARCULUI
- slabiti rotita (O) putin.
Plasati palpatorul si freza in mijlocul lamelor cheilor
Plasati palpatorul si freza in stanga lamei cheilor
Plasati palpatorul si freza in dreapta lamei cheilor
- strangeti rotita (O).


Sistemul de ghidare al maini
Sistemul (R) trebuie reglat in functie de marimea maini utilizatorului. Pentru a regla sistemul procedati asa:


Sistemul tip arc vertical
El trebuie activat numai in cazul cheilor cu amprenta.
Pentru al activa:
Treceti rotita (V) contrar acelor de ceasornic
astfel incat referinta rotitei (V1) sa fie in dreptul
semnului arcului; un click va indica trecerea.
Pentru al deactiva:
Ridicati rotita palpatorului cu o mana si cu cealalta
treceti rotita (V) pe sistemul fix.
Avertizare: sistemul pe arc trebuie activat
dupa ce au fost reglate palpatorul si freza.

Reglarea
Avertisment: asigurativa ca viteza frezei este 0.
Porniti masina (comutatorul situat in spatele ei)
Asigurativa ca sistemul vertical pe arc este dezactivat.
Selectati-va palpatorul si freza si procedati asa:
apasati butonul (U) si invartiti rotita (M1) usor pana cand este posibila apasarea totala a butonului, atunci strangeti rotita.
Avertizare: nu strangeti rotitele prea tare.
Scoaterea palpatorului si a frezei
Pentru a scoate freza procedati in felul urmator:
apasati butonul (U) in timp ce rotiti rotita (M1)
Avertizare: daca palpatorul si freza nu ies in momentul slabiri rotitelor (M) si (M1) exercitati presiune asupra rotitelor.

5.6 Setari
Plasati cheile in bacuri (cea originala in stanga si cea blank in dreapta) si porniti masina.
Setati palpatorul si freza (5.5)
Activati sistemul electromecanic de la butonul ON/OFF de pe padul (K) si:

Iluminarea sageri verzi (K1):
Nu mai este necesara o ajustare.
Iluminarea sageti
rosi (
- doar palpatorul atinge cheia;
Invartiti rotita micrometrica (N) in sensul acelor de ceasornic pana cand se aprinde sageata verde (K1)
Iluminarea sageti rosi (K3):
- doar freza atinge cheia;
Invartiti rotita micrometrica (N) in sensul contrar acelor de ceasornic pana cand se aprinde sageata verde (K1)
5.7 Inelul micrometric de reglaj
Inelul micrometric de reglaj ajuta la reglarea palpatroului si a frezei dar prin intermediul sau, puteti ajusta distanta necesara intre freza si palpator in cazul unei chei uzate.
Dupa ce au fost reglate palpatorul si freza puteti ajusta distantele dorite, fiecare rotatie consta intr-o deplasare verticala de 0,02 mm in sus sau in jos.

Operatiile de taiere
Pentru a utiliza masina in siguranta cititi urmatoarele precautii:
a) plasati cheile in bacuri b) instalati freza si palpatorul corect
Prinderea cheilor
porniti masina de la comutatorul din spate
prin intermediul manetei de ghidaj plan deplasati bacurile pana se blocheaza pe axa Y.
plasati cheia originala in bacul stang iar cheia blank in bacul drept folosind opritoarele.
Opritoarele
Referintele bacurilor 0-1-2-3 trebuiesc folosite in functie te tipul chei.
0 -> pentru chei ce se opresc in umeri

Securizati cheile cu ajutorul rotitelor (E) si (E1)
Lucrati pe sistemul fix fara arc
Activati reglajul electromagnetic si aliniati palpatorul si freza
Taierea cheilor tip amprenta
Taierea spatelui
Daca este necesara o taiere a spatelui chei, plasati cheile in bacuri vertical
Taieri inclinate


Taierea cheilor tip laser
Asigurativa ca sistemul pe arc este dezactivat
Inainte de a porni motorul setati reglajul plan pe arc (5.2) cu rotita.
Incepeti taierea
Securizati maneta (I) la nivelul dorit prin rasucirea ei.
Continuati taierea numai cu maneta (C)


Taierea cheilor inguste tip laser
(art. HU41P-HU55P-HU61P etc)
Aceste chei se taie cu ajutorul unor dispozitive speciale date in dotare (3)
Procedura :

Taierea cheilor FICHET
Pentru a taia cheile FICHET folositi dispozitivele speciale in dotare (3)
Procedura :


Intretinerea
Avertisment: pentru reparati sau inlocuiri de piese garantia marci "CE" este valabila numai in cazul in care piesele sunt originale.
Matrix-SLX nu are nevoie de o intretinere speciala, este recomandata inlocuitrea partilor uzate. Inlocuirea poate fi facuta de orice operator.
Curatarea :
Tineti masina curata, fara span, curatati cu o perie.uscata.
Inlocuirea curelei si ajustarea tensiuni
Daca partea superioara a masini vibreaza verificati tensiunea curelei:
opriti masina (comutatorul din spate)
slabiti cele patru suruburi (Y1) si scoateti carcasa superioara (Y)
slabiti dar nu scoateti suruburile (Y2) ce securizeaza motorul
a) tensiunea - mariti tensiunea impingand motorul in spatele masini
b) inlocuirea - slabiti cureaua impingand motorul spre papator, scoateti cureaua si inlocuitio, mariti tensiunea impingand motorul in spatele masini.
5. securizati motorul strangand suruburile (Y2)
6. securizati carcasa superioara strangand suruburile (Y1)

Inlocuirea becului
Pentru a inlocui becul:
opriti masina, scoateti cablul putere
scoateti suruburile (J1)
scoateti becul
instalati noul bec si securizati strangand suruburile (J1)

Inlocuirea arcului vertical
Pentru a inlocui arcul:
opriti masina, scoateti cablul putere.
slabiti cele patru suruburi (Y1) si scoateti carcasa superioara (Y)
intoarceti masina cu partea latarala catre utilizator
pentru a mari tensiunea - observati ilustratia
pentru a slabi tensiunea - observati ilustratia
securizati carcasa superioara strangand suruburile (Y1)
Pentru a inlocui arcul urmariti 1,2,3, inlocuiti si reglati tensiunea.

Verificarea si inlocuirea sigurantelor
Sigurantele trebuiesc verificate cu un dispozitiv de testare a continuitatii (tester, ohmeter, multimeter etc.) o verificare vizuala nu poate stabili nimic concret. Ele trebuiesc inlocuite cu alte sigurante de acelasi tip.
Matrix-SLX are 3 sigurante:
2 sigurante: 4 amp pentru masini cu 230 Volti
8 amp pentru masini cu 115 Volti

Plasate in soket-ul de intrare langa
comutatorul principal in spatele masini
pentru a proteja masina impotriva
variatiei voltajului.
Pentru verificare si inlocuire:
1. opriti masina, scoateti cablul putere.
2. scoateti sigurantele cu ajutorul unei surubelnite
1 siguranta: 3,15 amp pentru masini cu 230 Volti
6,3 amp pentru masini cu 115 Volti
Aflate pe placuta electronica pentru a proteja motorul si placuta de scurt circuite.
Pentru verificare si inlocuire:
opriti masina, scoateti cablul putere.
cu grija intoarceti masina pe partea cu maneta (I) (observati ilustratia)
slabiti suruburile de la baza masini (P4) si scoateti placa
verificati sau inlocuiti sigurantele.

Inlocuirea placutei electronice a motorului
Daca motorul nu functioneaza corect, placuta electronica trebuie inlocuita.
Procedati in felul urmator:
opriti masina, scoateti cablul putere.
cu grija intoarceti masina pe partea cu maneta (I)
slabiti suruburile de la baza masini (P4) si scoateti placa
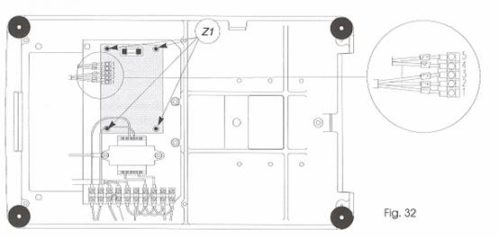
scoateti firele (1-2-3-4-5) si scoateti suruburile (Z1)
ilocuiti placuta, strangeti suruburile (Z1) reconectati firele (1-2-3-4-5)

Inlocuirea placutei electronice pentru pad
Daca pad-ul (K) nu functioneaza corect, inlocuiti placuta electronica interna
Procedati in felul urmator:
opriti masina, scoateti cablul putere.
scoateti cele 4 suruburi (Z4) si scoateti fata.
deconectati conectorul (Z3)
scoateti interfata (K) si desurubati cele 2 suruburi.
inlocuiti placuta, securizati cele 2 suruburi si reconectati conectorul (Z3)
repozitionati fata , securizati cele 4 suruburi si atasati interfata (K)

DESEURI
Regulile EU stabilesc aranjamente speciale in privinta aruncari deseurilor.
Deseuri ce provin din operatiile de taiere
Rezidurile ce ies din operatiile de tatiat chei sunt declarate reziduri solide urbane.
Masina de taiat chei
Masina Matrix-SLX este conceputa pentru multi ani de folosire si deasemenea este refolosibila. Reciclarea este ecologica.
Impachetarea
Matrix-SLX este impachetata intr-o cutie de carton ce poate fi refolosita daca nu este avariata. Reciclarea cutiei de carton -> Hartie.
Pereti de poliester sunt clasificati reziduri solide urbane si se pot arunca in mod normal.
Code CER
- circuite electronice 16 02 16
- fier 12 01 01
- hartie si carton 15 01 01
- plastic 15 01 02
(*) "deseu" este o substanta sau un obiect ce deriva de la activitatea umana sau cicluri naturale, aruncat definitiv.
ASISTENTA
Silca asigura asistenta totala cumparatorilor masini Matrix-SLX
Pe spatele acestui manual e o lista completa de adrese ala centrelor de service.
Cum sa cereti service
Garantia atasata masini asigura
reparatii gratuite sau inlocuiri pe timpul de 6 luni de la data cumpararii.
Orice alta cerere de service trebuie aranjata de catre cumparator cu Silca sau
cu
|
Politica de confidentialitate |
| Copyright ©
2025 - Toate drepturile rezervate. Toate documentele au caracter informativ cu scop educational. |
Personaje din literatura |
| Baltagul – caracterizarea personajelor |
| Caracterizare Alexandru Lapusneanul |
| Caracterizarea lui Gavilescu |
| Caracterizarea personajelor negative din basmul |
Tehnica si mecanica |
| Cuplaje - definitii. notatii. exemple. repere istorice. |
| Actionare macara |
| Reprezentarea si cotarea filetelor |
Geografie |
| Turismul pe terra |
| Vulcanii Și mediul |
| Padurile pe terra si industrializarea lemnului |
| Termeni si conditii |
| Contact |
| Creeaza si tu |