Manual de utilizare si piese
de schimb

Instructiuni de siguranta
Punere in folosinta
Conexiunea electrica
Instalare
Intretinere
Desen in sectiune
Piese de schimb
Ati cumparat un produs de la JUNG PUMPEN obtinand astfel calitate si performanta. Asigurati aceasta performanta printr-o instalare conform normelor, astfel incat produsul nostru sa-si poata indeplini functia spre multumirea dumneavoastra deplina. Aveti in vedere faptul ca defectiunile aparute in urma manevrarii necorespunzatoare influenteaza acordarea garantiei.
De aceea respectati instructiunile din cadrul manualului de utilizare!
Ca orice alt aparat electric si acest produs poate sa se opreasca din cauza lipsei tensiunii de alimentare sau a unei defectiuni tehnice. In cazul in care exista riscul aparitiei unei pagube din aceasta cauza, trebuie montata o instalatie de alarma independenta de retea. In functie de utilizare, trebuie sa planificati eventual si un agregat pentru curent de rezerva sau o a doua instalatie.
Serviciul nostru clienti va sta la dispozitie si dupa cumparare. Pentru informatii suplimentare sau defectiuni va rugam sa va adresati serviciului clienti cel mai apropiat.
Pentru a garanta o siguranta in functionare pe termen lung a instalatiei dumneavoastra, va recomandam sa incheiati un contract de intretinere.
Serviciu clienti
Centrala Industriestr.
4-6 . 33803 Steinhagen
Tel. 0 1805 18 88 81 .
Fax 0 1805 18 88 82
[email protected]
Düsseldorf Stockshausstr.
11 . 40721 Hilden
Tel. 0 1805 18 88 81 .
Fax 0 1805 18 88 82
[email protected]
Instructiuni de siguranta
(conform normei VDMA-Einheitsblatt 24292 din August 1991)
Acest manual de utilizare contine informatii de baza care trebuie respectate la instalare, operare si intretinere. De aceea este important ca acest manual de utilizare sa fie citit obligatoriu inainte de montare si punere in functie de catre persoana care efectueaza montarea precum si de personalul de specialitate/utilizator si trebuie sa fie permanent disponibil la locul de utilizare a pompei, respectiv a instalatiei.
Trebuie respectate nu doar instructiunile generale de siguranta enumerate la acest punct principal Siguranta, ci si instructiunile speciale de siguranta, ca de ex. pentru utilizarea privata, care sunt descrise in cadrul punctelor urmatoare.
Marcarea indicatiilor in cadrul manualului de utilizare
In cadrul acestui manual de utilizare instructiunile de siguranta sunt marcate in mod special prin simboluri. Nerespectarea lor poate fi periculoasa.
Pericol general pentru persoane
Atentionare pentru tensiune electrica
ATENTIE! Pericol pentru masina si functionare
Indicatiile aflate direct pe
masina, ca de ex.:
- sageata indicand directia de rotatie
- marcajul pentru conexiunile de lichid
- placuta de identificare
trebuie respectate in mod obligatoriu si mentinute in stare perfect
ligibila.
Calificarea si instruirea personalului
Personalul pentru operare, intretinere, inspectie si montaj trebuie sa aiba calificarea corespunzatoare pentru astfel de lucrari. Aria de responsabilitate, competenta si supravegherea personalului trebuie reglementate exact de catre utilizator. In cazul in care personalul nu detine cunostintele necesare, trebuie scolarizat si instruit. Daca este necesar, acest lucru poate avea loc prin producator/furnizor ca urmare a insarcinarii utilizatorului masinii. In plus, utilizatorul trebuie sa se asigure ca personalul a inteles pe deplin continutul manualului de utilizare.
Pericole la nerespectarea instructiunilor de siguranta
Nerespectarea instructiunilor de siguranta poate avea drept consecinta atat primejduirea de persoane cat si a mediului inconjurator si a masinii. Nerespectarea instructiunilor de siguranta poate atrage dupa sine pierderea oricaror drepturi asupra unor pretentii de despagubire.
In particular, nerespectarea instructiunilor poate atrage dupa sine urmatoarele:
ratarea unor functii importante ale masinii/instalatiei
ratarea metodelor prevazute de intretinere si mentinere in functie
primejduirea de persoane prin efecte electrice, mecanice si chimice
primejduirea mediului inconjurator prin scurgerea de substante periculoase
Lucrari orientate pe siguranta
Trebuie respectate instructiunile de siguranta enumerate in cadrul acestui manual de utilizare, reglementarile nationale in vigoare cu privire la prevenirea accidentelor precum si eventualele reglementari interne de munca, functionare si siguranta.
Instructiuni de siguranta pentru operator/utilizator
Daca parti ale masinii, fierbinti sau reci, ar putea reprezenta un pericol, atunci acestea trebuie asigurate impotriva atingerii la locul de instalare.
Nu este permisa indepartarea protectiei impotriva atingerii partilor mobile (de ex. acuplajul) la masina aflata in functiune.
Scurgerile (de ex. ale supapei axului) de materiale periculoase transportate (de ex. explozive, otravitoare, fierbinti) trebuie inlaturate in asa fel incat sa nu fie puse in pericol persoane sau mediul inconjurator. Trebuie respectate dispozitiile legale.
Trebuie excluse primejduirile din cauza energiei electrice (pentru detalii vezi de ex. reglementarile VDE si ale furnizorului local de energie).
Instructiuni de siguranta pentru lucrari de intretinere, inspectie si montaj
Utilizatorul trebuie sa se asigure ca toate lucrarile de intretinere, inspectie si montaj sunt executate de catre un personal autorizat si calificat, care s-a informat suficient prin studierea aprofundata a manualului de utilizare.
Lucrarile la masina trebuie efectuate in principiu doar cand aceasta este oprita. Metoda de oprire a masinii descrisa in manualul de utilizare trebuie respectata in mod obligatoriu.
Pompele sau agregatele de pompare care pompeaza materii ce pun in pericol sanatatea, trebuie decontaminate.
Toate dispozitivele de siguranta si protectie trebuie reaplicate, respectiv repuse in functie imediat dupa finalizarea lucrarilor.
Inaintea repunerii in functie trebuie respectate din nou toate indicatiile referitoare la conexiunea electrica si instalare.
Reconstruirea arbitrara si productia de piese de schimb
Reconstruirea sau modificarea masinii sunt permise doar dupa consultarea producatorului. Piesele de schimb originale si accesoriile autorizate de catre producator servesc sigurantei. Utilizarea altor piese poate duce la anularea raspunderii pentru consecinte.
Moduri de functionare nepermise
Siguranta de functionare a masinii livrate este garantata doar la utilizarea conform reglementarilor potrivit paragrafului 1 din manualul de utilizare. Valorile limita enumerate in foaia de date nu trebuie in nici un caz depasite.
Imaginea 1: Masurile in mm (25896-02)

Utilizare
Pompa submersibila se foloseste la pomparea apelor reziduale care transporta fibre sau sunt foarte murdare (fara pietre) din puturi colectoare, gropi sau alte spatii cu pericol de explozie. Printre spatiile cu pericol de explozie se numara printre altele toate locurile de acces si de colectare care sunt legate cu reteua publica de canalizare, ca de ex. suprafetele pe care se afla autovehicule.
Pompa submersibila nu se poate folosi la pomparea apei reziduale din instalatii de closet si instalatii urinare!
In cazul conditiilor speciale de punere in folosinta in arii cu risc de explozie trebuie consultat Oficiul de supraveghere a activitatilor lucrative, Uniunea de supraveghere tehnica (TÜV), Inspectoratul de constructii sau Institutia de asigurari pentru accidente
Montarea si functionarea acestor instalatii sunt reglementate in cadrul "Normei cu privire la siguranta si protectie a sanatatii in pregatirea de echipamente de lucru si utilizarea acestora, la siguranta in utilizare a instalatiilor care necesita supraveghere si la organizarea protectiei muncii, art. 1 din Norma cu privire la siguranta in exploatare (BetrSichV)
Nivelul emisiilor sonore este mai mic de 70 dB(A)
Imagine de ansamblu asupra celor mai
importante norme si legi:
VDE 0100, EN 60079-14, EN 60079-17, EN 1127-1, Editura VDE, Bismarckstraße 33, 10625 Berlin
GUV-V A2 (pana in prezent GUV 2.10) Instalatii si echipamente electrice
GUV-V C5 (pana in prezent GUV 7.4) Norma cu privire la prevenirea accidentelor la instalatiile de apa reziduala
GUV-R 126 (pana in prezent GUV 17.6) Reguli de siguranta pentru lucrari in spatiile inchise ale instalatiilor de apa reziduala
GUV 19.8 (BGR 104, Ex-RL) Directive cu privire la protectia impotriva exploziilor pentru evitarea pericolelor din cauza atmosferei cu risc de explozie, cu serie de exemple; GUV-Westfalen-Lippe, Salzmannstr. 156, 48159 Münster
Norma referitoare la instalatiile electrice in spatii cu pericol de explozie (Norma cu privire la siguranta in exploatare BetrSichV) C. Heymanns Verlag, Luxemburger Str. 449, 50939 Köln
Regimuri de functionare la o temperatura medie de pompare de 40sC:
S1 = functionare continua cu pompa scufundata integral
S2 = functionare pe termen scurt cu carcasa pompei scufundata
S3 = functionare intermitenta cu carcasa pompei scufundata
Date suplimentare referitoare la S2 si S3: vezi 'Date tehnice'
La depozitarea pe uscat pompa este rezistenta la inghet la temperaturi de pana la -20sC. Cand e montata insa nu are voie sa inghete in apa.
Transport
Pompa trebuie in principiu ridicata doar
de maner si nu de cablul de alimentare!
Coborarea pompei in puturi mai adanci
sau gropi trebuie efectuata doar cu ajutorul unui cablu sau a unui
lant.
Conexiunea electrica
Prin utilizarea comenzilor noastre aveti certitudinea ca sunt indeplinite cerintele normelor tehnice de siguranta si ca eventuala receptie a lucrarii nu se va lovi de nici un obstacol.
Pentru instalatiile la care perioadele mai lungi de nefunctionare pot duce la intepenirea pompei, va recomandam folosirea dispozitivului nostru separat de comanda 'Proba zilnica de functionare".
Doar un electrician de specialitate poate efectua lucrari electrice la pompa sau comanda. Trebuie respectate normele in vigoare (EN, VDE, VGB), precum si reglementarile furnizorilor locali de energie.
ATENTIE! Nu puneti niciodata
in apa capatul cablului! Apa care e posibil sa
patrunda poate duce la deranjamente.
Ca sigurante de rezerva pentru pompa trebuie folosite doar sigurante de intarziere sau automate cu caracteristica C (inainte G si K).
Siguranta necesara la startul direct: 16 A
Pompa trebuie protejata printr-un deconector la supraintensitate
Reglare la startul direct = curent nominal Daca instalatia de protectie a deconectat, trebuie inlaturata cauza deranjamentului inainte de repornire.
Egalizare de potential
Conform VDE 0165 si DIN EN 1127-1 in ariile cu pericol de explozie trebuie instalat un egalizator de potential suplimentar la mijloacele de actionare cu cablu de impamantare in retea TN/TT. Dimensionarea conform VDE 0100 partea 540.
Directia de rotatie (doar pompe cu curent trifazic)
Directia de rotatie trebuie verficata inainte de instalare! La o directie de rotatie corecta, impulsul de pornire are loc in directia inversa sagetii de rotatie de pe carcasa motorului. Zgomotele puternice in timpul functionarii sau eficienta scazuta a pompei gata montate denota de asemenea o directie gresita de rotatie. In cazul directiei gresite de rotatie trebuie inversate 2 faze ale cablului de alimentare.
Termostate pentru bobinaj
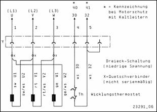
Pe langa deconectorul la supraintensitate respectiv comutatorul de protectie a motorului trebuie conectate termostatele integrate in bobinajul motorului. Sunt adecvate pentru 250 V si 1,2 A (cos phi 0,6) si marcate cu 30 si 32 pentru conectare (imaginea 2, 3 sau 4).
Termostatele trebuie conectate in asa fel incat la atingerea temperaturii corespunzatoare motorul sa fie oprit prin circuitul de comanda. Repornirea automata nu ar trebui sa fie posibila dupa racirea bobinajului.
Dispozitivul de blocare trebuie sa fie
"protejat impotriva tensiunii nule", adica blocarea trebuie sa
persiste si dupa o cadere de tensiune (in Directiva CE 94/9/EG
Anexa II 1.5, EN 60079-17 Tab1, B10).
Dupa oprirea prin termostate trebuie mai intai inlaturata cauza deranjamentului. Abia dupa aceea poate avea loc repornirea manuala.
Imaginea 2: Conexiune stea pentru tensiune inalta
US 73 Ex D si 103 Ex D (23290-08)
Modificarile de conectare trebuie efectuate cu folosirea de conectori de compresie intre ansamblul de conectare si motorul incorporat. Conexiunea de compresie trebuie facuta in mod profesionist prin utilizarea uneltelor potrivite: de ex. fabricat Grote & Hartmann, in functie de culoare: AZ 801 sau AZ 901.
Imaginea 3: Conexiune triunghi pentru tensiune joasa
US 73 Ex D si 103 Ex D (23291-06)
Imaginea 4: Conexiune pentru US 73 Ex W si 103 Ex W (24089)

Pompele de apa reziduala US 73 Ex W si 103 Ex W (W = curent alternativ) sunt protejate prin cate doua termostate pentru bobinaj si cate o protectie a motorului (in comanda AD 4 respectiv 8 Ex W).
Condensatorii montati in comanda pot fi inlocuiti daca este cazul doar prin condensatori avand valorile de masurare enumerate in certificatul CE de verificare a modelului:
Capacitate: 8 μF (AD 4 Ex W); toleranta : ± 10%
20 μF (AD 8 Ex W); toleranta : ± 10%
Tensiune: 400 V ; Regim de functionare: DB
Aceste pompe cu curent alternativ nu au voie sa functioneze fara comanda.
Functionarea la un convertor de frecventa
ATENTIE! Convertoarele de
frecventa pot fi folosite doar pentru reducerea numarului de turatii ale modelelor speciale de
pompe cu curent trifazic!
Pompele
cu curent alternativ sunt in general necorespunzatoare
Din motive fizice pompele nu pot fi actionate cu o frecventa mai mare decat cea indicata pe placuta de identificare. La o marire a frecventei peste valoarea afisata pe placuta de identificare, creste consumul de putere si motorul este suprasolicitat.
La modelele speciale de pompe cu curent trifazic pentru functionarea cu convertor de frecventa, tipul motorului este marcat pe placuta de identificare prin adaugarea unui "K" (de ex. D71-2/50 CK). Aceste pompe au in plus la capatul cablului o eticheta care indica posibilitatea de functionare cu un convertor de frecventa.
Aceste motoare sunt dotate cu conductori reci (PTC) ca dispozitive de protectie a bobinajului si trebuie protejate printr-o unitate de declansare verificata din punct de vedere al modelului - cu semnul de identificare "PTB 3.53-PTC/A"! La clemele 40 si 41 ale dispozitivului de protectie a bobinajului nu are voie sa fie legata o tensiune > 2,5 Volt! De asemenea trebuie avute in vedere conditiile speciale din certificatul CE de examinare a modelului eliberat de PTB.
Instalare
Pompa trebuie instalata dupa cum e exemplificat in imaginile 5, 6 sau 7. Conform DIN EN 12056-4 conducta de alimentare trebuie trasa in curba peste nivelul de refulare stabilit local si sa fie asigurata cu o supapa de retinere.
Pentru a permite o demontare usoara puteti monta sistemul nostru de glisiere GR 40.
Trebuie mentinuta viteza minima de curgere in conducta de 0,7 m/s.
In cazul conductelor de alimentare mai lungi trebuie ales un diametru corespunzator mai mare pentru evitarea pierderilor cauzate de frecarea conductelor.
Daca este folosit un furtun in loc de conducta de alimentare, atunci trebuie avut grija ca acesta sa fie golit complet la fiecare operatiune de pompare, inainte de scufundarea pompei. Eventualele resturi de lichid ar putea impiedica evacuarea aerului din carcasa pompei si prin aceasta pomparea. Aceasta situatie poate aparea si daca pompa pompeaza mai adanc decat in desenul de instalare.
La instalarea pompei in puturi colectoare care ar putea seca, conducta de alimentare trebuie - pentru o evacuare sigura a aerului din carcasa pompei - sa fie prevazuta cu o gaura de min. 6 mm deasupra racordului de presiune.
Plutitorii conectarii de nivel si
de alarma - respectati distantele minime date
imaginile 5, 6 si 7) - trebuie montati cu toleranta de miscare, insa nu sub alimentare! Comanda trebuie instalata intr-un spatiu uscat si bine aerisit!
ATENTIE! In cazul unei pompe defecte o
parte din continutul rezervorului de ulei se poate scurge in mediul de
pompare
ATENTIE!
Conform legilor si reglementarilor
referitoare la protectia impotriva exploziilor, pompele cu pericol de
explozie nu au voie niciodata sa functioneze pe uscat sau in
apa putina. Pompa trebuie sa decupleze cel tarziu atunci
cand nivelul apei atinge muchia superioara a carcasei pompei. Functionarea pe uscat este permisa exclusiv in afara ariei de
explozie, in scopuri de intretinere si inspectie.
Imaginea 5: Exemplu de montare instalatie simpla (25897-04)
Put min. 40 x 40 cm Daca se utilizeaza o placa de acoperire,
legatura elastica trebuie fixata in afara putului
si trebuie prevazuta o aerisire.

Imaginea 6: Exemplu instalatie dubla
Put min. 40 x 60 cm Comanda se monteaza intr-un spatiu uscat.

Imaginea 7: Exemplu de instalare a sistemului de glisiere
GR 40
Imaginea 8: Utilizare mobila (25900-01)
Intretinere
Va recomandam sa efectuati intretinerea conform DIN 1986 Partea 31.
Pentru a garanta o siguranta in functionare pe termen lung a instalatiei dumneavoastra, va recomandam sa incheiati un contract de intretinere. Atasat este un formular corespunzator

Motoarele acestei serii de productie
corespund clasei de protectie ignifuga "Carcasa rezistenta
la compresiune". Lucrarile de punere in functiune care
influenteaza protectia impotriva exploziilor pot fi efectuate
doar de catre firme autorizate sau de catre producator. Cu
ocazia reparatiilor trebuie verificat ca suprafetele de la marginea
intervalului sa nu aiba defectiuni si daca este cazul
trebuie inlocuite cu piese de schimb originale ale producatorului.
Inaintea oricarei lucrari:
1. Deconectati pompa de la retea!
2. Verificati
ca furtunul de cauciuc sa nu aiba defectiuni chimice si
mecanice
La
folosirea unui lant pentru ridicarea pompei va rugam sa
respectati normele cu privire la prevenirea accidentelor.
(de ex. 18.4 Institutia de asigurari pentru accidente in domeniul
constructiilor de masini si metalelor). Lanturile trebuie
verificate in mod regulat de catre un expert.
Pentru mentinerea sigurantei de functionare trebuie efectuat un prim schimb de ulei dupa 300 ore de functionare si alte schimburi de ulei dupa cate 1000 ore, totusi cel putin o data pe an. Daca este pompata apa reziduala cu impuritati foarte abrazive, schimburile de ulei trebuie prevazute la intervale corespunzatoare mai mici. La o viteza de pompare in descrestere sau zgomote de functionare in crestere, trebuie controlat rotorul pentru uzura de catre un specialist si inlocuit daca este cazul.
Verificarea rezervorului de ulei
Deschiderea de umplere si golire a rezervorului de ulei este etansata in afara printr-un surub de inchidere (SW 13). Pentru verificarea garniturii de etansare cu inel de alunecare, uleiul din rezervorul de ulei, inclusiv cantitatea ramasa -la pompa pozitionata oblic-, sunt scurse intr-un pahar gradat curat. Daca la controlul vizual se constata ca s-a infiltrat si apa pe langa ulei (laptos), atunci trebuie schimbat uleiul (vezi schimbul de ulei) si controlat din nou dupa alte 300 de ore de functionare. Daca la ulei s-au infiltrat apa si impuritati, trebuie inlocuita garnitura de etansare cu inel de alunecare.
Pentru supravegherea rezervorului de ulei poate fi montat, si ulterior, electrodul aparatului nostru de control al etanseitatii "DKG-Ex" in locul surubului de inchidere - marcat pe carcasa "DKG"-. (nr. art. 249)
Schimbul de ulei
Pentru schimbul continutului rezervorului de ulei trebuie folosit uleiul mineral hidraulic HLP al clasei de vascozitate 22 pana la 46, de ex. Spinesso sau Nuto ale firmei ESSO. Cantitatea de umplere este indicata in lista pieselor de schimb
Umplerea
rezervorului de ulei este permisa doar cu cantitatea data de ulei.
Umplerea in exces duce la distrugerea
pompei.
Curatare
Pentru curatarea rotorului se desfac doar cele 3 suruburi hexagonale interioare de pe partea inferioara a pompei, se indeparteaza eventualele picioare de sustinere si se scoate capacul carcasei inelare. Acum poate fi curatat rotorul.
Moment de torsiune MA pentru bacul de filiera A2
DIN 267 Partea 11: pentru M 6 este MA = 8 Nm (0,8 kpm)
Imaginea 9: Desenul exploziei
Pentru a primi piesele corecte de schimb
mentionati la efectuarea comenzii numarul articolului si tipul pompei. Poz. Nr.
art. Articol Bucati carcasa stator carcasa stator surub cilindric M 6 x 16 motor incorporat D 71-2/50 D motor incorporat E 71-2/50 W motor incorporat D 71-2/80 B motor incorporat E 71-2/80 C rulment cu canal de bile adancit ax de rotor cu rotor 73 D ax de rotor cu rotor 73 W ax de rotor cu rotor 103 D ax de rotor cu rotor 103 W saiba elastica JB 40 inel de distantare 17 x 40 x 17 inel de etansare ax BA Duo 16 x 30 x 7 carcasa inelara completa rotor rotor inel de etansare rotund 135 x 3 capac picior saiba A 6,4 surub cilindric M 6 x 16 surub cilindric M 6 x 16 capac garnitura de etansare cu inel
de alunecare 16 x 18,8 surub de inchidere inel de etansare rotund 10 x 2,5 rulment cu canal de bile adancit inel de etansare rotund 120,7 x 5,33 inel de siguranta A 17 x 1 inel de etansare rotund 38 x 3,5 racord de intrare complet Tip A
2 D racord de intrare complet Tip A 2 W surub cilindric M 6 x 16 fara
im. folie de izolare fara
im. continut de ulei 390 cm³ Grupe de vanzare: Ulei, Spinesso 22, sticla 1 l Set de etansare constand in: 03269,
03349, 19706, 03903, 12811, 23898 Carcasa stator cu motor incorporat
73 D constand in: 25412, 25584, 11100 Carcasa stator cu motor incorporat
73 W constand in: 25412, 25571, 11100 Carcasa stator cu motor incorporat
103 D constand in: 25445, 25573, 11100 Carcasa stator cu motor incorporat
103 W constand in: 25445, 25572, 11100
73 D 73 W 103 D 103 W

Date tehnice
Capacitati
|
|
|
Jung Pumpen GmbH XX |
|
EN 12050-2 Instalatie de ridicare a apei reziduale pentru apa reziduala fara materii fecale DN 40 Efect de ridicare - vezi date tehnice Nivel emisii sonore < 70 dB(A) Protectie impotriva coroziunii - vopsea din rasina sintetica |
|
Primele doua cifre ale numarului pompei indica anul de productie. |
Ajutor la deranjamente
Pompa nu merge:
verificati tensiunea de alimentare (nu utilizati creionul de tensiune)
siguranta defecta = eventual prea slaba (vezi conexiunea electrica)
alimentarea la retea defecta = reparatie efectuata doar prin serviciul nostru clienti sau in intreprindere
Pompa merge, dar nu pompeaza:
goliti conducta, respectiv furtunul de alimentare pentru ca supapa fluture sa se deschida si aerul din carcasa spiralata sa poata iesi. (vezi Instalare)
infundare a admisiei pompei (vezi Curatare)
Rotor blocat:
curatati carcasa spiralata si rotorul (vezi Curatare)
Capacitate de pompare scazuta:
rotor infundat (vezi Curatare)
rotor uzat = inlocuire
directie gresita de rotatie = se inverseaza 2 faze ale cablului de alimentare
DECLARATIE DE CONFORMITATE
Prin prezenta certificam faptul ca toate exemplarele aparatelor noastre incepand cu masina nr. ≥ 0302 _ _ _ _ (placuta de identificare pompa)
|
US 73 Ex W |
Nr. art 9292 |
US 103 Ex D |
Nr. art 9293 |
|
US 73 Ex D |
Nr. art 595 | ||
|
US 103 Ex W |
Nr. art 9294 |
corespund principalelor cerinte de protectie ale urmatoarelor directive CE:
|
Directiva CE ATEX 100 a |
in publicarea |
94/9CE |
|
Directiva CE privind masinile |
in publicarea |
98/37/CE |
|
Directiva CE-EMV |
in publicarea |
89/336/CEE |
|
Directiva CE privind echipamentele de joasa tensiune |
in publicarea |
73/23/CEE |
|
Directiva CE privind produsele pentru constructie |
in publicarea |
89/106/CEE |
Norme europene armonizate, in particular:
|
94/9CE |
98/37/CE |
89/336/CEE |
73/23/CEE |
89/106/CEE |
|
EN 50 014 |
EN 809 |
EN 61 000-3-2/3 |
EN 60 335-1 |
EN 12050-2 |
|
EN 50 018 |
EN ISO 12100 p. 1 |
EN 60 335-2-41 | ||
|
EN 60 079-14 |
EN ISO 12100 p. 2 |
EN 60 034-1/5 |
Norme si specificatii tehnice aplicate, care nu cad sub incidenta directivelor CE de mai sus:
Simbol:
CE0044 Ex II 2 G Eex d IIB T4 PTB 00 ATEX 1054
In cazul modificarii aparatului fara acordul nostru aceasta declaratie isi pierde valabilitatea.
Steinhagen, 07.11.2006
Semnatura indescifrabila Semnatura indescifrabila
____________________
Helmut Schweitzer Roland Liedtke (per procura)
(Director general) (Conducerea tehnica)
Physikalisch-Technische Bundesanstalt PTB
(Institutul German de Metrologie)
Braunschweig si Berlin
Certificat CE de examinare a modelului
(2) Aparate si sisteme de protectie pentru utilizarea conform reglementarilor in arii cu pericol de explozie - Directiva 94/9/CE
(3) Numarul certificatului CE de examinare a modelului
PTB 00 ATEX 1054
(4) Aparat: Motoare de pompe submersibile tip 71-/.
(5) Producator: Jung Pumpen GmbH & Co.
(6) Adresa: Industriestr. 4-6, D-33803 Steinhagen
(7) Tipul acestui aparat precum si diferitele modele permise sunt stabilite in anexa la acest certificat de examinare a modelului.
(8) Institutul German de Metrologie certifica ca pozitie numita nr. 0102 conform articolului 9 al Directivei Consiliului Comunitatilor Europene din 23 martie 1994 (94/9/CE) indeplinirea cerintelor de baza cu privire la siguranta si sanatate in conceperea si constructia de aparate si sisteme de protectie pentru utilizarea conform reglementarilor in arii cu pericol de explozie conform Anexei II a Directivei.
Rezultatele examinarii sunt cuprinse in raportul de examinare PTB Ex 00-10049.
(9) Cerintele de baza cu privire la siguranta si sanatate sunt indeplinite in concordanta cu
EN 50014:1997 EN 50018:1994
(10) In cazul in care dupa numarul certificatului se afla semnul "X", se face referinta in anexa acestui certificat la conditii speciale de utilizare in conditii de siguranta a aparatului.
(11) Acest certificat CE de examinare a modelului se refera doar la conceperea si constructia aparatului conform Directivei 94/9/CE. Celelalte cerintele ale acestei directive sunt valabile pentru productia si punerea in folosinta a acestui aparat.
(12) Marcajul aparatului trebuie sa contina urmatoarele indicatii:
Ex II 2 G EEx d Iib T4
Oficiul de certificare protectie impotriva exploziilor Braunschweig, 16.08.2000
Semneaza pentru
Semnatura indescifrabila Stampila PTB
Dr. Ing. U. Klausmeyer
Director
Pagina 1/3
Certificatele CE de examinare a modelului nu sunt valabile fara semnatura si stampila.
Acest certificat CE de examinare a modelului poate fi raspandit doar in varianta nemodificata.
Extrasele sau modificarile necesita aprobarea PTB.
Physikalisch-Technische Bundesanstalt - Bundesallee 100 - D-38116 Braunschweig
Physikalisch-Technische Bundesanstalt PTB
(Institutul German de Metrologie)
Braunschweig si Berlin
Foaie de date la certificatul CE de examinare a modelului PTB 00 ATEX 1054
Instalatiile suplimentare si de supraveghere cu certificat propriu si marcaj de protectie impotriva exploziilor trebuie alese in functie de conditiile de la locul de instalare.
Pentru instalare si montare sunt permise numai asemenea componente, care corespund din punct de vedere tehnic minimum standardului enuntat pe foaia de capat.
Instalatiile de supraveghere trebuie sa corespunda cerintelor ATEX 100a, Anexa II, paragraful 1.5.5 si EN 1127-1.
(18) Cerinte de baza cu privire la siguranta si sanatate
Acoperite prin normele enuntate mai sus
Oficiul de certificare protectie impotriva exploziilor Braunschweig, 16.08.2000
Semneaza pentru
Semnatura indescifrabila Stampila PTB
Dr. Ing. U. Klausmeyer
Director
Pagina 3/3
Certificatele CE de examinare a modelului nu sunt valabile fara semnatura si stampila.
Acest certificat CE de examinare a modelului poate fi raspandit doar in varianta nemodificata.
Extrasele sau modificarile necesita aprobarea PTB.
Physikalisch-Technische Bundesanstalt - Bundesallee 100 - D-38116 Braunschweig
Physikalisch-Technische Bundesanstalt PTB
(Institutul German de Metrologie)
Braunschweig si Berlin
Foaie de date la certificatul CE de examinare a modelului PTB 00 ATEX 1054
Firma Jung Pumpen GmbH & Co
Tip motor E 71 - 2 / 80 C respectiv E 71 - 2 / 80 CK
Date si dimensiuni
Acest certificat este valabil, cu conditia ca motoarele apartinand acestui tip sa se deosebeasca doar in masura nesemnificativa din punct de vedere al cerintelor electrice si termice de modelele verificate, avand urmatoarele specificatii:
|
Putere (consum): |
kW |
|
|
Tensiune: |
V |
|
|
Curent: |
A |
|
|
Factor de performanta: | ||
|
Condensator: |
µ F |
|
|
Frecventa: |
Hz |
|
|
Numar de turatii: |
min-1 |
|
|
Temperatura ambientala: |
max. 40 |
s C |
|
Regim de functionare: |
S1 la partea de motor scufundata S2 (7 min.) S3 (15 %)1) |
timp aproximativ 10 min.
Certificatul este valabil si pentru motoare cu o putere mai mica. Dar maxim pana la 1,7 kW. Datele corespunzatoare trebuie afisate de catre producator pe placuta de specificatii.
Fata de valorile de masurare, tensiunea de alimentare poate oscila cu pana la ± 5 % iar frecventa de retea cu pana la ± 2 % conform domeniului A din IEC 34-1.
La motoarele cu protectie prin conductori reci trebuie verificat ca atunci cand rotorul este franat si cand exista un raport IA/IN = 1,6, timpul de declansare tA = 80 s sa fie mentinut cu o toleranta de ± 20 %. In acest caz se pleaca de la un motor rece (20sC) si o tensiune de alimentare de 230 V la 50 Hz.
Semneaza pentru Braunschweig, 16.08.2000
Semnatura indescifrabila Stampila PTB
Dr. Ing. U. Klausmeyer
Director
Pagina 1/1
Physikalisch-Technische Bundesanstalt PTB
(Institutul German de Metrologie)
Braunschweig si Berlin
Foaie de date 02 la certificatul CE de examinare a modelului PTB 00 ATEX 1054
Firma Jung Pumpen GmbH & Co
Tip motor E 71 - 2 / 50 W respectiv E 71 - 2 / 50 WK
Date si dimensiuni
Acest certificat este valabil, cu conditia ca motoarele apartinand acestui tip sa se deosebeasca doar in masura nesemnificativa din punct de vedere al cerintelor electrice si termice de modelele verificate, avand urmatoarele specificatii:
|
Putere (consum): |
kW |
|
|
Tensiune: |
V |
|
|
Curent: |
A |
|
|
Factor de performanta: | ||
|
Condensator: |
µ F |
|
|
Frecventa: |
Hz |
|
|
Numar de turatii: |
min-1 |
|
|
Temperatura ambientala: |
max. 40 |
s C |
|
Regim de functionare: |
S1 la partea de motor scufundata S2 (8,5 min.) S3 (20 %)1) |
timp aproximativ 10 min.
Certificatul este valabil si pentru motoare cu o putere mai mica. Dar maxim pana la 0,96 kW. Datele corespunzatoare trebuie afisate de catre producator pe placuta de specificatii.
Fata de valorile de masurare, tensiunea de alimentare poate oscila cu pana la ± 5 % iar frecventa de retea cu pana la ± 2 % conform domeniului A din IEC 34-1.
La motoarele cu protectie prin conductori reci trebuie verificat ca atunci cand rotorul este franat si cand exista un raport IA/IN = 1,2, timpul de declansare tA = 248 s sa fie mentinut cu o toleranta de ± 20 %. In acest caz se pleaca de la un motor rece (20sC) si o tensiune de alimentare de 230 V la 50 Hz.
Semneaza pentru Braunschweig, 16.08.2000
Semnatura indescifrabila Stampila PTB
Dr. Ing. U. Klausmeyer
Director
Pagina 1/1
Physikalisch-Technische Bundesanstalt PTB
(Institutul German de Metrologie)
Braunschweig si Berlin
Foaie de date 03 la certificatul CE de examinare a modelului PTB 00 ATEX 1054
Firma Jung Pumpen GmbH & Co
Tip motor D 71 - 2 / 50 D respectiv D 71 - 2 / 50 DK
Date si dimensiuni
Acest certificat este valabil, cu conditia ca motoarele apartinand acestui tip sa se deosebeasca doar in masura nesemnificativa din punct de vedere al cerintelor electrice si termice de modelele verificate, avand urmatoarele specificatii:
|
Putere (consum): |
kW |
|
|
Tensiune: |
380420 655725 |
V |
|
Curent: |
1,6 1,0 |
A |
|
Factor de performanta: | ||
|
Frecventa: |
50 respectiv 60 |
Hz |
|
Numar de turatii: |
2587 respectiv 3187 |
min-1 |
|
Temperatura ambientala: |
max. 40 |
s C |
|
Regim de functionare: |
S1 la partea de motor scufundata S2 (10 min.) S3 (30 %)1) |
timp aproximativ 10 min.
Certificatul este valabil si pentru motoare cu o putere mai mica. Dar maxim pana la 1,07 kW, chiar daca motoarele opereaza cu 60 Hz. Datele corespunzatoare trebuie afisate de catre producator pe placuta de specificatii.
Pe langa tensiunile date mai sus sunt permise si valori intermediare. Curentii corespunzatori trebuie convertiti in raportul tensiunilor. Fata de valorile de masurare, tensiunea de alimentare poate oscila cu pana la ± 5 % iar frecventa de retea cu pana la ± 2 % conform domeniului A din IEC 34-1.
La motoarele cu protectie prin conductori reci trebuie verificat ca atunci cand rotorul este franat si cand exista un raport IA/IN = 3,5, timpul de declansare tA = 46,5 s sa fie mentinut cu o toleranta de ± 20 %. In acest caz se pleaca de la un motor rece (20sC) si o tensiune de alimentare de 400 V la 50 Hz.
Semneaza pentru Braunschweig, 16.08.2000
Semnatura indescifrabila Stampila PTB
Dr. Ing. U. Klausmeyer
Director
Pagina 1/1
Physikalisch-Technische Bundesanstalt PTB
(Institutul German de Metrologie)
Braunschweig si Berlin
Foaie de date 04 la certificatul CE de examinare a modelului PTB 00 ATEX 1054
Firma Jung Pumpen GmbH & Co
Tip motor D 71 - 2 / 80 B respectiv D 71 - 2 / 80 BK
Date si dimensiuni
Acest certificat este valabil, cu conditia ca motoarele apartinand acestui tip sa se deosebeasca doar in masura nesemnificativa din punct de vedere al cerintelor electrice si termice de modelele verificate, avand urmatoarele specificatii:
|
Putere (consum): |
kW |
|
|
Tensiune: |
380420 655725 |
V |
|
Curent: |
6,4 3,7 2,1 |
A |
|
Factor de performanta: | ||
|
Frecventa: |
50 respectiv 60 |
Hz |
|
Numar de turatii: |
2447 respectiv 3047 |
min-1 |
|
Temperatura ambientala: |
max. 40 |
s C |
|
Regim de functionare: |
S1 la partea de motor scufundata S2 (7 min.) S3 (15 %)1) |
timp aproximativ 10 min.
Certificatul este valabil si pentru motoare cu o putere mai mica. Dar maxim pana la 1,9 kW, chiar daca motoarele opereaza cu 60 Hz. Datele corespunzatoare trebuie afisate de catre producator pe placuta de specificatii.
Pe langa tensiunile date mai sus sunt permise si valori intermediare. Curentii corespunzatori trebuie convertiti in raportul tensiunilor. Fata de valorile de masurare, tensiunea de alimentare poate oscila cu pana la ± 5 % iar frecventa de retea cu pana la ± 2 % conform domeniului A din IEC 34-1.
La motoarele cu protectie prin conductori reci trebuie verificat ca atunci cand rotorul este franat si cand exista un raport IA/IN = 2,7, timpul de declansare tA = 49,3 s sa fie mentinut cu o toleranta de ± 20 %. In acest caz se pleaca de la un motor rece (20sC) si o tensiune de alimentare de 400 V la 50 Hz.
Semneaza pentru Braunschweig, 16.08.2000
Semnatura indescifrabila Stampila PTB
Dr. Ing. U. Klausmeyer
Director
Pagina 1/1
|
Politica de confidentialitate |
| Copyright ©
2026 - Toate drepturile rezervate. Toate documentele au caracter informativ cu scop educational. |
Personaje din literatura |
| Baltagul – caracterizarea personajelor |
| Caracterizare Alexandru Lapusneanul |
| Caracterizarea lui Gavilescu |
| Caracterizarea personajelor negative din basmul |
Tehnica si mecanica |
| Cuplaje - definitii. notatii. exemple. repere istorice. |
| Actionare macara |
| Reprezentarea si cotarea filetelor |
Geografie |
| Turismul pe terra |
| Vulcanii Și mediul |
| Padurile pe terra si industrializarea lemnului |
| Termeni si conditii |
| Contact |
| Creeaza si tu |