TOLERANTELE SI AJUSTAJELE RULMENTILOR
1. Generalitati
Lagarele sunt definite ca organe de masini utilizate pentru sustinerea arborilor sau a altor piese cu miscare de rotatie, servind pentru preluarea sarcinilor care actioneaza asupra acestora. Daca frecarea din interiorul lagarului este frecare cu rostogolire, lagarele se numesc lagare cu rostogolire. Rulmentul este elementul principal al lagarului cu rostogolire, fiind un organ de masina care transforma miscarea de alunecare in miscare de rostogolire. Alaturi de rulment, in componenta lagarului cu rostogolire intra fusul arborelui, carcasa, elementele de fixare axiala, sistemele de ungere si de etansare.
Lagarele cu rulmenti prezinta urmatoarele avantaje principale fata de lagarele cu alunecare:
pierderi mai mici de putere prin frecare, datorita randamentului ridicat,
turatii mai mari (20 000— 30 000 rot/min);
consum redus de lubrifiant in perioada de intretinere;
intretinere usoara;
interschimbabilitate, datorita standardizarii internationale.
eficienta economica superioara, datorita avantajelor standardizarii si posibilitatii centralizarii executiei lor prin intreprinderi specializate cu procese de productie automatizate.
Dezavantajele lagarelor cu rostogolire sunt:
gabarit radial relativ ridicat (dimensiune radiala mai mare decat a lagarelor cu alunecare)
rigiditate mai mare ;
durabilitate scazuta la functionarea cu turatii foarte mari sau in prezenta socurilor si vibratiilor.
necesita precizie mare de executie si montaj.
In prezent, lagarele cu rostogolire constituie principalul tip de lagar utilizat in constructia de masini, domeniile de folosire fiind limitate doar de necesitatea realizarii unor turatii foarte mari sau de prezenta socurilor si vibratiilor.
Elementele componente ale rulmentilor sunt (figura 1):
inelul interior/saiba de fus (2) si inelul exterior/saiba de carcasa (1) care formeaza calea de rulare;
corpurile de rostogolire (3) sub forma de bile sau role;
colivia (4) pentru pastrarea distantei intre corpurile de rostogolire;
diferite elemente pentru asamblare si etansare.
La unele lagare, pentru reducerea gabaritului radial, se utilizeaza rulmenti fara inelul interior sau fara ambele inele, caz in care se executa cai de rulare pe fusul arborelui si, eventual, pe carcasa.
In figura 2 este reprezentat un lagar cu rulment radial, respectiv axial cu bile pe care se pot urmari, de asemenea, principalele elemente componente precum si dimensiunile de montaj ale rulmentului, care sunt:
d — diametrul interior al rulmentului (diametrul alezajului);
D diametrul exterior al rulmentului
B, T — latimea rulmentului.
Figura 1: Elementele componente ale unui rulment

Figura 2: Partile componente ale unui lagar cu rulment
a — cu rulment radial; b — cu rulment axial
Clasificarea rulmentilor se face dupa o serie de criterii:
Dupa forma corpurilor de rostogolire se deosebesc: rulmenti cu bile si rulmenti cu role, care la randul lor pot fi: cilindrice, conice, butoi sau ace
Numarul de randuri de dispunere a corpurilor de rostogolire imparte rulmentii in rulmenti cu corpurile de rostogolire dispuse pe un rand, pe doua randuri sau pe mai multe randuri.
Dupa capacitatea de preluare a deformatiilor unghiulare se deosebesc rulmentii obisnuiti sau fixi (care pot prelua abateri unghiulare foarte mici) si rulmenti oscilanti (cu capacitate ridicata de preluare a abaterilor unghiulare).
Directia sarcinii principale preluate imparte rulmentii in:
rulmenti radiali (preiau sarcini radiale si, eventual, sarcini axiale mici),
rulmenti axiali (preiau sarcini axiale),
rulmenti radial-axiali (preiau, in principal, sarcini radiale, dar si sarcini axiale),
rulmenti axial-radiali (preiau, in principal, sarcini axiale, dar si sarcini radiale).
Dupa constructia si materialul coliviei, se deosebesc rulmenti cu colivie stantata (din tabla de otel) sau cu colivie masiva (din textolit, alama, duraluminiu etc.).
Dupa elementele de etansare cuprinse in constructia rulmentului, rulmentii pot fi: neetansati (fara sisteme de etansare proprii), etansati (umpluti cu unsoare consistenta si prevazuti, intre inele, pe ambele fete, cu discuri din materiale nemetalice), protejati (umpluti cu unsoare consistenta si prevazuti, intre inele, pe ambele fete, cu discuri din materiale metalice).
Dupa valoarea jocului radial se deosebesc rulmenti cu joc radial normal, marit sau micsorat, joc determinat de precizia de executie care poate fi normala sau ridicata.
Dupa dimensiunile de gabarit, conform standardelor, se deosebesc serii de diametre (cu diferente pe directie radiala) si serii de latimi (cu diferente pe directie axiala – numai la rulmentii cu role), acestea influentand capacitatea de incarcare a rulmentilor.
Standardizarea rulmentilor, pe plan mondial, cuprinde o mare diversitate constructiva si tipodimensionala. Recunoasterea rulmentilor se face pe baza unei simbolizari, de asemenea, standardizate. Simbolizarea se face printr-un sir de litere sau cifre care semnifica, in ordine .
Tipul rulmentului poate fi o cifra (3 – pentru rulment radial-axial cu role conice, 6 – pentru rulment radial cu bile, 7 – pentru rulment radial-axial cu bile etc.) sau un grup de litere, pentru rulmentii radiali cu role cilindrice (N – pentru rulment radial cu role cilindrice cu doi umeri la inelul interior, NU – pentru rulment radial cu role cilindrice cu doi umeri la inelul exterior etc.).
Seria de latimi este o cifra, cu atat mai mare cu cat latimea rulmentului este mai mare. Apare doar la anumite tipuri de rulmenti (in general, la cei cu role).
Seria de diametre este o cifra, cu atat mai mare cu cat diametrul exterior este mai mare.
Diametrul interior rezulta prin inmultirea cu 5 a numarului format din ultimele doua cifre ale simbolului.
Pentru exemplificare:
simbolul 6 2 05 reprezinta un rulment radial cu bile (6), din seria de diametre 2, cu diametrul interior de 5 x 05 = 25 mm;
reprezinta un rulment radial-axial cu role conice (3), din seria 0 de latimi, din seria 2 de diametre si cu diametrul interior de 5 x 06 = 30 mm.
Exemple de rulmenti din aceste categorii sint indicate
schematic in figura 3.
Figura 3: Reprezentarea schematica a principalelor tipuri de rulmenti:
a — radial cu bile pe un singur rind; b — radial oscilant cu bile pe doua rinduri;
c — radial-axial cu bile pe un singur rind; d — axial cu bile pe un rind;
e — axial-radial cu bile pe un singur rind cu cale de rulare adanca;
f — radial cu role cilindrice pe un singur rind; g — radial cu ace;
h — radial cu role butoi pe doua randuri; i — radial - axial cu role conice;
j — axial cu role conice pe un rind; k — axial-radial cu role butoias pe un rind.
Rulmentii radiali pot prelua si sarcini axiale reduse, iar cei axiali pot prelua si sarcini radiale de valori mici in raport cu sarcinile axiale.
Dintre numeroase variante constructive, cele mai utilizate lagare sint cele cu rulmenti radiali cu bile si cele cu rulmenti axiali cu bile.
Lagare radial-axiale sau axial-radiale se pot executa si din rulmenti radiali combinati cu rulmenti axiali.
Rulmentii cu role cilindrice suporta sarcini de 1,7 ori mai mari decit cei cu bile si pot functiona la turatii sporite.
Rulmentii cu doua rinduri de corpuri suporta sarcini de 1,5 ori mai mari.
Rulmentii cu role cilindrice lungi sau cei cu ace se folosesc cind sint necesare diametre exterioare reduse sau foarte reduse.
Rulmentii cu role conice si cei cu role butoias dispuse pe doua rinduri pot fi incarcati de 1,9 ori mai mult fata de cei cu role dispuse pe un singur rind. Viteza lor poate creste pina la 15 m/s.
Rulmentii oscilanti pot suporta inclinarea axei de rotatie a arborilor sau osiilor cu 2—3°.
In general, rulmentii sunt construiti cu un anumit joc intre corpurile de rostogolire si caile de rulare. Deplasarea relativa dintre inele, fara aplicarea unei sarcini, pe directie radiala sau axiala, este cunoscuta sub numele de joc radial, respectiv axial.
Prin urmare, intre
corpurile de rostogolire si caile de rulare exista un joc care
poate fi radial,
sau axial,
Acesta este definit ca
media posibilitatilor de deplasare in directie radiala,
respectiv axiala, a unuia din inelele rulmentului in raport cu
celalalt mentinut fix, atunci cand axele lor geometrice sunt
paralele, respectiv coincid.
|
a) |
b) |
c) |
d) |
e) |
Figura 4: Tipuri de rulmenti cu jocurile corespunzatoarea) rulment radial cu bile; b) rulment radial cu role; c) rulment radial-oscilant cu bile pe doua randuri; d) rulment radial-oscilant cu role pe doua randuri; e) rulment axial cu bile. |
||||
Valoarea jocului inainte de montarea rulmentului pe arbore sau in carcasa se numeste joc initial.
Dupa montare, au loc deformatii care micsoreaza jocul initial, jocul obtinut numindu-se joc de montare.
In timpul functionarii, inelul interior se incalzeste in general mai mult decat cel exterior (din cauza unor conditii mai defavorabile de transmitere a caldurii) si, ca urmare, valoarea jocului se schimba. De asemenea, datorita sarcinilor care actioneaza pe rulment au loc deformatii de contact intre caile si corpurile de rulare care modifica valoarea jocului. Jocul existent in stare de functionare se va numi joc de functionare.
In cazul rulmentilor radiali-axiali cu role conice, jocul radial necesar poate fi reglat la montare, prin deplasarea inelului exterior al rulmentului. Iata de ce se va insista numai asupra jocului radial al rulmentilor cu bile si role cilindrice.
Jocul radial initial teoretic se calculeaza cu relatia:
(1)
in care:
- diametrul
caii de rulare a inelului exterior;
- diametrul
caii de rulare a inelului interior;
- diametrul
corpurilor de rulare.
In practica se considera jocul radial initial de control care este jocul obtinut la incarcarea rulmentului cu anumite sarcini:
; (2)
in care:
- jocul radial
initial de control obtinut prin incarcarea rulmentului cu o
sarcina de 5 sau 10 daN;
z – numarul corpurilor de rulare in rulment.
In ceea ce priveste jocul radial de montare,
, acesta are valoarea:
(3)
in care:
- micsorarea
jocului radial ca urmare a deformarii diametrului caii de rulare a
inelelor datorita ajustajelor de montaj.
In cazul cand inelul
interior se introduce cu strangere pe arbore, diametrul caii de rulare a
inelului interior se mareste cu 55 75% (in medie cu 65%) din strangerea
calculata,
. Rezulta:
(4)
In cazul cand inelul
exterior se introduce cu strangere in carcasa, diametrul caii de
rulare a inelului exterior se micsoreaza cu 50 60% (in medie cu 55%) din strangerea
calculata,
. Rezulta:
(5)
Jocul radial de functionare are valoarea,
:
(6)
in care:
- micsorarea
jocului radial in urma dilatarilor diferite care se produc la cele
doua inele:
(7)
unde:
- coeficientul de
dilatarea termica liniara;
- diametrul caii
de rulare a inelului interior;
- diferenta
dintre temperaturile celor doua inele;
- marirea jocului
radial datorata deformarilor de contact:
, (8)
unde:
-
deformatiile de contact dintre corpurile de rulare si calea de rulare
a inelului interior, respectiv exterior, valori date in literatura de
specialitate.
In ceea ce priveste jocul axial,
al
rulmentilor cu bile, acesta depinde de jocul radial, raza profilului
transversal al caii de rulare a inelelor si diametrul bilelor. Pentru un rulment radial cu bile pe un singur
rand, jocul axial teoretic are valoarea:
(9)
Sub sarcina, valoarea jocului axial devine:
. (10)
Simbolizarea jocurilor rulmentilor se face conform Tabelului 1.
Tabelul 1
Simbolizarea grupei de jocuri |
Semnificatia |
|
|
pentru rulmenti nedemontabili sau cu elemente interschimbabile |
pentru rulmenti cu elemente neinterschimbabile |
|
C 1 |
C 1 NA |
Joc mai mic decat la C2 |
|
C 2 |
C 2 NA |
Joc mai mic decat normal |
|
NA |
Joc normal (rulmenti de uz general) |
|
|
C 3 |
C 3 NA |
Joc mai mare decat normal |
|
C 4 |
C 4 NA |
Joc mai mare decat la C3 |
C 5 |
C 5 NA |
Joc mai mare decat la C4 |
Observatie: Jocul normal la rulmentii nedemontabili nu se simbolizeaza.
Corespunzator acestor grupe de jocuri, in STAS 7115-73 sunt date valorile joczrilor radiale si axiale.
Jocul radial al unui rulment se modifica, prin montare datorita ajustajelor cu strangere, iar in functionare datorita dilatatiilor termice.
Rulmentii radiali se executa cu trei marimi ale jocului radial: normal, micsorat sau marit. Jocul radial normal, in stare nemontata, este astfel stabilit incat, dupa montare, in conditii normale de temperatura, jocul in functionare sa fie optim. Daca ajustajele se realizeaza cu strangeri marite sau temperaturile de functionare sunt mai ridicate, se recomanda alegerea unor rulmenti cu joc radial marit (in stare nemontata).
Jocul axial este important de reglat la rulmentii radial-axiali sau la rulmentii axiali. Rulmentii radial-axiali, nu se executa cu un anumit joc radial in stare nemontata, jocul reglandu-se, la montaj, impreuna cu jocul axial. Pentru ca in functionare sa se ajunga la un joc normal, jocul reglat la montaj se stabileste in functie de schema de montaj si de conditiile de temperatura.
Daca dilatatiile termice, in functionare, sunt mari, jocul axial, la montaj, se regleaza la valori marite, in cazul montajelor cu rulmenti radial-axiali in “X” (montare a doi rulmenti fata in fata), si la valori reduse, in cazul montajelor in “O” (montare a doi rulmenti spate in spate).
Jocul se regleaza prin deplasarea inelului exterior al unui rulment, la montaje in “X”, si prin deplasarea inelului interior al unui rulment, la montaje in “O”.
Deplasarea inelului exterior se realizeaza cu ajutorul unor pachete de garnituri de reglaj plasate intre capacul de rulment si carcasa (figura 5) sau prin elemente filetate in capac sau in carcasa (figura 6). Garniturile de reglaj se obtin din tabla de alama si au diferite grosimi (cuprinse intre 0,1 si 1 mm), bine stabilite.
Deplasarea inelului interior se realizeaza, de regula, cu ajutorul piulitelor de rulment (figura 7) sau a altor piulite insurubate pe arbore.
Figura 5: Montaj cu fixare axiala la un singur capat,
cu doi rulmenti radial-axiali cu bile si un rulment radial cu bile


Figura 6: Elemente de fixare axiala
pentru inelele exterioare
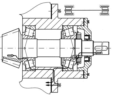
Figura 7: Montaj cu fixare axiala la ambele capete, in “O”, cu rulmenti radial-axiali cu role conice, pentru arborele de intrare intr-un reductor conic
3. Precizia de executie a rulmentilor
Pentru a asigura asamblarilor din care fac parte o precizie corespunzatoare si conditii de functionare normale (mai ales in ceea ce priveste centrarea si mentinerea jocului radial si axial intre limitele prescrise) rulmentii sunt executati, in general, cu o precizie mai mare decat a pieselor cu care se asambleaza.
Odata montat, precizia rulmentului se considera sub doua aspecte
a) Precizia rotirii este determinata de bataile radiale si axiale ale cailor de rulare, respectiv de bataia fetelor frontale ale inelelor si de precizia jocurilor.
b) Precizia dimensiunilor de montaj se refera la diametrul exterior D, interior d, si latimea B a rulmentului.
Pentru diametrele D, d se prevad trei valori: maxima, medie si minima, justificate de faptul ca inelele sunt subtiri si se deformeaza usor, luand la montare forma alezajului carcasei sau arborelui. Ca urmare, ovalitatea in limitele admise, nu influenteaza negativ calitatea rulmentilor, cu conditia ca:
(11)
sa se incadreze in limitele tolerantelor prescrise pentru
si
In STAS 4207-82 sunt prevazute urmatoarele 5 clase de precizie, caracterizate prin abateri limita dimensionale si abateri limita referitoare la precizia de rotatie:
clasa de precizie P0, cu tolerante considerate normale, utilizate pentru scopuri uzuale (majoritatea rulmentilor se executa in aceasta clasa);
clasa de precizie P6, cu tolerante mai mici decat P0;
clasa de precizie P5, cu tolerante mai mici decat P6;
clasa de precizie P4, cu tolerante mai mici decat P5;
clasa de precizie P2, cu tolerante mai mici decat P4;
Mai exista clasele de precizie speciala SP si ultraprecisa UP, utilizate in mod exceptional.
Rulmentii din clasele P2 si P4 se utilizeaza la sarcini si turatii foarte mari, (v>50 m/s), in ansambluri la care se cere o centrare foarte buna si un mers silentios.
Rulmentii executati in clasa P5 asigura o centrare buna si lucreaza la v=20 60 m/s.
Rulmentii executati in clasa P6 lucreaza la sarcini mari si mijlocii si v<30 m/s.
In asamblari mai putin pretentioase, pentru v<10 m/s, se utilizeaza rulmenti din clasa de precizie P0.
Diferenta relativa a abaterilor intre clasa de precizie normala si celelalte clase de precizie se poate vedea in figura 8.

Figura 8 Figura 9
Inelul interior al unui rulment se monteaza pe arbore in sistemul alezaj unitar (H), iar inelul exterior intr-o carcasa in sistemul arbore unitar (h). Ca urmare, pentru obtinerea diferitelor ajustaje la montare, se actioneaza asupra diametrului arborelui, respectiv al carcasei (rulmentul ramanand la dimensiunile sale de executie).
Pozitiile campurilor de toleranta pentru diametrul interior, exterior si pentru latimea rulmentilor sunt date in figura 9.
Rugozitatea suprafetelor de contact si
de asamblare ale rulmentilor are pentru
valori sub 1
μm.
Piesele componente ale rulmentilor se executa separat, cu o precizie convenabila din punct de vedere tehnologic si economic, dar precizia rulmentilor, mai ales in ceea ce priveste jocul radial si axial, se asigura prin sortarea prealabila in mai multe grupe, dupa diametrul cailor si al corpurilor de rulare, dupa care urmeaza asamblarea inelelor si bilelor sau rolelor din aceeasi grupa.
4. Precizia de montare a rulmentilor
Functionarea corecta a unui rulment montat intr-un ansamblu depinde de ajustajele pe care le realizeaza suprafetele de montaj ale arborelui si carcasei, de abaterile de forma si pozitie ale acestor suprafete, precum si de rugozitate.
Alegerea ajustajelor optine de montaj ale rulmentilor depinde de o serie de factori constructivi si functionali: tipul si marimea rulmentului, felul si marimea sarcinilor, cazurile de incarcare ale inelelor, conditiile de exploatare.etc.
Din punct de vedere al tipului rulmentului, se alege un ajustaj cu strangere mai mare pentru rulmentii cu role decat pentru cei cu bile, la aceeasi marime a rulmentului.
Din punct de vedere al marimii rulmentului, se alege un ajustaj cu strangere mai mare pentru rulmentii mai mari, la un acelasi tip de rulment.
Tipul si marimea sarcinii influenteaza marimea strangerii la ajustajele presate, in sensul cresterii strangerii necesare cu marimea sarcinii sau a socurilor.
Conditiile de exploatare influenteaza, de asemenea, alegerea ajustajelor de montaj: la carcasele cu pereti subtiri si la arborii tubulari se aleg ajustaje cu strangeri mai mari decat pentru carcase masive si arbori plini.
Conditiile de temperatura determina strangeri sau jocuri cu atat mai mari cu cat temperatura de functionare este mai mare.
Constructia carcasei poate fi cu plan de separatie – caz in care nu este permisa alegerea unui ajustaj cu strangere in carcasa, sau fara plan de separatie, obligatorii in cazul sarcinilor cu actiune periferica pe inelul exterior. La carcase subtiri sau din materiale usoare se recomanda strangeri mai mari.
Conditiile de montare si demontare trebuie sa fie cat mai simple. Daca ambele inele se monteaza cu strangere este recomandata alegerea rulmentilor demontabili sau a rulmentilor cu alezaj conic si bucsa de extractie.
Din punctul de vedere al cazurilor de incarcare, se deosebesc trei cazuri de incarcare a inelelor rulmentilor, conform STAS 6671-77:
a) Incarcarea locala (cu sarcina fixa) - figura 10.
La acest tip de incarcare, forta constanta este mult mai mare decat forta rotitoare, Fconstanta >> Frotitoare si ca urmare, forta rezultanta este orientata continuu spre acelasi punct de pe calea de rulare, fiind suportata intr-un singur punct pe un anumit inel. Incarcarea locala poate avea loc pe inelul interior sau pe inelul exterior.
Acest tip de incarcare apare atunci cand intre sarcina si inelul respectiv nu exista miscare relativa. Incarcarea locala are loc pe inelul care ramane fix in raport cu sarcina, chiar daca se roteste.
|
a) b) |
|
Figura 10: Incarcarea rulmentilor cu o forta de directie constanta: a) incarcare locala pe inelul interior si circulanta pe exterior; b) incarcare locala pe inelul exterior si circulanta pe interior |
Incarcarea locala trebuie evitata datorita uzurii locale. De aceea, se recomanda ca inelul supus unei sarcini fixe sa se monteze cu ajustaj cu joc (in general, dintre ajustajele intermediare) deoarece astfel, in timpul functionarii, inelul respectiv se poate roti pe arbore sau in carcasa, aducand pe directie de actionare a fortei portiuni mai putin uzate de pe calea de rulare, deci egalizand uzura si marind in acest fel durabilitatea rulmentului.
b) Incarcarea circulanta (cu sarcina rotitoare) – figura 11.
La acest tip de incarcare, forta constanta este mult mai mica decat forta rotitoare, Fconstanta << Frotitoare si ca urmare sarcina (rezultanta) este suportata succesiv pe toata circumferinta caii de rulare. Acest tip de solicitare apare cand intre inel si sarcina exista miscare relativa. Incarcarea circulanta are loc pe inelul care se roteste in raport cu sarcina, chiar daca este fix.
Incarcarea circulanta poate avea loc pe inelul interior sau pe inelul exterior.
Inelul solicitat cu sarcina rotitoare trebuie montat in ajustaj cu strangere.
|
a) b) |
|
Figura 11: Incarcarea rulmentilor cu o forta rotitoare: a) incarcare locala pe inelul interior si incarcare circulanta pe inelul exterior; b) incarcare locala pe inelul exterior si incarcare circulanta pe inelul interior. |
c) Incarcarea nedeterminata (cu sarcina variabila) – figura 12
La acest tip de incarcare, forta constanta este este aproximativ egala cu forta rotitoare, Fconstanta ≈ Frotitoare si ca urmare sarcina (rezultanta) este suportata doar pe o portiune din circumferinta caii de rulare.
Incarcarea nedetrminata apare cand sarcina are fata de inele directii variabile nedefinite (socuri, vibratii sau dezechilibrari).
Acest tip de incarcare apare pe inelul care este fix, deci nu se roteste.
In acest caz se recomanda ca ambele inele sa se monteze cu strangere.

Figura 12: Incarcarea rulmentilor cu o forta variabila:
a) incarcare nedeterminata pe inelul interior si incarcare circulanta pe inelul exterior;
b) incarcare nedeterminata pe inelul exterior si incarcare circulanta pe inelul interior.
5. Ajustaje si tolerante pentru lagarele cu rulmenti
Tolerantele la diametrele de fusuri se aleg in sistem alezaj unitar, iar tolerantele la diametrele alezajelor din carcase se aleg in sistem arbore unitar si sunt standardizate. Aceste tolerante determina tipurile de ajustaje dintre fusul arborelui si inelul interior al rulmentului, respectiv dintre inelul exterior si alezajul din carcasa.
In figura 13, conform STAS 6671-77, se prezinta schematic cimpurile de toleranta ale arborelui si carcasei si influenta acestora asupra felului ajustajului, respectiv, cu joc intermediar sau cu stringere, pentru carcasa, si intermediar si cu stringere, pentru arbore.

Figura 13: Ajustajele rulmentilor
In tabelul se recomanda alegerea cimpului de toleranta pentru arbore, in functie de:tipul rulmentului, modul de incarcare si diametrul arborelui, iar in tabelul 3 alegerea cimpului de toleranta pentru carcasa.
Tabelul 2 - Cimpuri de toleranta pentru arbori
|
Conditii de lucru |
Exemple |
Diametrul arborelui (mm) |
Rulmenti oscilanti cu role butoi |
Simbolul cimpului de toleranta |
|
|
Rulmenti cu bile |
Rulmenti cu role cilindrice, conice rulmenti cu ace |
||||
|
Rulmenti radiali cu alezaj cilindric - Sarcina fixa pe inelul interior |
|||||
|
Este necesara deplasarea usoara a inelului interior |
Roti de rulare de arbori stationari (roti libere) |
Toate diametrele |
g6(f6) |
||
|
Deplasarea inelului interior nu este necesara |
Role de intindere |
h6 |
|||
|
Sarcina rotitoare pe inelul interior |
|||||
|
Sarcini mici si
variabile |
Instalatii de transport, lagare din mecanisme incarcate usor |
18100 |
<=40 |
j6 |
|
|
Sarcini normale sau
mari |
Constructii de masini in general, motoare electrice, turbine, pompe, cutii cu angrenaje, masini pentru prelucrarea lemnului |
<=18 |
- |
- |
j5 |
|
Sarcini mari si
socuri in conditii grele de lucru |
Lagare pentru osii de material rulant greu, motoare de tractiune |
> 50140 |
> 50100 |
n6 |
|
|
Precizie mare de
rotire la sarcini mici |
Masini-unelte |
<= 18 |
- |
h5 |
|
|
Sarcini axiale |
|||||
|
Pentru toate lagarele |
<= 250 |
<= 250 |
<250 |
j6 |
|
|
Rulmenti cu alezaj conic si bucsa de stringere sau de extractie |
|||||
|
Fusul osiei pentru material rulant |
Toate diametrele |
h8 |
|||
|
Constructii de masini in general |
h10 |
||||
|
Rulmenti axiali - Sarcina axiala |
|||||
|
Rulmenti axiali cu bile |
Toate dimensiunile |
h6 |
|||
|
Rulmenti axiali cu role cilindrice si ace |
Toate dimensiunile |
h6(H8) |
|||
|
Colivii axiale cu role cilindrice si ace |
Toate dimensiunile |
h8 |
|||
|
Sarcina combinata pentru rulmenti axiali oscilanti cu role |
|||||
|
Sarcina fixa pe sainba de fus |
<= 250 |
j6 |
|||
|
Sarcina rotitoare pe sainba de fus sau sarcina nedeterminata |
<= 200 |
k6 |
|||
Tabelul 3 Cimpuri de toleranta pentru alezajele carcaselor Rulmenti radiali si radial-axiali
Carcase neseparabile
|
Conditii de lucru |
Exemple |
Simbolul cimpului de toleranta |
Deplasarea inelului exterior |
|
Sarcina rotitoare pe inelul exterior |
|||
|
Sarcini mari pentru carcase cu pereti subtiri, sarcini cu socuri (P > 0,12C) |
Butucul rotilor cu rulmenti cu role, lagar de biela |
P7 |
Inelul exterior nu este deplasabil |
|
Sarcini normale
si mari |
Butucul rotilor cu
rulmenti cu |
N7 | |
|
Sarcini mici si
variabile |
Roti de transport, roti de cablu, role de intindere |
M7 | |
|
Sarcina nedeterminata |
|||
|
Sarcini cu socuri |
Motoare de tractiune |
M7 | |
|
Sarcini
normale si mari |
Motoare electrice, pompe, lagare principale pentru arbori cotiti |
K7 |
Inelul exterior nu este deplasabil |
Carcase separabile sau neseparabile
|
Conditii de lucru |
Exemple |
Simbolul cimpului de toleranta |
Deplasarea inelului exterior |
|
Sarcina nedeterminata |
|||
|
Sarcini normale si mici. Deplasarea inelului exterior este de dorit (P <= 0,12C) |
Motoare electrice mijlocii, pompe, lagare principale pentru arbori cotiti |
j7 |
Inelul exterior este deplasabil |
|
Sarcina fixa pe inelul exterior |
|||
|
Orice fel de sarcini |
Constructii de masini in general, cutii de unsoare pentru material rulant |
H7 |
Inelul exterior este usor deplasabil |
|
Sarcini
normale si mici la conditii de lucru usoare |
Transmisii |
H8 | |
|
Transmiterea caldurii prin arbore |
Cilindri uscatori, masini electrice mari cu rulmenti oscilanti cu role |
G7 | |
Carcase neseparabile
|
Conditii de lucru |
Exemple |
Simbolul cimpului de toleranta |
Deplasarea inelului exterior |
|
Precizie mare de rotire, mers fara zgomot |
|||
|
Rigiditate mare, la sarcini variabile |
Arbori principali pentru masini-unelte cu rulmenti cu role |
D <= 125 M6 |
Inelul exterior nu este deplasabil |
|
Sarcini mici, nedeterminate |
Partea de lucru de la arbori pentru masini de rectificat cu rulmenti cu bile, lagarul liber pentru compresoare cu turatie inalta |
K6 |
Inelul exterior nu este deplasabil |
|
Deplasarea inelului exterior este de dorit |
Partea de lucru de la arbori pentru masini de rectificat cu rulmenti cu bile, lagarul liber pentru compresoare cu turatie inalta |
J6 |
Inelul exterior este deplasabil |
|
Mers fara zgomot |
Masini electrice mici |
H6 |
Inelul exterior este usor deplasabil |
Rulmenti axiali
|
Conditii de lucru |
Simbolul cimpului de toleranta |
Observatii |
|
Sarcina axiala |
||
|
Rulmenti axiali cu
bile |
H8 |
Pentru legare fara exigente, jocul radial in carcasa poate fi de pina la 0,001D |
|
Sarcina combinata pe rulmenti axiali oscilanti cu role |
||
|
Incarcare locala pe saiba de carcasa Incarcare periferica pe saiba de carcasa |
H7(H9) | |
|
Sarcina axiala sau combinata pe rulmenti axiali oscilanti cu role |
||
|
Conducerea radiala in lagar este asigurata da un alt rulment |
Saiba de carcasa se monteaza cu joc de pina la 0,001D |
|
Abaterile pentru diametrul arborului si alezajul carcasei, se gasesc la adresa
https://www.rulmenti-romania.ro/catalog/recomandari_alegere_ajustaje.phpIn
cu urmatoarele precizari:
limita superioara si inferioara,
valorile minime si maxime, teoretice, ale stringerii (+) sau ale jocului (-), in ajustaj,
valorile minime si maxime ale stringeri sau ale jocului probabil ale ajustajului (limite intre care se incadreaza 99% din ajustaje). Tolerantele diametrului interior dmp si ale diametrului exterior Dmp sunt variabile pentru toti rulmenti cu dimensiuni in mm, cu exceptia rulmentilor cu role conice cu d <= 30 mm si D <= 150 mm, precum si a rulmentilor axiali cu D <= 150 mm.
Tabelul 4 - Tolerante de baza pentru abateri de forma si pozitie
|
Denumirea
|
Ajustaj |
Simbolul
|
Abateri admise in functie de clasele de toleranta |
||||
|
PO P6X |
P6 |
P5 |
P4(SP) |
P2(UP) |
|||
|
Toleranta la dimensiune |
arbore carcasa |
IT6(IT5) IT7(IT6) |
IT5 |
IT4 |
IT4 |
IT3 |
|
|
Toleranta
la circularitat |
arbore carcasa |
|
|
|
|
|
|
|
Toleranta
la bataie |
arbore carcasa |
|
IT4(IT3) IT5(IT4) |
IT3(IT2) IT4(IT3) |
IT2 |
IT1 |
IT0 |
|
Toleranta
la |
arbore carcasa |
|
IT5 |
IT4 |
IT4 |
IT3 |
IT3 |
|
Toleranta
la |
arbore |
|
|
|
|
|
|
Tolerantele pentru abaterile de forma si pozitie ale arborilor pe care se monteaza rulmentii cu bucse de stringere sau de extractie se incadreaza in clasele de toleranta IT5/2, pentru abateri cu toleranta la diametru h9, si IT7/2 pentru arbori cu toleranta h10.
|
Politica de confidentialitate |
| Copyright ©
2025 - Toate drepturile rezervate. Toate documentele au caracter informativ cu scop educational. |
Personaje din literatura |
| Baltagul – caracterizarea personajelor |
| Caracterizare Alexandru Lapusneanul |
| Caracterizarea lui Gavilescu |
| Caracterizarea personajelor negative din basmul |
Tehnica si mecanica |
| Cuplaje - definitii. notatii. exemple. repere istorice. |
| Actionare macara |
| Reprezentarea si cotarea filetelor |
Geografie |
| Turismul pe terra |
| Vulcanii Și mediul |
| Padurile pe terra si industrializarea lemnului |
| Termeni si conditii |
| Contact |
| Creeaza si tu |