Universitatea "Politehnica"
SEMINAR
PROIECTAREA STRUCTURILOR
CARACTERISTICI PLANSEU
Planseul - face transmiterea incarcarilor orizontale
- asigura eforturile de saiba
- 3 tipuri - monolite
- prefabricate
- mixte
Plansee - rezemat pe laturi

- rezemat pe stalpi

Plansee - simplu rezemate

- incastrate elastic
Incarcari - utile: mobilier, persoane
- permanente: pereti despartitori, finisaje, greutatea proprie a planseului
![]()
finisaj
![]()
placa
Dimensiuni
placa:
pe o directie: - simplu rezemata: Lmin/30
- incastrata elastic: Lmin/35 min 6 cm (finisaj)
pe 2 directii: - simplu rezemata: Lmin/40 min 13 cm (placa)
- incastrata elastic: Lmin/45
Dimensiuni
grinzi
grinda de cadru - redimensionare: L/12 hgrinda/hplaca> 2.5
grinda de planseu - L/15 . .L/30
PROBLEMA


Incarcare permanenta
|
Incarcare |
γ / densitate [KN/m2] |
Grosime [m] |
Incarcare normala [KN/m] |
Coef, la starea limita ultima (SLU) |
Incarcarea de calcul |
|
PARCHET | |||||
|
SAPA | |||||
|
POLISTIREN | |||||
|
PLACA |
|
q = 2 KN/m2 (q reprezinta incarcarea)
q = 1.5 × 2 = 3 KN/m2
Σ = 6.16 KN/m2
Apreciem 0.8 KN/m2 incarcarea din pereti despartitori:
qPd=1.35 × 0.8 = 1.08 KN/m2
Tip 1: - PC -permanente: 5.81 KN/m2
-utile: 3 KN/m2
Tip -PR+PD -permanente : 6.16+1.08 = 7.24 KN/m2
-utile : 3 KN/m2
Tipuri de combinatii de incarcari:
C1 = PERMANENTE+ UTILE
C2 = PERMANENTE+ UTILE + SAH 1 ,unde SAH reprezinta incarcarea alternanta
C3 = PERMANENTE+ UTILE + SAH 2
Placa simplu rezemata


Placa incastrata pe contur


Eforturi : S.I. [ KN × m/ m]

Predimensionare grinzi: - grinda de cadru : hgr = l0 / 12
- grinda obisnuita : hgr = l0 / 15
- hgr > 2.5 hplaca
Dimensionarea armaturilor
Caracteristica materialelor.Definitii
Beton C16/20
fck[ KN × m/ m2] Rezistenta caracteristica = rezistenta la compresiune pe cilindru la 28
de zile cu probabilitate de 95% (doar 5% pot fi mai mici).
fck[ KN × m/ m2] =16
fcd [N/ mm2 Rezistenta de calcul la compresiune a betonului.
fcd =αcc × fck / γc =1×16 / 1.6 = 10.67 N/ mm2
αcc = ia in considerare efectele de lunga durata si cele datorte modului de aplicare a incarcarilor .Are valori intre 0.8- 1.EC2 recomanda valoarea 1.
γc = coeficient partial de siguranta pentru beton.Are valoarea 1.5.
Armatura PC52 (S355*)
fyk [N/ mm2 Limita de curgere caracteristica a armaturilor pentru beton armat.
* Clasificare conform EC2 este in functie de diametru .
Diamerul nominal fyk [N/ mm2
6 . 14 S355
16 . 28 S345 345
32 . 40 S335 335
Un planseu cu grinzi obisnuit este realizat cu armturi avand diameter cuprinse intre 6 si 14 mm.
fyd = limita de curgere de calcul a armaturilor pentru beton armat
fyd = fyk / γs = 355/ 1.15= 308.70 N/ mm2
γs = coeficient partial de siguranta pentru otel.Are valoarea 1.15.
Acoperirea cu beton
Cnom = Cmin +∆Ctol = 10+10=20mm
Cnom - se refera la distanta masurata de la tangente barei la marginea betonului
Cmin = 10 mm
Cmin,b C min,dur + ∆Cdur,y - ∆Cdur,st -
∆Cdur,add
∆Ctol = 10 mm
![]()
Cmin = max
Cmin,b = acoperirea minima datorita conditiilor de aderenta = diametrul barei
C min,dur =acoperirea minima din asigurarea conditiilor de durabilitate - se ia 10
∆Cdur,y =coeficient suplimentar de siguranta- se ia 0
∆Cdur,st = reducera acoperirii minime datorita folosirii unor oteluri inoxidabile
∆Cdur,add =reducerea acoperirii minime datorita unei protectii suplimentare (de ex. tencuiala)
a = Cnom +ϕ / 2
a = distanta de la centrul de greutate al armaturii la fata betonului.Trebuie sa respecte si conditiile de protectie la foc ,conform SR EN1992- 1-2
ϕ = diametrul barei care se stabileste conform practicii de proiectare
Se apreciaza -pentru armaturile de la partea superioara ϕ =10-12 mm
-pentru armaturile de la partea inferioara ϕ =8-10 mm

d= h-a
d=inaltimea utila a sectiunii
h=inaltimea sectiunii transversale
b=1000 mm pentru o placa(calculul s-a facut pe fasii unitare avand latimea de 1 m)
b=latimea sectiunii
Armatura la o placa este sub forma unei plase cu barele dispuse dupa 2 directii ,astfel inaltimea utila(d) a sectiunii va fi diferita pentru fiecare directie de solicitare.
Etape de rezolvare
1.Se alege in functie de valoarea maxima a efortului dupa ce directie dispun armaturile pe randul 1 respectiv randul 2.
2.Se calculeaza valoarea relativa a momentului incovoietor cu formula:
μ=M/( b×d2 ×fcd)
3.Se determina coeficientul de armare,w, cu formula:
w=1- ![]()
4.Se determina aria de armatura,Aa,cu fromula :
Aa=w × b × d × fcd / fyd [mm2/m]
5.Se alege din tabel o armare(un diametru si un pas).
Exemplu
hp=13cm
C 16/20 fcd=10.67 N/ mm2
S355 fyd=308.7 N/ mm2
ϕi=10
ϕs=12
Cnom=20 mm
b=1000 mm

Armare in camp
1.R1
Pe randul 1 se dispun barele care preiau eforturile mai mari.In general barele dispuse dupa dierectia scurta sunt pe randul 1,pentru ca de obicei dupa directia scurta sunt mai mari eforturile.
Se stabileste global R1 ,alegandu-se cel mai mare efort de pe placa.In acest caz cel mai mare efort este M1 = 7.8 KN× m/ m.
a=Cnom+ ϕi /2=20+10/2=25mm
d= hp-a=130-25=105
Pentru M1=7.8 KN× m/ m
μ=M1/b×d2× fcd=7.8 ×106 / 1000 ×1052 ×10.67=0.066
w=1-
= 1-
= 0.068
Aa=w ×b × d × fcd / fyd 0.068 ×1000 ×105 ×10.67/308.7 =246 mm2/m=2.46cm2/m
→ ϕ8/20
Pentru M4=4.3 KN× m/ m
μ=4.3 ×106/1000 ×1052×10.67=0.0365
w= 1-
= 1-
= 0.037
Aa=0.037×1000 ×105 ×10.67/ 134 mm2/m=1.34 cm2/m→ ϕ8/20
Pentru M5=4.7 KN× m/ m
μ=4.3 ×106/1000 ×1052×10.67=0.0365
w=1-
= 1-
= 0.040
Aa=0.040×1000 ×105 ×10.67/ 145 mm2/m=1.54 cm2/m→ ϕ8/20
2.R2
a=Cnom+ ϕi /2+ ϕR1=20+10/2+8=33mm
d= hp-a=130-33=97mm
Pentru M9=5.1 KN× m/ m
μ=5.1 ×106/1000 ×972×10.67=0.050
w=1-
= 1-
= 0.0513
Aa=0.0513×1000 ×97 ×10.67/ 172 mm2/m=1.72 cm2/m→ ϕ8/20
Calcul analog pentru M7 si M6.
Armarea pe reazem
hp= 130 mm
fcd= 16 / 1.5 = 10.67 N/mm2
fyd=355 / 1.15 = 308.7 N/mm2

a= Cnom + Øsup/2 = 20 + 12/2 = 26 mm
d = h - a = 130 - 26 =104 mm
R1
-pentru M2=10.4 kN m/m
µ = M2/b×d2×fcd =10.4×106/1000×1042×10.67 = 0.0901
w = 1 -
= 1 -
=0.0945
Aa= b d w fcd/fyd = 1000 104×0.0945×10.67/308.7 = 339 mm2/m = 3.39 cm2/m → Ø10/20
-pentru M3=11
µ = M2/b×d2×fcd =11×106/1000×1042×10.67 = 0.0953
w = 1 -
= 1 -
=0.1003
Aa= b d w fcd/fyd = 1000 104×0.1003×10.67/308.7 = 361 mm2/m = 3.61 cm2/m → Ø10/20
a= Cnom +ØR1+ Øsup/2 = 20 +10+ 12/2 = 36 mm
d = h - a = 130 - 36 =94 mm
R2
-pentru M8=9.6 kNm/m
µ = M2/b×d2×fcd =9.6×106/1000×942×10.67 = 0.1018
w = 1 -
= 1 -
=0.1075
Aa= b d w fcd/fyd = 1000 94×0.1075×10.67/308.7 = 359 mm2/m = 3.59 cm2/m → Ø10/20
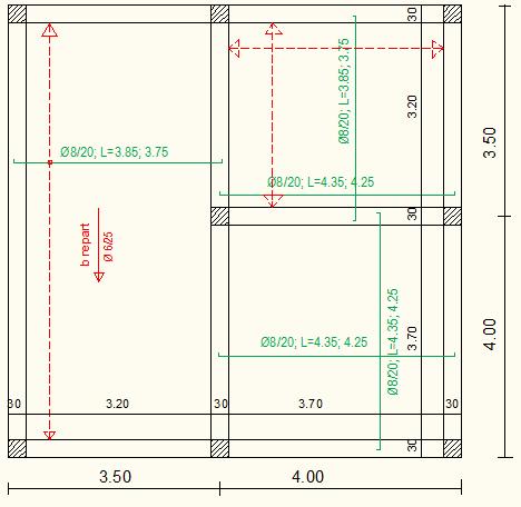
SCHITA DE ARMARE
ARMARE IN CAMP


ARMAREA PE REAZEM

Pentru obtinerea schitei finale de armare, armaturile de la partea superioara si inferioara se reprezinta pe acelasi desen
ARMARE GRINZI
![]()

AS1= (0.5+4)/2 ×1.75 = 3.93 m2
AS2 = 4×2/2 = 4 m2
Grinda : l/15=370/15=24.7cm
2.5×hpl = 2.5×13 = 32.5 cm hgr = 35 cm (multiplu de 5)
Qtot = q1× AS1+q2×AS2 = 9.16×3.93 + 8.81×4 = 71.23 kN
qudgr = Qtot/lgr = 71.23/4 = 17.8 kN/m
Pentru determinarea ariei de armatura trebuie determinat efortul cu care este incarcata grinda
M = q×l2/8 = 17.8×42/8 = 35.6 kN
Facem o sectiune dreptunghiulara simplu armata

b=250mm
Ø=14mm (presupus)
Cnom = 30mm
a = Cnom+Ø/2 = 30+14/2 = 37 mm
d= hgr - a = 350 - 37 = 313 mm
µ = M/b×d2×fcd =35.6×106/250×3132×10.67 = 0.1362
w = 1 -
= 1 -
=0.147
Aa= b d w fcd/fyd = 250 313×0.147×10.67/308.7 = 398 mm2/m = 3.98 cm2/m → 3 bare Ø14 cu Aefectiva = 4.62 cm2
|
Politica de confidentialitate |
| Copyright ©
2025 - Toate drepturile rezervate. Toate documentele au caracter informativ cu scop educational. |
Personaje din literatura |
| Baltagul – caracterizarea personajelor |
| Caracterizare Alexandru Lapusneanul |
| Caracterizarea lui Gavilescu |
| Caracterizarea personajelor negative din basmul |
Tehnica si mecanica |
| Cuplaje - definitii. notatii. exemple. repere istorice. |
| Actionare macara |
| Reprezentarea si cotarea filetelor |
Geografie |
| Turismul pe terra |
| Vulcanii Și mediul |
| Padurile pe terra si industrializarea lemnului |
| Termeni si conditii |
| Contact |
| Creeaza si tu |